PTS-NXT-10JE.pdf - 第396页
A 63 23 19, 19.1 33 64 18 17 16 6 4 8 2 3 7 58 61 40 59 60 52 51 50 39 38 26 37 59 34 58 61 48 60 62 35 32 29.1 29 47 49 25 24 66 45 12, 12.1 9 11 13 10 14 45 49 47 48 46 13 14 1, 1.1 67 72 73 71 69 70 70 74.1 74.3 74.2 …

6.1.2. M6S-SINGLE CONVEYOR 1/11
6.1.2. M6S-シングルコンベア 1/11 UQ01557
No. Drg.No. & Code No. QTY Description Rating Materials Remarks
番号 図番 & コード番号 個数 品名 規格 材質 備考
1 H5298A 8 BOLT, HEX SOCKET ボルト 六角穴 M05X010 FE
2 W1012A 8 WASHER, CONICAL ワッシャ 皿 M- 5-L FE
3 PM015W0 8 BOLT, HEX SOCKET ボルト 六角穴 FE Thin panel option
7 XM00233 1 MOTOR, STEPPING モータ ステッピング OT
8 H5289A 4 BOLT, HEX SOCKET ボルト 六角穴 M04X012 FE
9 W1022A 4 WASHER, LOCK ワッシャ スプリング 4M/M FE
10 PP01040 1 BKT, MOTOR BKT モータ FE
11 H5298A 3 BOLT, HEX SOCKET ボルト 六角穴 M05X010 FE
12 W1023A 3 WASHER, LOCK ワッシャ スプリング 5M/M FE
13 H5172T 1 BOLT, HEX ボルト 六角 M04X025 クロゾメ FE
14 N1080A 1 NUT, HEX ナット 六角 M 4 P=0.7 FE
15 PP00941 1 BKT, ADJUSTING BKT セリ FE
16 PZ05392 2 PULLEY プーリ OT
17 N4027A 4 SCREW, HEX SOCKET SET ネジ 六角穴止め M04X005 クボミサキ FE
18 H45747 1 BELT, TIMING ベルト タイミング 309-3GT-9 OT
19 PM31463 2 PLATE プレート FE
20 H5323A 4 BOLT, HEX SOCKET ボルト 六角穴 M06X018 FE
21 W1024A 4 WASHER, LOCK ワッシャ スプリング 6M/M FE
22 XM00242 1 MOTOR, STEPPING モータ ステッピング OT
23 H5289A 4 BOLT, HEX SOCKET ボルト 六角穴 M04X012 FE
24 W1022A 4 WASHER, LOCK ワッシャ スプリング 4M/M FE
25 PP01031 1 BKT, MOTOR BKT モータ FE
26 H5298A 3 BOLT, HEX SOCKET ボルト 六角穴 M05X010 FE
27 W1023A 3 WASHER, LOCK ワッシャ スプリング 5M/M FE
28 H5172T 1 BOLT, HEX ボルト 六角 M04X025 クロゾメ FE
29 N1080A 1 NUT, HEX ナット 六角 M 4 P=0.7 FE
30 PP00951 1 BKT, ADJUSTING BKT セリ FE
31 H4520F 1 BELT, TIMING ベルト タイミング 342-3GT-9 OT
32 AA24W06 1 PLATE, BACKUP プレート バックアップ OT
33 H5299B 2 BOLT, HEX SOCKET ボルト 六角穴 M05X012 ユニクロメッキシロ FE
34 W1012A 2 WASHER, CONICAL ワッシャ 皿 M- 5-L FE
35 AA23W09 1 FRAME フレーム OT
36 PM66165 4 PLATE, BACKUP プレート バックアップ FE
37 PM66175 1 PLATE, BACKUP プレート バックアップ FE
45 AA6WL03 8 PIN, BACKUP
ピ
ン バックアッ
プ
OT
6. CONVEYOR / コンベア
55
PTS-NXT-10JE Vol.2

A
63
23
19,
19.1
33
64
18
17
16
6
4
8
2
3
7
58
61
40
59
60
52
51
50
39
38
26
37
59
34
58
61
48
60
62
35
32
29.1
29
47
49
25
24
66
45
12,
12.1
9
11
13
10
14
45
49
47
48
46
13
14
1,
1.1
67
72
73
71
69
70
70
74.1
74.3
74.2
74.4
74.5
29.2
29.3
26.1
26.2
26.3
63.1
51.1
58.1
58.2
4
15
15
20
21
22,
22.1
43,
43.1
42
44
43,
43.1
42
55
54
57
57
56
55
54
57
57
56
74
75
76
78
79
54.1
54.1
UQ01557
6. CONVEYOR / コンベア
56
PTS-NXT-10JE Vol.2

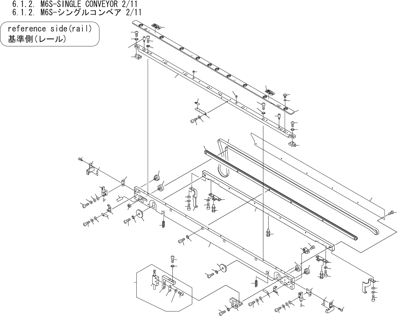
6.1.2. M6S-SINGLE CONVEYOR 2/11
6.1.2. M6S-シングルコンベア 2/11 UQ01557
No. Drg.No. & Code No. QTY Description Rating Materials Remarks
番号 図番 & コード番号 個数 品名 規格 材質 備考
1 PM83112 1 PLATE, RETAINING プレート 押え FE
1.1 PM03AZ1 1 PLATE, RETAINING プレート 押え FE Thin panel option
2 PM01723 10 BOLT ボルト FE
3 PM03470 10 COLLAR カラー FE
4 PM23704 2 PIN, REFERENCE ピン 基準 FE
6 PT01213 1 GUIDE ガイド FE
7 K5255T 2 SCREW, HEX SOCKET BUTTON 小ネジ 六角穴ボタン M03X006 FE
8 W1010A 2 WASHER, CONICAL ワッシャ 皿 M- 3-L FE
9 PT01224 1 GUIDE ガイド FE
10 K5255T 2 SCREW, HEX SOCKET BUTTON 小ネジ 六角穴ボタン M03X006 FE
11 W1010A 2 WASHER, CONICAL ワッシャ 皿 M- 3-L FE
12 PM11176 1 RAIL レール FE
12.1 PM41892 1 RAIL レール FE Thin panel option
13 H5288A 8 BOLT, HEX SOCKET ボルト 六角穴 M04X010 FE
14 W1011A 8 WASHER, CONICAL ワッシャ 皿 M- 4-L FE
15 H3170B 4 PLUNGER, BALL プランジャ ボール SBP-4 OT
16 PB11920 1 BKT BKT FE
17 H5274A 2 BOLT, HEX SOCKET ボルト 六角穴 M03X006 FE
18 W1021A 2 WASHER, LOCK ワッシャ スプリング 3M/M FE
19 PX03050 1 SEAL シール PL
19.1 PX04000 1 SEAL シール PL Thin panel option
20 PM01604 1 PLATE, CLAMPING プレート クランプ FE
21 K5255A 6 SCREW, HEX SOCKET BUTTON 小ネジ 六角穴ボタン M03X004 FE
22 XB01111 1 CONVEYOR, BELT コンベア ベルト OT L=1510mm
22.1 XB02751 1 CONVEYOR, BELT コンベア ベルト OT Thin panel option
23 PM11191 1 GUIDE, BELT ガイド ベルト AL
24 H5287A 6 BOLT, HEX SOCKET ボルト 六角穴 M04X008 FE
25 W1011A 6 WASHER, CONICAL ワッシャ 皿 M- 4-L FE
26 PB18160 1 HOOK フック FE
26.1 H5275A 2 BOLT, HEX SOCKET ボルト 六角穴 M03X008 FE
26.2 W1021A 2 WASHER, LOCK ワッシャ スプリング 3M/M FE
26.3 W1040A 2 WASHER, FLAT ワッシャ 平 3M/MX0.5X7(1W-3) FE
29 PB18150 1 HOOK フック FE
29.1 H5275A 2 BOLT, HEX SOCKET ボルト 六角穴 M03X008 FE
29.2 W1021A 2 WASHER, LOCK ワッシャ スプリング 3M/M FE
29.3 W1040A 2 WASHER, FLAT ワッシャ 平 3M/MX0.5X7(1W-3) FE
32 PM12151 1 PLATE プレート FE
33 H5275A 2 BOLT, HEX SOCKET ボルト 六角穴 M03X008 FE
6. CONVEYOR / コンベア
57
PTS-NXT-10JE Vol.2