PTS-NXT-10JE.pdf - 第526页
A 27 28 28 27 1 2 3 4, 4.1 5, 5.1 8 9 9.1 10 11.1 11 9.1 9 13 18 30 74 75 76 73 74 75 76 73 73 31 29 32 14 15 30 31 29 36 39 40 41 78 79 42 44 44 45 77 36 74 75 76 73 74 75 76 10 48, 48.1 29 30 31 14 15 67 8 13 29 30 31 …

6.2.2. M6S-DOUBLE CONVEYOR 2/13
6.2.2. M6S-ダブルコンベア 2/13 UQ01361
No. Drg.No. & Code No. QTY Description Rating Materials Remarks
番号 図番 & コード番号 個数 品名 規格 材質 備考
83 H5274A 2 BOLT, HEX SOCKET ボルト 六角穴 M03X006 FE
84 W1021A 2 WASHER, LOCK ワッシャ スプリング 3M/M FE
113 H2014R 2 PIN ピン MSIP6-10 OT
115 PM18275 1 BKT BKT FE
116 H5288A 2 BOLT, HEX SOCKET ボルト 六角穴 M04X010 FE
117 W1011A 2 WASHER, CONICAL ワッシャ 皿 M- 4-L FE
118 AA73205 1 SENSOR センサ OT
118.1 PM18264 1 BKT, SENSOR BKT センサ FE
118.2 PB12712 1 WASHER ワッシャ FE
118.3 XS01245 1 SENSOR, TOUCH センサ タッチ OT
118.4 K5257H 2 SCREW, HEX SOCKET BUTTON 小ネジ 六角穴ボタン M04X012 FE
118.5 W1022A 2 WASHER, LOCK ワッシャ スプリング 4M/M FE
119 H5275A 2 BOLT, HEX SOCKET ボルト 六角穴 M03X008 FE
120 W1010A 2 WASHER, CONICAL ワッシャ 皿 M- 3-L FE
121 PM32133 1 HOOK フック FE
122 PM31830 1 BLOCK ブロック FE
123 H5277A 4 BOLT, HEX SOCKET ボルト 六角穴 M03X012 FE
124 W1021A 4 WASHER, LOCK ワッシャ スプリング 3M/M FE
125 N4023B 2 SCREW, HEX SOCKET SET ネジ 六角穴止め M03X010 マルサキ FE
126 N1077H 2 NUT, HEX ナット 六角 M 3 P=0.5 3シュ FE
127 PB18400 1 HOOK フック FE
128 K5357M 2 SCREW, HEX SOCKET COUNTERSUNK 小ネジ 六角穴皿 M03X006 FE
129 PB18150 1 HOOK フック FE
130 PB18160 1 HOOK フック FE
131 H5275A 4 BOLT, HEX SOCKET ボルト 六角穴 M03X008 FE
132 W1021A 4 WASHER, LOCK ワッシャ スプリング 3M/M FE
132.1 W1040A 4 WASHER, FLAT ワッシャ 平 3M/MX0.5X7(1W-3) FE
133 PX03030 1 SEAL, BAR CODE シール バーコード PL
133.1 PX03980 1 SEAL, BAR CODE シール バーコード PL Thin panel option
134 PZ14130 2 SEAL シール PL
135 PH00791 2 BRUSH ブラシ OT
136 K5358C 4 SCREW, HEX SOCKET COUNTERSUNK 小ネジ 六角穴皿 M03X012 FE
6. CONVEYOR / コンベア
185
PTS-NXT-10JE Vol.2

A
27
28
28
27
1
2
3
4,
4.1
5,
5.1
8
9
9.1
10
11.1
11
9.1
9
13
18
30
74
75
76
73
74
75
76
73
73
31
29
32
14
15
30
31
29
36
39
40
41
78
79
42
44
44
45
77
36
74
75
76
73
74
75
76
10
48,
48.1
29
30
31
14
15
67
8
13
29
30
31
18
45
77
78
79
42
44
44
39
41
40
18.1
18.3
36.1
36.3
42
113
42
42
42
126
125
123
124
121
123
124
122
126
125
1
129
130
89
90
91
92
92
49
50
1
134
134
37
38
19
20
113
37.1
19.1
36.2
18.2
131
132
132.1
131
132
132.1
73.1
73.2
73.2
73.1
28.1
28.1
11.1
11
6
7
1
12,
12.1
12,
12.1
16,
16.1
17
17
16,
16.1
16,
16.1
25
16,
16.1
17
17
16,
16.1
25
22
23
24
21
24
21
22
23
24
24
21
22
23
24
24
21
22
23
24
24
46
47
68
69
81
135
136
135
136
81
21.1
21.1
21.1
21.1
UQ01361
6. CONVEYOR / コンベア
186
PTS-NXT-10JE Vol.2

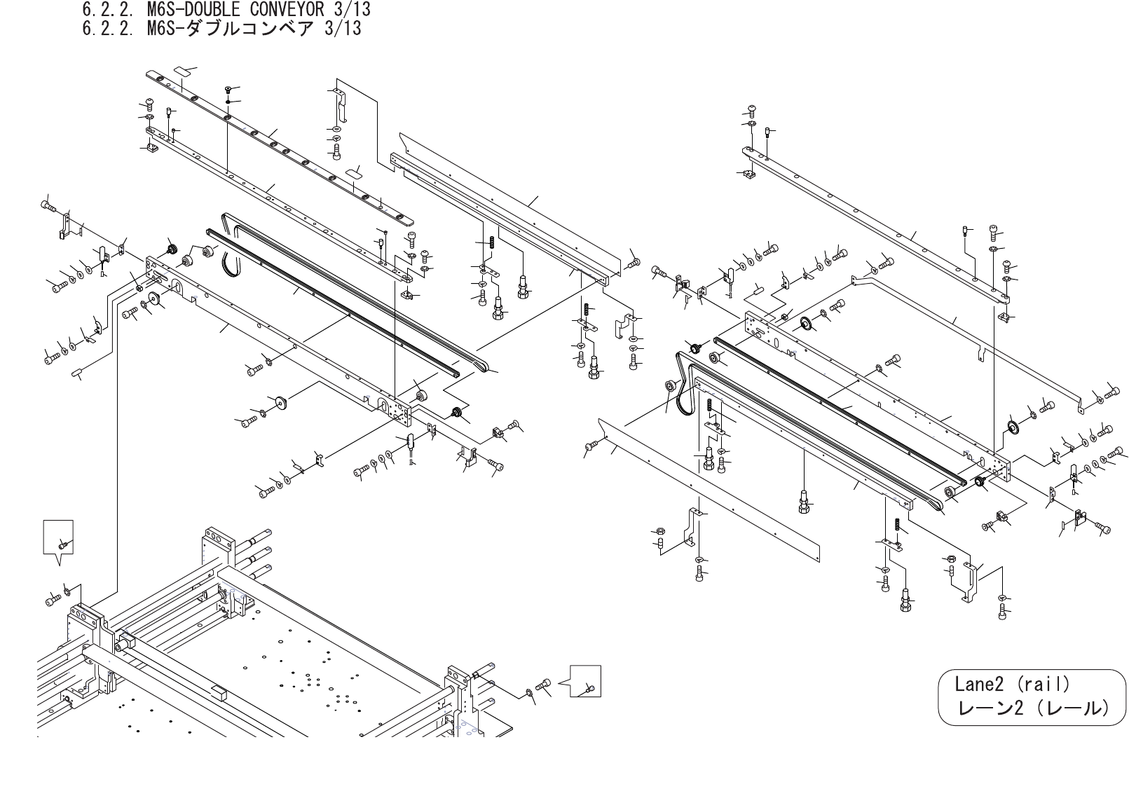
6.2.2. M6S-DOUBLE CONVEYOR 3/13
6.2.2. M6S-ダブルコンベア 3/13 UQ01361
No. Drg.No. & Code No. QTY Description Rating Materials Remarks
番号 図番 & コード番号 個数 品名 規格 材質 備考
1 PM23704 4 PIN, REFERENCE ピン 基準 FE
2 PM01723 10 BOLT ボルト FE
3 PM03470 10 COLLAR カラー FE
4 PM83122 1 PLATE, RETAINING プレート 押え FE
4.1 PM03BA1 1 PLATE, RETAINING プレート 押え FE Thin panel option
5 PM11185 1 RAIL レール FE
5.1 PM41912 1 RAIL レール FE Thin panel option
6 H5288A 8 BOLT, HEX SOCKET ボルト 六角穴 M04X010 FE
7 W1011A 8 WASHER, CONICAL ワッシャ 皿 M- 4-L FE
8 PT01224 2 GUIDE ガイド FE
9 K5255T 4 SCREW, HEX SOCKET BUTTON 小ネジ 六角穴ボタン M03X006 FE
9.1 W1010A 4 WASHER, CONICAL ワッシャ 皿 M- 3-L FE
10 PT01213 2 GUIDE ガイド FE
11 K5255T 4 SCREW, HEX SOCKET BUTTON 小ネジ 六角穴ボタン M03X006 FE
11.1 W1010A 4 WASHER, CONICAL ワッシャ 皿 M- 3-L FE
12 XB01101 2 CONVEYOR, BELT コンベア ベルト OT
12.1 XB02761 2 CONVEYOR, BELT コンベア ベルト OT Thin panel option
13 PM11191 2 GUIDE, BELT ガイド ベルト AL
14 H5287A 12 BOLT, HEX SOCKET ボルト 六角穴 M04X008 FE
15 W1011A 12 WASHER, CONICAL ワッシャ 皿 M- 4-L FE
16 AA45L03 6 PULLEY プーリ OT
16.1 AA63K00 6 PULLEY プーリ OT Thin panel option
17 ADBPP8012 4 PULLEY プーリ OT
18 PM92402 2 BKT, SENSOR BKT センサ FE
18.1 PT01191 1 GUIDE ガイド FE
18.2 PS02472 1 SHEET シート OT
18.3 H5429N 2 BOLT, HEX SOCKET ボルト 六角穴 CBS3-8 FE
19 PT01170 1 GUIDE ガイド FE
19.1 PS02472 1 SHEET シート OT
20 H5429N 2 BOLT, HEX SOCKET ボルト 六角穴 CBS3-8 FE
21 XS01454 2 SENSOR, FIBER センサ ファイバ OT SET
21.1 PZ10791 4 TUBE チューブ OT
22 H5274A 8 BOLT, HEX SOCKET ボルト 六角穴 M03X006 FE
23 W1021A 8 WASHER, LOCK ワッシャ スプリング 3M/M FE
24 W1041F 16 WASHER, FLAT ワッシャ 平 ゚3X6 コガタヒラザガネ FE
25 N10790 2 NUT, SQUARE ナット 四角 M 4 P=0.7(3カ シロ) FE
27 H5298A 8 BOLT, HEX SOCKET ボルト 六角穴 M05X010 FE
28 W1012A 8 WASHER, CONICAL ワッシャ 皿 M- 5-L FE
6. CONVEYOR / コンベア
187
PTS-NXT-10JE Vol.2