SI-G200MK7_操作说明.pdf - 第57页
调试篇 1. 安装 电子零件装着机 SI-G200MK7 (CS) 1-9 1.6 操作区域的最大尺寸 使用时请确保智能供料器以及 交换台车的操作区域为最大尺 寸,方法如下所示。 ( 单位: mm) 1858 1475 1220 1202 900 1575 9 9 640 1015 1225 1030 1410 1620 1220 1220 1850 1500 1500 1500 1500 度 操作区域 操作区域

调试篇
1. 安装
1-8
电子零件装着机
SI-G200MK7 (CS)
1.5 与前工程机器和后工程机器的连接
连接双输送带 SI-G200MK7 与连接单输送带 SI-G200MK7 的方法不同。使用单输送带时,请
用
L 型托架连接。
1.5.1 使用单输送带
[ 作业功能 ]
为了保持 SI-G200MK7 与前工程和后工程的机器间机械精度,准备 2 个连接用 L 型托架。安
装这个
L 型托架,将 SI-G200MK7 与前后工程机器连接。
[ 准备的物品 ]
L
型托架 ( 与 SI-G200MK7 在同一包装内 ) 2 个
C8 × 22 六角有孔螺栓、六角螺母、弹簧垫圈、平垫圈 各 16 个
[ 作业顺序 ]
(1)
通过 L 型托架与前工程和后工程机器结合
1. 用 C8 × 22 六角有孔螺栓、六角螺母、弹簧垫圈、平垫圈将 L 型托架安装在 SI-G200MK7
左右座上。
2. 分别用 C8 × 22 六角有孔螺栓、六角螺母、弹簧垫圈、平垫圈将前工程机器和后工程机器的
L 型托架与 SI-G200MK7 左右 L 型托架连接。
六角有孔螺栓
六角有孔螺栓
六角有孔螺栓
弹簧垫圈
弹簧垫圈
弹簧垫圈
弹簧垫圈
弹簧垫圈
弹簧垫圈
平垫圈
平垫圈
平垫圈
平垫圈
L 型托架
L 型托架
平垫圈
六角螺母
六角螺母
平垫圈

调试篇
1. 安装
电子零件装着机 SI-G200MK7 (CS)
1-9
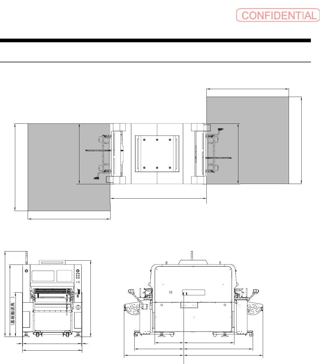
1.6 操作区域的最大尺寸
使用时请确保智能供料器以及交换台车的操作区域为最大尺寸,方法如下所示。
( 单位:mm)
1858
1475
1220
1202
900
1575
99
640
1015
1225
1030
1410
1620
1220
1220
1850
1500
1500
1500
1500
度
操作区域
操作区域
