CX-1_动作说明书.pdf - 第9页
R e v 2 . 0 0 动作说明书 2- 2 2-2 X轴的说明 皮带轮 XM 和皮带轮 XA 的减速比 30:120 皮带轮 XA 的间隔圆直径比 33.42mm:114.59mm 平均马达 1 圈的移动量 30/120×33.42mm×π=26.25mm 马达变换器的分辨率 131072pls( 实际马达变换器分辨率 ) 16384pls×4 倍 =65536pls(MEI 控制用 ) 因此,平均 1 脉冲的移动量 26.25m…

Rev 2.00
动作说明书
2-
1
2 XY、Z、θ轴的说明
2-1 Y轴的说明
・皮带轮 YM 和皮带轮 YA 的减速比 30:140
・皮带轮 YA 的的间距圆直径的比 33.42 mm:133.69 mm
平均马达 1 圈的移动量为
30/140×33.42 mm×π=22.5 mm
马达变换器的分辨率为
131072 pls(实际马达变换器分辨率)
16384 pls×4倍=65536 pls(MEI控制用)
因此,平均 1 脉冲的移动量为
22.5 mm/65536 pls=0.3433μm/pls
线性标尺的分辨率为
1μm
外部变换器的断线检测
马达变换器和外部变换器(线性标尺)的差当马达变换器的 1/4 转以上时报警,伺服关闭。
变换器的脉冲变化量的差超过
22.5 mm/4=5.625 mm=16384 pls(马达变换器标准)
时报警。
皮带轮YM
皮带轮YA
皮带轮YB
马达输出 1140W 图2-1

Rev 2.00
动作说明书
2-
2
2-2 X轴的说明
皮带轮XM和皮带轮XA的减速比 30:120
皮带轮XA的间隔圆直径比 33.42mm:114.59mm
平均马达 1 圈的移动量
30/120×33.42mm×π=26.25mm
马达变换器的分辨率
131072pls(实际马达变换器分辨率)
16384pls×4倍=65536pls(MEI控制用)
因此,平均 1 脉冲的移动量
26.25mm/65536pls=0.4005μm/pls
线性标尺的分辨率为
1μm
外部变换器的断线检测
马达变换器和外部变换器(线性标尺)的差设定为马达变换器的1/4转以上时报警,关闭伺服。
变换器的脉冲变化量的差超过
26.25mm/4=6.5625mm=16384pls(马达变换器标准)
之后报警。
皮带轮 X
A
皮带轮 XM
皮带轮 XA
皮带轮 XM
皮带轮XA
皮带轮XA
皮带轮XM 皮带轮XM
马达输出 600W×2 图2-2

Rev 2.00
动作说明书
2-
3
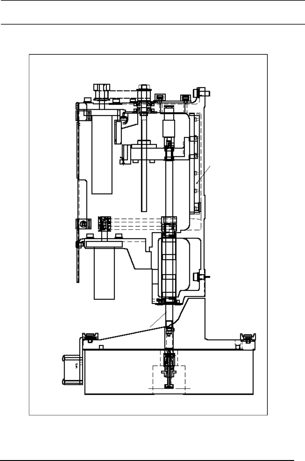
2-3 Z、θ轴的说明
MNLA 说明贴装头
图 2-3
Z 马达向 CW 方向转动,Z 轴向+方向移动 0.00125mm/pls
同步皮带 Z
1.5GT-94牙 Z皮带轮
30牙
Z皮带轮
30牙
Z 马达
40W
1200ppr
4 倍 后通路
球螺丝
6×6
同步皮带θ θ皮带轮
1.5GT-107牙 36牙
θ马达皮带轮
30 牙
θ马达
13W
9000ppr
4 倍
θ马达向 CW 方向转动,θ轴-方向转动
0.01°/pls
球弹簧
MNLA