JUKI_KE-2050-2060_MAINTE_CH维修要领.pdf - 第10页
Rev2.00 维修调整要领书 2) 拧松 NM6050001SC ,松开同步皮带 XM 的张力 SM8053002TP。 3) 卸下同步皮带 XB 。(参照 1-1-2 项 。 ) 4) 卸卸固定 XA 皮带轮托架组件的 SL6064092TN、 固定 XA 皮带轮的 SL6062092TN , XA 皮带轮托 架组件 。 5) 卸下固定马达组件的 SL6062092TN ,卸下马达组件 。 6) 更换同步皮带 XM 。 7) 按照相…

Rev2.00
维修调整要领书
1 XY装置
1-1.同步皮带的更换和张力调整
各皮带的张力低于判定值时,需要调整皮带的张力。
关于判定值,请参阅 P1-4 规格值“在市场调整时”。
1-1-1.同步皮带XM
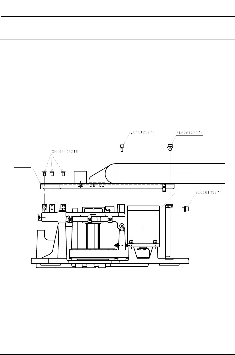
为了高效率地进行作业,请卸下侧面的护罩。卸下侧面护照的安装螺丝,从后侧把它拉出来。
1) 卸下固定CB的SM1051052TN 3个、SL6051292TN 1个、SL6061092TN 2个。(右侧没
有。)
图1-1-1-1
CB支架
1-1

Rev2.00
维修调整要领书
2) 拧松NM6050001SC,松开同步皮带 XM 的张力SM8053002TP。
3) 卸下同步皮带XB。(参照 1-1-2 项。)
4) 卸卸固定XA皮带轮托架组件的SL6064092TN、固定XA皮带轮的SL6062092TN,XA皮带轮托
架组件。
5) 卸下固定马达组件的SL6062092TN,卸下马达组件。
6) 更换同步皮带 XM。
7) 按照相反的顺序组装。
8)调整同步皮带 XM 和XB的张力。(参照“调整顺序” 1-4 页)
※从左侧观看的图
(右侧也同样)
图1-1-1-2
X
机架端部
同步皮带X
M
XA皮带轮托架组件
X
马达组件
1-2

Rev2.00
维修调整要领书
1-1-2.同步皮带XB
图 1-1-2-1
X皮带支架组
贴装头板
1) 卸下SL6053592TN
(4个)、SL6052592T
N(3个),卸下贴装头板
和X皮带支架。
2) 拧松固定支撑X皮带L
和皮带支架R的SL605
2592TN(4 个),拧 松 X
皮带张力调整螺丝(SM
6057552TP)。然后,
卸下SL6052592TN,
分离X皮带支架R。
3) 卸下夹同步皮带的SL6042092TN,更换皮带。
4) 把同步皮带XB用X皮带支架(2)和X皮带支架L或X皮带支架R夹住,用SL6042092TN固定。
此时SL6042092TN涂封漆277,然后用5Nm的扭力均匀地拧紧。
5) 按照相反的顺序组装起来。
6) 调整同步皮带 XB 的张力。(调整顺序参照1-4页)
X
皮带支架
R
X 皮带支架 L
X
皮带支架
(
2
)
图
1-1-2-2
1-3