JUKI_KE-2050-2060_MAINTE_CH维修要领.pdf - 第80页
Rev 2.10 维修调整要领书 4-3 4-3. OCC 垂直 / 角度照明电路板组件的更换 1) 按照 4-1.OCC 配件的更换要领,从头板卸下照明配件。 2) 卸下圆头螺丝 ① ,更换 OCC 同轴照明电路板组件。 3) 卸下带垫片六角孔螺栓②,更换 OCC 角度照明电路板组件。 4) 安装时,请按照相反的顺序进行。 5) 更换后,请进行照明滤光器 U、OCC 灯光的调整 。( 参照 4-8 更换后的重新调整一览 ) 图 4-3…

Rev 2.10
维修调整要领书
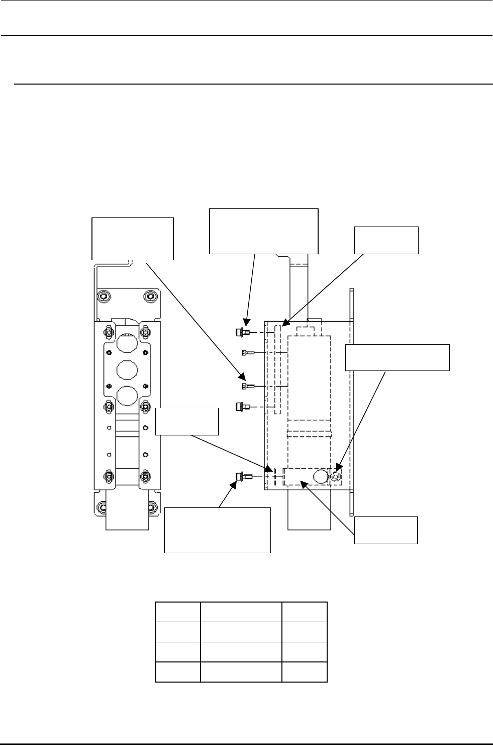
4-2.OCD摄像机、镜头组的更换
1) 4-1.OCC 配件的更换要领,从摄像机板上卸下摄像机配件。
2) 卸下固定 CCD 架、镜头架、镜头的带垫片六角孔螺栓,进行更换。
3) 安装时。请按照相反的顺序进行。但是,镜头架的间隙,请从A~D中选择出不给镜头施加负荷的配
件。
4) 更换后,请进行焦点调整、MS参数输入。(参照 4-8 更换后的再调整一览)
间隙 A~D
带垫片六角孔螺栓
(×4)
六角孔螺栓
(
×4
)
带六角孔螺栓
镜头架
带垫片六角孔螺栓
CCD 架
(×4)
图 4-2-1 CCD 摄像机/镜头
表 4-2-1 间隙一览
间隙A 40001310 t0.05
间隙B 40001311 t0.1
间隙C 40001312 t0.3
间隙D 40001313 t0.5
请从上述A~D中选择不给镜头增加负荷的配件。(间隙设计值:0.5mm)
4-2

Rev 2.10
维修调整要领书
4-3
4-3.OCC垂直/角度照明电路板组件的更换
1) 按照 4-1.OCC配件的更换要领,从头板卸下照明配件。
2) 卸下圆头螺丝①,更换 OCC 同轴照明电路板组件。
3) 卸下带垫片六角孔螺栓②,更换 OCC 角度照明电路板组件。
4) 安装时,请按照相反的顺序进行。
5) 更换后,请进行照明滤光器 U、OCC 灯光的调整。(参照 4-8 更换后的重新调整一览)
图 4-3-1 OCC 垂直/角度照明电路版的更换
①圆螺丝(×2)
②带垫片六角孔螺栓
(×4)
同轴照明电路版
角度照明电路版

Rev 2.10
维修调整要领书
4-4
4-4.滤光镜的更换
1)按照 OCC 更换配件的要领,从贴装头板卸下照明配件。
2)卸下带垫片六角孔螺栓、环、平头螺丝,再卸下照明滤光镜U支架、滤光镜、导板。
3) 卸下平螺丝,更换滤光镜。
4) 安装时,请按照相反的顺序安装。
5) 更换后,进行偏光滤光镜、OCC照明的调整。(参照 4-8 更换后的重新调整一览)
图 4-4-1 滤光镜的更换
平头螺丝(×
2)平螺丝(×4)
带垫片六角孔螺栓(×1)
环(×1)
照明滤光镜
U
支架(×
1)
滤光镜(×1)
导板(×1)