JUKI_KE-2050-2060_MAINTE_CH维修要领.pdf - 第16页
Rev2.00 维修调整要领书 < 调整顺序 > ① 用由尼塔公司生产的张力计,在下图箭头部分测定张力,确认是否符合规格。 ( 注意 1)Y 马达皮带的调整时,转动皮带轮,在数处 ( 至少 5 处以上 ) 测定张力,确认平均值在规格内。 ・ 张力计的输入值 皮带单位质量 皮带宽度 皮带跨度 皮带种类 机种 (g/m・mm) (mm) (mm) 同步皮带 YM 全机种 2.5 40 93 50M、60M 3.8 70 1115 50L、6…

Rev2.00
维修调整要领书
1-1-4.同步皮带YB
为了提高作业效率,请卸下侧面护罩。卸下侧面护罩的安装螺丝,从后侧拉出来。
1) 卸下把Y皮带支架(1)固定在X机架端的SL6062092TN。
2) 拧松固定YB皮带轮托架组件的SL6062592TN。
3) 拧松SM6084002TN,卸下YB皮带轮托架组件。
4) 卸下夹同步皮带YB的SL6041292TN。更换同步皮带YB。
5) 按照相反的顺序组装。调整同步皮带YB的张力。(调整顺序参照1-8页)
图1-1-4-1
图1-1-4-2
Y
皮带支架
(
1
)
通 X 机架端组件
同步皮带
YB
Y
皮带支架(2)
Y
轴支架
(从后侧)
Y
B 皮带轮托架组件
同步皮带 YB
1-7

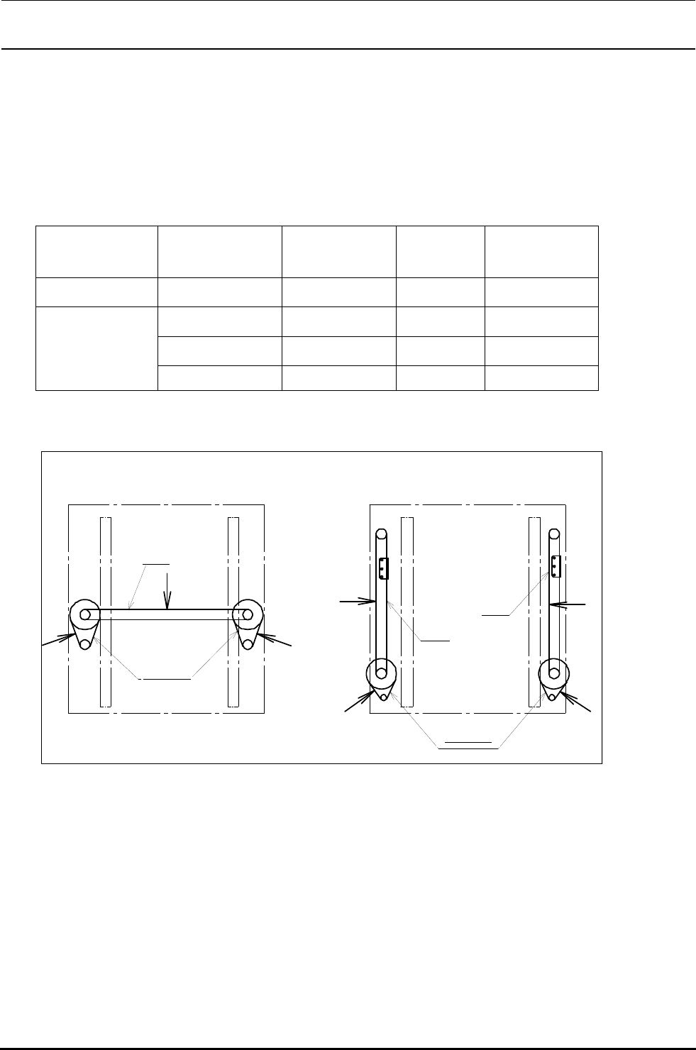
Rev2.00
维修调整要领书
<调整顺序>
① 用由尼塔公司生产的张力计,在下图箭头部分测定张力,确认是否符合规格。
(注意1)Y马达皮带的调整时,转动皮带轮,在数处(至少 5 处以上)测定张力,确认平均值在规格内。
・张力计的输入值
皮带单位质量 皮带宽度
皮带跨度
皮带种类 机种
(g/m・mm) (mm) (mm)
同步皮带YM 全机种 2.5
40 93
50M、60M 3.8 70 1115
50L、60L 3.8 70 1221
同步皮带YB
60 E 3.8 70 1325
・测定位置
X皮带
X马达皮带
前侧
Y皮带
Y
皮带
Y马达托架
前侧
后侧
X
轴
Y
轴
后侧
・规格值
1. 出货时
Y皮带(同步皮带 YB)∶1230±50N
Y马达皮带(同步皮带 YM)∶325±20N
2. 市场再次调整时
Y皮带(同步皮带YB):如果不足 800N,须要调整。
Y马达皮带(同步皮带YM):如果不足 190N,须要调整。
1-8

Rev2.00
维修调整要领书
② 调整方法
・同步皮带YM
①拧松固定Y马达的SL6061492TN。
②用SM6041602TN调整张力。
③拧紧SL6061492TN。(拧紧转矩:1
0N・m)
Y
轴支架
同步皮带YB
①固定YB皮带轮托架。
拧松SL6062592TN。
②用SM6084002TN调整张力。
③拧紧SL6062592TN。
YB同步皮带
Y B 皮带轮托架
1-9