JUKI_KE-2050-2060_MAINTE_CH维修要领.pdf - 第53页
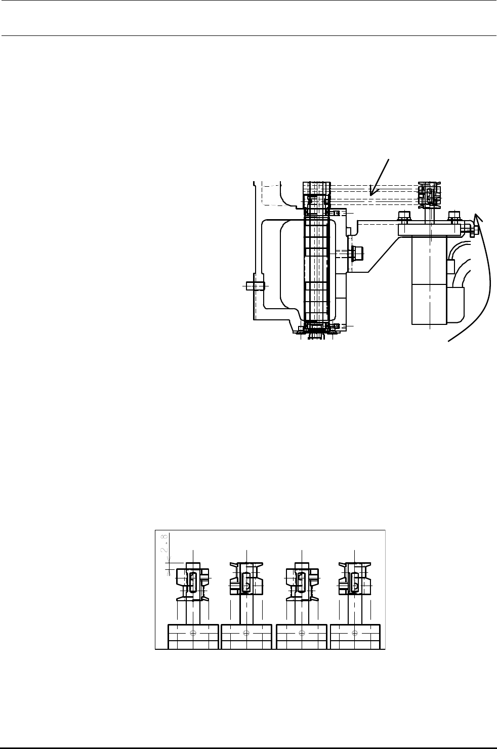
Rev2.00 维修调整要领书 2-2-3. ICZ马达(FMLA贴装头) 更换了ICZ马达之后, 需要进行Z轴原点的位置调整, Z 轴的高度以及激光的MS参数输入。 (输 入项目请参照2-9项。) 1) 实施2-1-1项的1)~3),把②③向左侧 放倒。 2)卸下IC Z ⑬ 马达的安装螺丝 (4个),移动 马达,松开皮带。 ⑫ 3)剪断马达的电缆固定束线带。 4)拧松皮带轮固定螺丝 2 个,拔出 I C Z 马达 图 2-2-5 皮…

Rev2.00
维修调整要领书
6) 按照以下的程序进行皮带张力的确认
和调整。
<程序>
同步皮带T
张力调整螺丝
① 拧松安装螺丝,调整张力调整螺丝,
同时调整同步皮带T的张力,并用张
力计测定张力。
张力计设定值
Weight: 0.9 g/m
Width : 4 mm
Span : 73 mm
② 适当张力: 请确认是否是8±1N。
③ 张力调整后,请拧下调整螺丝。
※请往θ
⑫
马达安装螺丝 (4个)上涂锁定漆242,然后用紧固转矩 2.3Nm 来拧紧固定。
※ 固定θ马达皮带轮的固定螺丝时,请注意θ马达轴的平部和皮带轮固定螺丝的方向,如图所示
进行固定。固定转矩为 0.5Nm。
L1 L2 L3 L4
图2-2-4
2-9

Rev2.00
维修调整要领书
2-2-3.ICZ马达(FMLA贴装头)
更换了ICZ马达之后,需要进行Z轴原点的位置调整,Z 轴的高度以及激光的MS参数输入。(输
入项目请参照2-9项。)
1) 实施2-1-1项的1)~3),把②③向左侧
放倒。
2)卸下IC Z
⑬
马达的安装螺丝 (4个),移动
马达,松开皮带。
⑫
3)剪断马达的电缆固定束线带。
4)拧松皮带轮固定螺丝 2 个,拔出 I C Z 马达
图2-2-5
皮带轮,卸下IC Z 马达。
5)安装时,请按照相反的顺序进行。
然后按照以下的程序确认调整皮带张力。
2-10

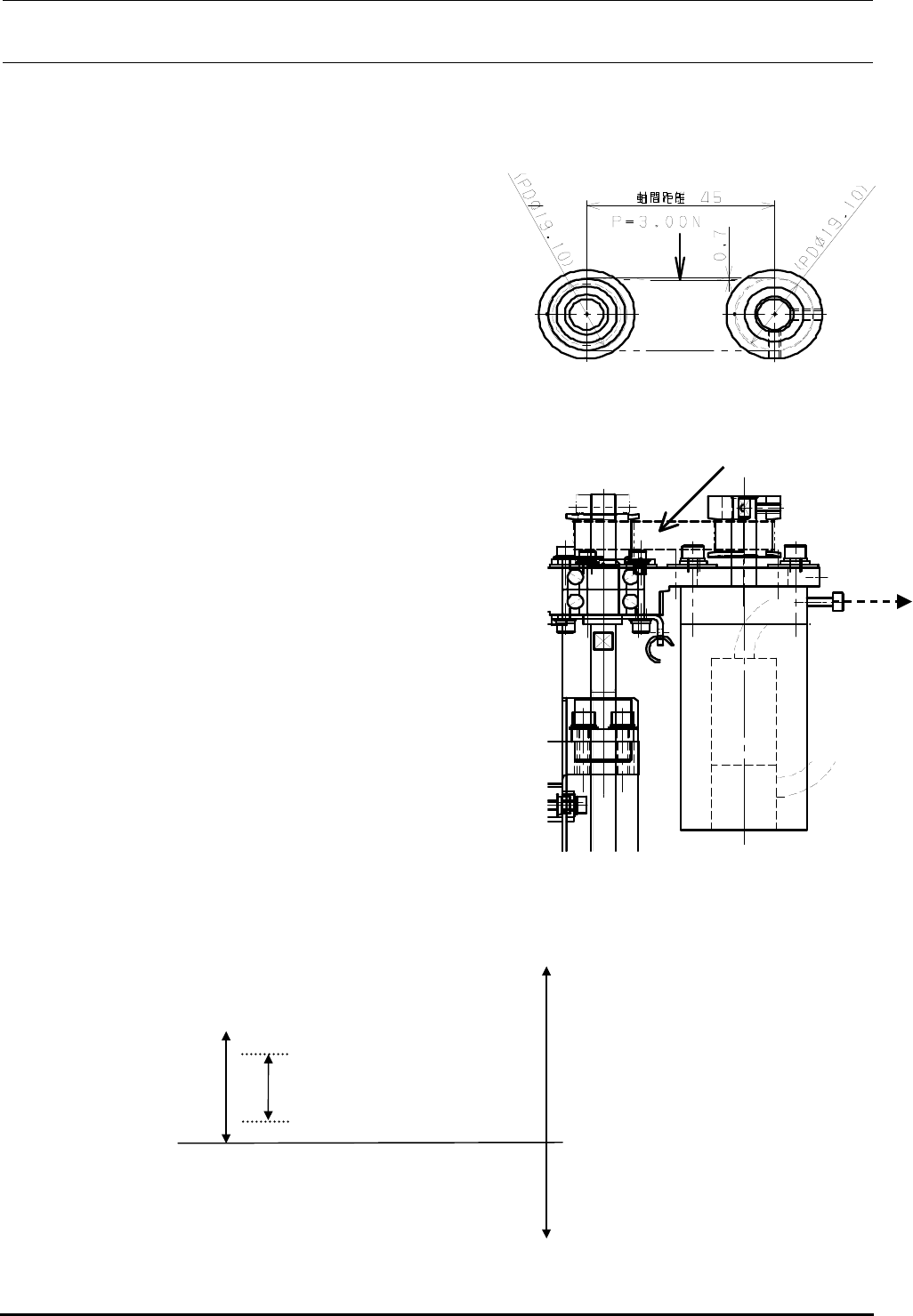
Rev2.00
维修调整要领书
<程序>
① 把螺丝插到ICZ马达的螺丝孔,朝箭头方向
用杆张力 78.5 N(8kgf)的拉力,用安装螺丝
固定。
② 请用杆张力把皮带中央部用 3.00 N的力量确认
垂度是否是 0.7 mm。
※ 在IC Z 马达安装螺丝⑫(4个)上涂上锁定
漆242后,拧紧固定,转矩为 2.3Nm。
此时,从前面看马达的电线在左侧。
同步皮带ICZ
拉
※固定 ICZ 马达皮带轮的固定螺丝时,应
注意 ICZ 马达轴的平部和皮带轮固定
螺丝的方向。
固定螺丝的紧固转矩为 0.5Nm。
4) 组装后,请获取 MS 参数的基板上面高度。此值如果不在 1.5~6.5mm 之间的话,相对与 ICZ 轴马
达轴把马达皮带轮旋转 180 度固定,再次取得 MS 参数,确认基板上面高度在 1.5~6.5mm 之间。
Z 传感器 OFF 区域
1.5~6.5mm 稳定区域
Z 传感器 ON 区域
8mm
(Z 轴球螺丝旋转
1 圈的行程)
2-11