QP-242E 工程师培训手册 (6.0).pdf.pdf - 第48页
FK-9F98-07 QP242E Training Text fo r Service Engineers 6th edition 6. Proper Data Measurement [ 7 /20] Fuji Machine Mfg. Co., Ltd. Okazaki SMT Equipment Quality Assurance Dept. Technical Support Div. Section No.2 6- 7 Ca…

FK-9F98-07 QP242E Schooling Text for Service Engineer
6th edition 6. Proper Data Measurement [6/20]
Fuji Machine Mfg. Co., Ltd. Okazaki
SMT Equipment Quality Assurance Dept.
Technical Support Div. Section No.2
6-6
[6-9] Placement_Height_Z0
* If measuring with a dial gauge, be sure that the gauge is calibrated.
1) Mount a 10mm adjustment nozzle at the index holder or the nozzle shaft.
2) Lower the Z-axis until the top face of the clamped jig makes contact with the nozzle bottom,
then set a dial gauge on top of the nozzle disk.
3) Slowly raise the Z-axis to the point where the dial gauge needle begins to move.
4) This is the Z0 position. Execute the following command sequence to automatically enter the
Placement_Height_Z0 value: [REF. POS.] à [Z0] à [SET].
[6-10] Adjusting the Parts Camera Height, the Lens Aperture, and
the Temporary Focus
* There are six parts camera types (types 1, 2, 3, 4, 6, 7). Be sure that the correct camera type
is mounted (check specifications) before performing these adjustments.
1) Set the camera lens aperture and temporary focus as suitable for the camera type in question.
Note: The thickness of the collar between the camera and lens varies according to the camera type.
2) Adjust so that the distance from the side of the base to the end of the camera bracket is 42mm
(this applies for all camera types). (Details regarding 1-camera and 2-camera systems are
given later.)
3) Turn the adjusting bolt until the distance from the machine base to the camera bracket is
suitable for the camera type in question.
Plate jig
Dial gauge
10mm nozzle
Point where nozzle and jig make contact
For line scan cameras:
(Camera types 4, 7)
Aperture…2.8
Temporary focus…0.27
Align top face of lens
with the top face of the
blue lens bracket. This
position should be
approximately 0.27.
LOCK UNLOCK
2,8
4 A
22 22
0.25
0.3
4
8C16
2 1,4
0.4
JAPAN
For CCD cameras:
Aperture:
Camera type 1…2
Camera type 2…5
Camera type 3…4
b)Temporary focus:
Camera type 1…A little before 5
Camera type 2…Midway between 1 and 0.5
Camera type 3…Midway between 1 and 0.5

FK-9F98-07 QP242E Training Text for Service Engineers
6th edition 6. Proper Data Measurement [7/20]
Fuji Machine Mfg. Co., Ltd. Okazaki
SMT Equipment Quality Assurance Dept.
Technical Support Div. Section No.2
6-7
Camera type 3
Camera type 1 Camera type 2
Be sure that the bracket where the CCD
camera is mounted is correctly oriented.
M/C Base
Camera
BKT
Lock bolt
Height adjusting set screw
Camera type 1: 34.5mm
Camera type 2: 21.0mm
Camera type 3: 16.5mm
* These dimensions were
obtained during testing, and
are for reference purposes
Set screw for
camera Q
adjustment
Camera
collar
thickness
Camera 1: 11mm
Camera 2:2.0mm
Camera3: 1.4mm
Lens filter
Camera 1 25mm 1:1.4
Camera 2,3 16mm 1:1.4
Beware for tilt
Aperture and focus lock
screws face this direction
2,8
Camera BKT
M/C Base
Camera
42mm
Camera type 4,7: 25.0mm
(Lens
no.R4013H)
Camera type 4,7: 21.0mm (Lens no.R4034A)
However R4034A
front supply, index camera 7: 15mm
*Reference Value Only
Note: This is the
base end face,
not the module
base contact
surface.
22.0mm for index nozzle & front supply & camera
type 7. *Reference value only.
This bracket
changes when
index nozzle &
front supply &
Camera type 7 is
used. 15mm
lower in conditions
with camera
height different
than above.

FK-9F98-07 QP242E Training Text for Service Engineers
6th edition 6. Proper Data Measurement [8/20]
Fuji Machine Mfg. Co., Ltd. Okazaki
SMT Equipment Quality Assurance Dept.
Technical Support Div. Section No.2
6-8
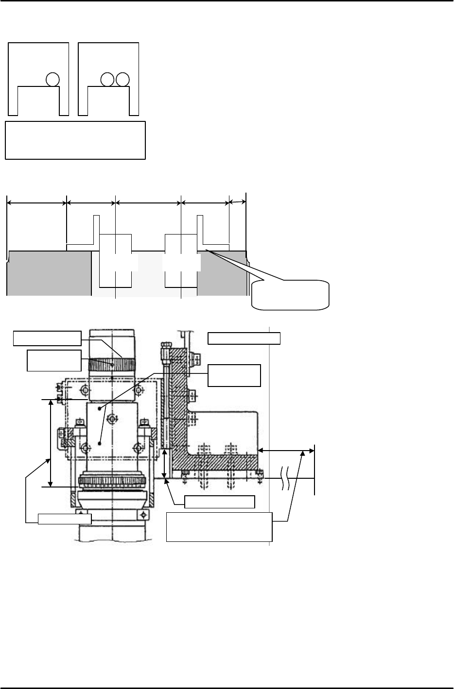
[6-11 ] Adjusting the Parts Camera Lighting Position
1) For camera types 1 to 3:X-direction: Not adjustable Y-direction: Camera center Z-direction:
Adjust so that the top of the light bracket is 2mm below the top of the conveyor bracket.
(Beware of tilt.)
2) For camera type 4 (line scan camera):
X-direction: Not adjustable Y-direction: Camera center
Z-direction: Use a height jig to adjust so that the top of the light cover’s glass is 209mm from
the top face of the machine base. (Beware of tilt.)
1
2
MFU or
MTU side
2
camera
1
MFU or
MTU side
1 camera
Camera mounting positions in 2-camera systems
Cameras are mounted in the positions shown at left. At 2-camera systems, the
cameras are arranged in the same manner as the device numbers. At camera
systems, the camera is mounted on the right side as viewed from the MFU.
Generally speaking, the camera is not mounted on the left side.
Moreover, unless an on-site modification has occurred, the camera with the
higher camera type number is mounted at the No.2 side.
Camera light source arrangement in 2-camera systems
CCD + CCD: Light sources are located directly below both cameras.
CCD + LINE: The CCD camera’s light source is located directly below the CCD
camera, and the line scan camera’s light source is located on the column (inside
the FRP cover at top of module).
LINE + LINE: The light source for the camera at the No.2 side is located below
the camera, and the light source for No.1 side camera is located on the column.
Power supply of the camera light source arrangement in 2-camera systems
No.2 side camera is located in the PLN control board, and No.1 side is located on
the column.
The camera arrangement is as shown
above (as viewed from MFU or MTU)
at both front and rear parts-supply
machines.
Camera mounting dimensions in 2-camera systems
(with 600mm module)
Camera 1 – camera 2 : A - B
CCD - CCD :135mm-144mm (ABHGC9110)
CCD - LINE :135mm-144mm (ABHGC9100)
LINE - LINE :124mm-155mm (ABHGC9120)
* For 800mm modules, dimension “A” is lengthened.
Other dimensions are unchanged.
Adjust camera type 6 as shown in
the illustration at left. Note that
dimension “B” (focus) is factory
adjusted and does not usually
require further adjusting.
However, if a suitable focus and
resolution cannot be obtained,
change dimensions “A” and “B” as
required.
A:25.43mm
B
:74.85mm
Aperture: fully open
Aperture locking
set screw
Focus locking
set screw
Camera type 6
For type 706: 65mm
For others: Refer to above
Camera 1 Camera 2
Center of the
camera
136mm136mm BA
42
mm
Measured from
module’s base end
surface.
Center of the
camera