NXT part list(Vol.1-Vol.3).pdf - 第247页
4. MODULE / モジュール 247 PTS-NXT-06JE

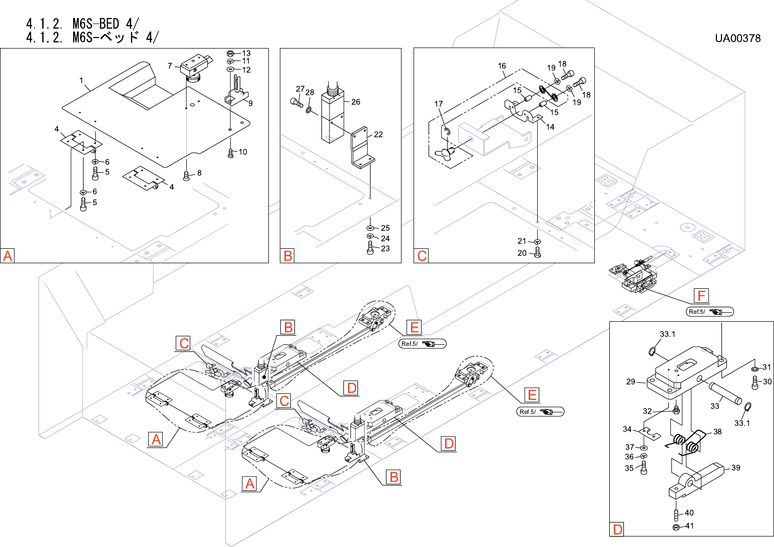
4.1.2. M6S-BED 3/
4.1.2. M6S-ベッド 3/
UA00378
No. Drg.No. & Code No. QTY Description Rating Materials Remark
番号 図番 & コード番号 個数 品名 規格 材質 備考
37 PM04010 2 ROLLER ローラ FE
38 PM04021 2 PIN ピン FE
39 W1022A 2 WASHER, LOCK ワッシャ スプリング 4M/M FE
40 N1080A 2 NUT, HEX ナット 六角 M 4 P=0.7 FE
41 PT00250 2 GUIDE ガイド FE
42 H5326A 4 BOLT, HEX SOCKET ボルト 六角穴 M06X025 ゼンネジ FE
43 W1013A 4 WASHER, CONICAL ワッシャ 皿 M- 6-H FE
44 PM50460 1 SHAFT シャフト FE
45 N4045A 1 SCREW, HEX SOCKET SET ネジ 六角穴止め M06X005 クボミサキ FE
46 PM50450 1 ROLLER ローラ FE
46.1 N2117B 1 NEEDLENEEDLE ニードル ニードル KT14188 OT
46.2 PB28020 1 WASHER ワッシャ FE
47 PM04010 2 ROLLER ローラ FE
48 PM04021 2 PIN ピン FE
49 W1022A 2 WASHER, LOCK ワッシャ スプリング 4M/M FE
50 N1080A 2 NUT, HEX ナット 六角 M 4 P=0.7 FE
51 PT00262 6 GUIDE ガイド FE
52 H5326A 12 BOLT, HEX SOCKET ボルト 六角穴 M06X025 ゼンネジ FE
53 W1013A 12 WASHER, CONICAL ワッシャ 皿 M- 6-H FE
54 PM00842 6 SHAFT シャフト FE
55 N4045A 6 SCREW, HEX SOCKET SET ネジ 六角穴止め M06X005 クボミサキ FE
56 H4202Z 6 BEARING ベアリング 6900ZZ FE
56.1 PM77711 6 ROLLER ローラ FE
56.2 PM77780 6 COLLAR カラー FE
Note.1:These parts are delivered in sets of 2 parts. Replace both parts in a set, as shown in the illustration, at the same time.
:これらの部品は2個で1set納入となります。交換時は図示の組合せに従い2個同時に交換して下さい。
4. MODULE / モジュール 246 PTS-NXT-06JE
4. MODULE / モジュール 247 PTS-NXT-06JE

4. MODULE / モジュール 248 PTS-NXT-06JE