NXT part list(Vol.1-Vol.3).pdf - 第707页
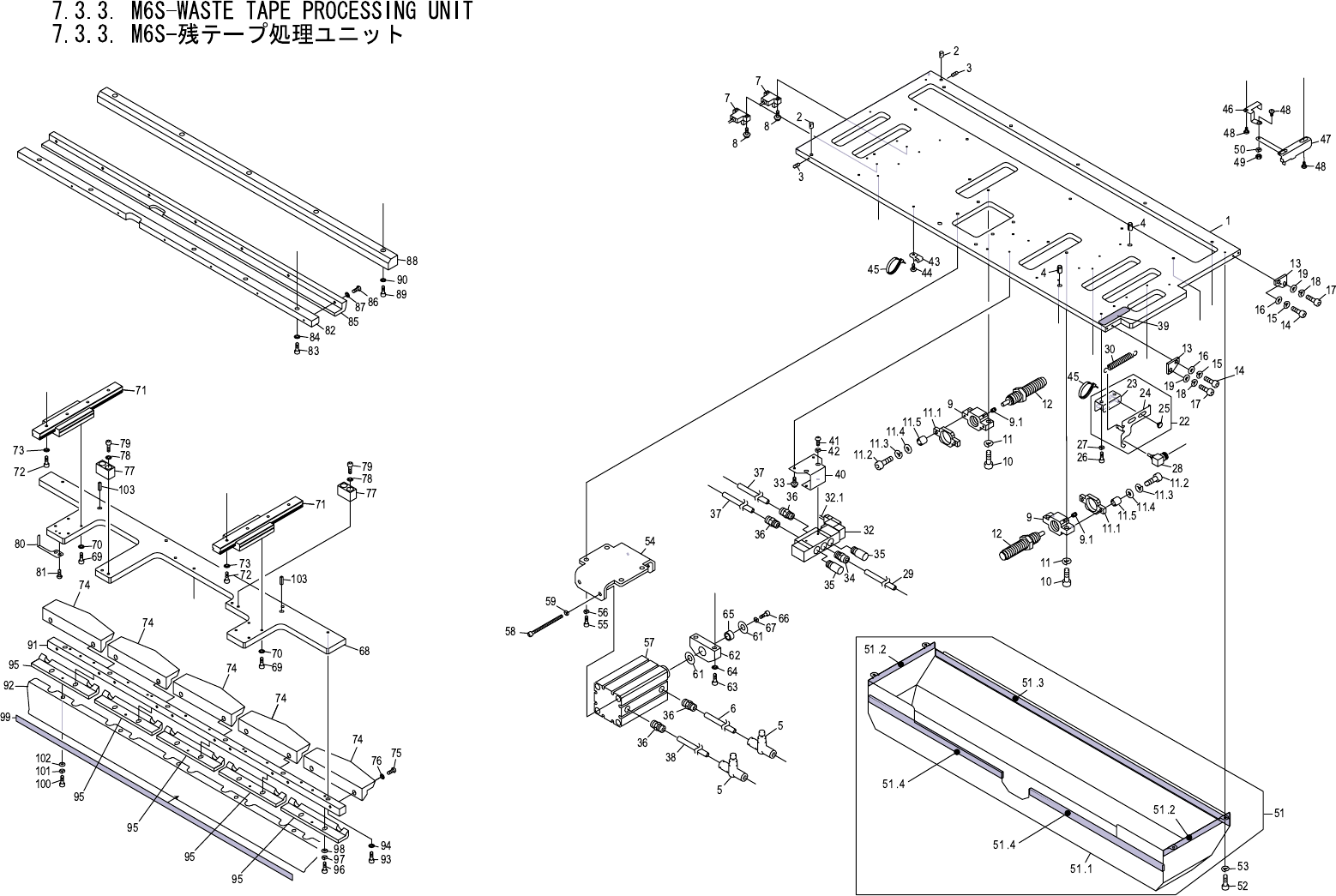
7.3.3. M6S-WASTE TAPE PROCESSING UNIT 7.3.3. M6S- 残テープ処理ユニット UC00327 No. Drg.No. & Code No. QTY Description Rating Materials Remark 番号 図番 & コード番号 個数 品名 規格 材質 備考 1 PM001N1 1 PLATE プレート FE 2 PM04432 2 PIN ピン OT 3 …

A
A
B
B
C
D
E
G
G
N
M
J
P
P
M
N
D
C
A
E
J
UC00327
7. PARTS SUPPLY / 部品供給 138 PTS-NXT-06JE

7.3.3. M6S-WASTE TAPE PROCESSING UNIT
7.3.3. M6S-残テープ処理ユニット
UC00327
No. Drg.No. & Code No. QTY Description Rating Materials Remark
番号 図番 & コード番号 個数 品名 規格 材質 備考
1 PM001N1 1 PLATE プレート FE
2 PM04432 2 PIN ピン OT
3 N4019H 2 SCREW, HEX SOCKET SET ネジ 六角穴止め M03X004 トガリサキ FE
4 H2116C 2 PIN ピン MS6-10 FE
5 K5340Y 2 CONTROLLER, SPEED コントローラ スピード AS2001F-06(シロ)OT
6 PZ07860 1 TUBE チューブ OT
7 S4077L 2 SENSOR, PHOTO センサ フォト PM-L44P OT
8 K51995 4 SCREW, WASHER ASS'Y 小ネジ 座金組込み M03X012 ナベセムス P4 FE
9 PM95130 2 BKT, STOPPER BKT ストッパ FE
9.1 N4019A 2 SCREW, HEX SOCKET SET ネジ 六角穴止め M03X004 クボミサキ FE
10 H5300A 4 BOLT, HEX SOCKET ボルト 六角穴 M05X015 FE
11 W1023A 4 WASHER, LOCK ワッシャ スプリング 5M/M FE
11.1 PG02950 2 PLATE, STOPPER プレート ストッパ PL
11.2 H5276A 4 BOLT, HEX SOCKET ボルト 六角穴 M03X010 FE
11.3 W1021A 4 WASHER, LOCK ワッシャ スプリング 3M/M FE
11.4 W1040A 4 WASHER, FLAT ワッシャ 平 3M/MX0.5X7 FE
11.5 PM36280 4 COLLAR カラー FE
12 A1037D 2 ABSORBER, SHOCK アブソーバ ショック RB2015 OT
13 PB68081 2 PLATE, LOCATING プレート 位置決め FE
14 H5276A 2 BOLT, HEX SOCKET ボルト 六角穴 M03X010 FE
15 W1021A 2 WASHER, LOCK ワッシャ スプリング 3M/M FE
16 W1042A 2 WASHER, FLAT ワッシャ 平 4W- 3 FE
17 H5289A 2 BOLT, HEX SOCKET ボルト 六角穴 M04X012 FE
18 W1022A 2 WASHER, LOCK ワッシャ スプリング 4M/M FE
19 W1043A 2 WASHER, FLAT ワッシャ 平 4W- 4 FE
22 AA90700 1 PANEL, CONNECTOR パネル コネクタ OT
23 PB18530 1 PANEL, CONNECTOR パネル コネクタ FE
24 PB18540 1 SHUTTER シャッタ FE
25 PM04403 2 PIN, GUIDE ピン ガイド FE
26 H5287A 2 BOLT, HEX SOCKET ボルト 六角穴
M04X008 FE
27 W1022A 2 WASHER, LOCK ワッシャ スプリング 4M/M FE
28 H3149W 1 PLUG, COUPLER プラグ カプラ MC-06PCL OT
29 PZ09780 1 TUBE チューブ OT
30 PB01981 1 SPRING, TENSION スプリング 引張 FE
32 H13362 1 VALVE, SOL バルブ SOL SY5120-5MOZ-01 OT
32.1 K4005M 1 CABLE ケーブル SY100-30-4A-10 OT
33 K5174D 2 SCREW, WASHER ASS'Y 小ネジ 座金組込み M03X008P=4 クロメート ナベセムスビス FE
34 Y3063A 1 UNION, HALF ユニオン ハーフ KJH06-01S OT
7. PARTS SUPPLY / 部品供給 139 PTS-NXT-06JE

7.3.3. M6S-WASTE TAPE PROCESSING UNIT
7.3.3. M6S-残テープ処理ユニット
UC00327
No. Drg.No. & Code No. QTY Description Rating Materials Remark
番号 図番 & コード番号 個数 品名 規格 材質 備考
35 S1056E 2 SILENCER サイレンサ AN103-01 OT
36 Y3063A 4 UNION, HALF ユニオン ハーフ KJH06-01S OT
37 PZ07300 2 TUBE チューブ OT
38 PZ06280 1 TUBE チューブ OT
39 PX01630 1 SEAL, BAR CODE シール バーコード OT
40 PB17392 1 BKT, SOL BKT SOL FE
41 K5256A 2 SCREW, HEX SOCKET BUTTON 小ネジ 六角穴ボタン M03X008 FE
42 W1021A 2 WASHER, LOCK ワッシャ スプリング 3M/M FE
43 S2025A 6 SHEET シート CTAM1 PL
44 K5209A 6 SCREW, C/R TRUSS 小ネジ 十穴トラス M04X008 ユニクロメッキ FE
45 H1140A 7 BAND, TIE バンド 結束 T18R PL
46 PB25660 1 STOPPER, SAFETY ストッパ 安全 FE
47 PB25952 1 BKT, SLIDE BKT スライド FE
48 PM76640 4 PIN ピン FE
49 N1076A 1 NUT, HEX ナット 六角 M 3 P=0.5 FE
50 W1021A 1 WASHER, LOCK ワッシャ スプリング 3M/M FE
51 AA3EN01 1 COVER カバー OT
51.1 PB57162 1 COVER カバー FE
51.2 PS02050 2 SHEET シート OT
51.3 PS02060 1 SHEET シート OT
51.4 PS02070 2 SHEET シート OT
52 H5275A 4 BOLT, HEX SOCKET ボルト 六角穴 M03X008 FE
53 W1021A 4 WASHER, LOCK ワッシャ スプリング 3M/M FE
54 PB13772 1 BKT, CYLINDER BKT シリンダ FE
55 H5321A 4 BOLT, HEX SOCKET ボルト 六角穴 M06X012 FE
56 W1024A 4 WASHER, LOCK ワッシャ スプリング 6M/M FE
57 S2124K 1 CYLINDER, AIR シリンダ エアー CQ2B40-60-DCH2143H OT
58 H5316T 2 BOLT, HEX SOCKET ボルト 六角穴 M05X100 FE
59 W1023A 2 WASHER, LOCK ワッシャ スプリング 5M/M FE
61 PB61302 2 WASHER ワッシャ FE
62 PM89882 1 BKT BKT FE
63 H5301A 2 BOLT, HEX SOCKET ボルト 六角穴 M05X018 1ハコ400ケ
FE
64 W1012A 2 WASHER, CONICAL ワッシャ 皿 M- 5-L FE
65 PM03510 1 COLLAR カラー FE
66 H5341A 1 BOLT, HEX SOCKET ボルト 六角穴 M08X020 FE
67 W1025A 1 WASHER, LOCK ワッシャ スプリング 8M/M FE
68 PM56453 1 PLATE プレート FE
69 H5275A 8 BOLT, HEX SOCKET ボルト 六角穴 M03X008 FE
7. PARTS SUPPLY / 部品供給 140 PTS-NXT-06JE