NXT part list(Vol.1-Vol.3).pdf - 第509页
A UQ01331 6. CONVEYOR / コンベア 190 PTS-NXT-06JE

6.2.2. M6S-DOUBLE CONVEYOR 4/
6.2.2. M6S-ダブルコンベア 4/
UQ01331
No. Drg.No. & Code No. QTY Description Rating Materials Remark
番号 図番 & コード番号 個数 品名 規格 材質 備考
1 PM01900 2 PIN, LOCATING ピン 位置決め FE
4 PM87133 2 BKT, SLIDE BKT スライド FE
5 PM87143 2 BKT, SLIDE BKT スライド FE
6 H5274A 32 BOLT, HEX SOCKET ボルト 六角穴 M03X006 FE
7 W1010A 32 WASHER, CONICAL ワッシャ 皿 M- 3-L FE
12 PM14901 2 BLOCK, STOPPER ブロック ストッパ FE
13 H5290A 4 BOLT, HEX SOCKET ボルト 六角穴 M04X015 FE
14 W1011A 4 WASHER, CONICAL ワッシャ 皿 M- 4-L FE
15 PG00112 2 STOPPER ストッパ PL
16 H5276A 2 BOLT, HEX SOCKET ボルト 六角穴 M03X010 FE
17 W1021A 2 WASHER, LOCK ワッシャ スプリング 3M/M FE
18 W1040A 2 WASHER, FLAT ワッシャ 平 3M/MX0.5X7 FE
19 PPT0460 2 COLLAR カラー FE
20 XG00141 8 GUIDE, RAIL ガイド レール OT
20.1 H5274A 32 BOLT, HEX SOCKET ボルト 六角穴 M03X006 FE
21 PM01890 2 PIN, LOCATING ピン 位置決め FE
22 H5275A 2 BOLT, HEX SOCKET ボルト 六角穴 M03X008 FE
23 W1021A 2 WASHER, LOCK ワッシャ スプリング 3M/M FE
24 W1042A 2 WASHER, FLAT ワッシャ 平 4W- 3 FE
45 PM31371 2 BLOCK, STOPPER ブロック ストッパ FE
46 H5290A 4 BOLT, HEX SOCKET ボルト 六角穴 M04X015 FE
47 W1011A 4 WASHER, CONICAL ワッシャ 皿 M- 4-L FE
48 PM31381 2 BLOCK, STOPPER ブロック ストッパ FE
49 H5290A 4 BOLT, HEX SOCKET ボルト 六角穴 M04X015 FE
50 W1011A 4 WASHER, CONICAL ワッシャ 皿 M- 4-L FE
51 N4023B 2 SCREW, HEX SOCKET SET ネジ 六角穴止め M03X010 マルサキ FE
52 N1077H 2 NUT, HEX ナット 六角 M 3 P=0.5 3シュ FE
6. CONVEYOR / コンベア 189 PTS-NXT-06JE

A
UQ01331
6. CONVEYOR / コンベア 190 PTS-NXT-06JE

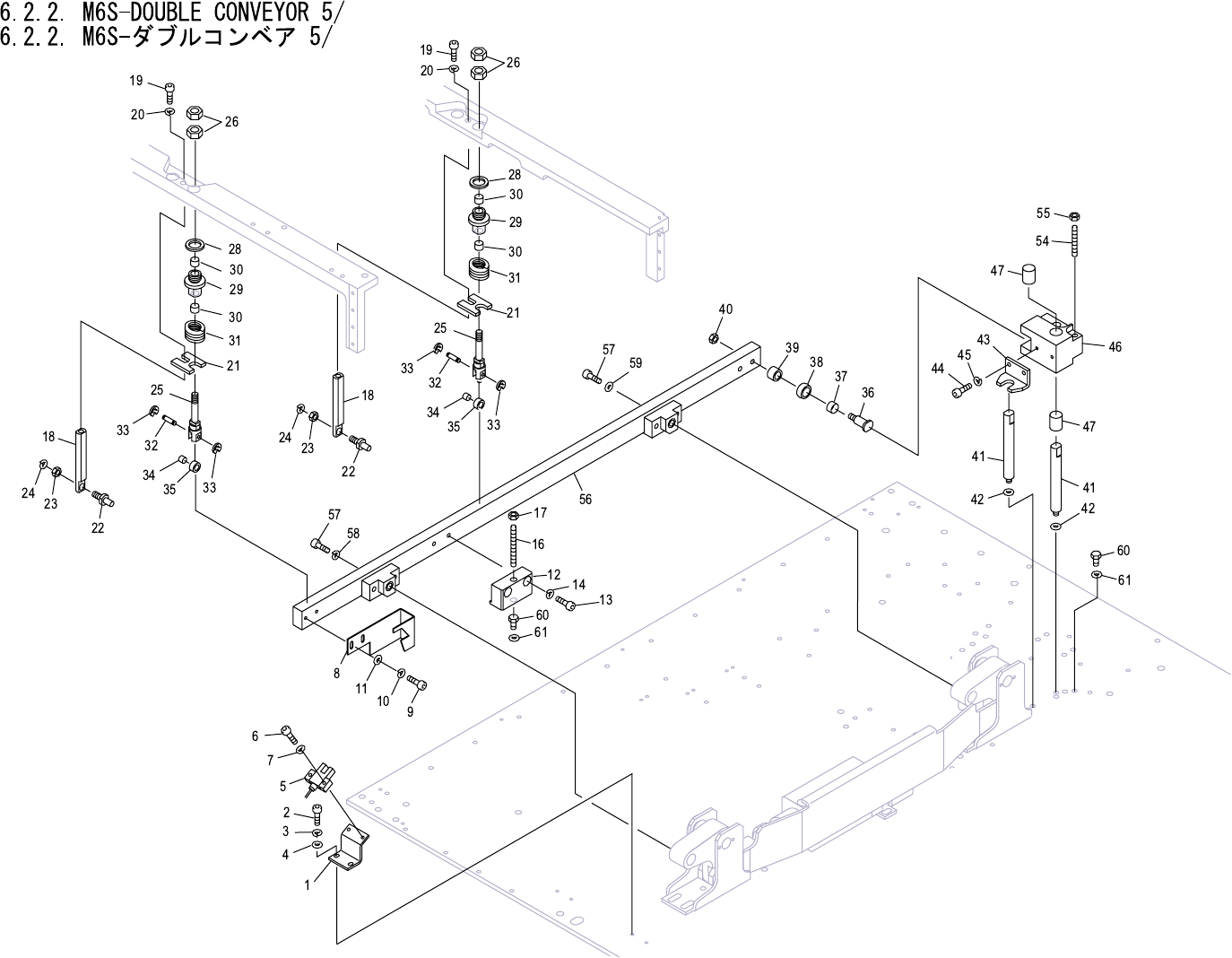
6.2.2. M6S-DOUBLE CONVEYOR 5/
6.2.2. M6S-ダブルコンベア 5/
UQ01331
No. Drg.No. & Code No. QTY Description Rating Materials Remark
番号 図番 & コード番号 個数 品名 規格 材質 備考
1 PB18690 1 BKT SENSOR BKT センサ FE
2 H5275A 2 BOLT, HEX SOCKET ボルト 六角穴 M03X008 FE
3 W1021A 2 WASHER, LOCK ワッシャ スプリング 3M/M FE
4 W1042A 2 WASHER, FLAT ワッシャ 平 4W- 3 FE
5 S4077S 1 SENSOR, PHOTO センサ フォト PM-K44P 3m OT
6 H5276A 2 BOLT, HEX SOCKET ボルト 六角穴 M03X010 FE
7 W1021A 2 WASHER, LOCK ワッシャ スプリング 3M/M FE
8 PB27750 1 DOG ドッグ FE
9 H5275A 2 BOLT, HEX SOCKET ボルト 六角穴 M03X008 FE
10 W1021A 2 WASHER, LOCK ワッシャ スプリング 3M/M FE
11 W1042A 2 WASHER, FLAT ワッシャ 平 4W- 3 FE
12 PM50053 1 BKT STOPPER BKT ストッパ FE
13 H5288A 2 BOLT, HEX SOCKET ボルト 六角穴 M04X010 FE
14 W1011A 2 WASHER, CONICAL ワッシャ 皿 M- 4-L FE
16 PZ19131 1 BOLT ボルト FE
17 N1082A 1 NUT, HEX ナット 六角 M 5 P=0.8 FE
18 PM50040 2 ROD ロッド FE
19 H5263C 2 BOLT, HEX SOCKET ボルト 六角穴 M05X016 FE
20 W1023A 2 WASHER, LOCK ワッシャ スプリング 5M/M FE
21 PP01470 2 PLATE プレ-ト FE
22 PM50010 2 PIN ピン FE
23 N1083A 2 NUT, HEX ナット 六角 M 5 P=0.8 3シュ FE
24 W1023A 2 WASHER, LOCK ワッシャ スプリング 5M/M FE
25 PM27114 2 SHAFT シャフト FE
26 N1086A 4 NUT, HEX ナット 六角 M 6 P=1.0 3シュ FE
28 PM27862 2 WASHER ワッシャ FE
29 PM27252 2 HOUSING ハウジング FE
30 H4322A 4 BEARING, DRY ベアリング ドライ DUB 0606 OT
31 S3260A 2 SPRING スプリング SWU21-25 OT
32 PM99000 2 PIN ピン FE
33 S1047K 4 CIR-CLIP サークリップ E-3 OT
34 H4316T 2 BEARING, DRY ベアリング ドライ DUB0405 OT
35 PM27140 2 ROLLER ロ-ラ FE
36 PM50020 1 PIN ピン FE
37 H4325A 1 BEARING, DRY ベアリング ドライ DUB 0806 OT
38 PM27130 1 ROLLER ロ-ラ FE
39 PM55740 1 WASHER ワッシャ FWSSB-D12-V8-T8 FE
40 N1083A 1 NUT, HEX ナット 六角 M 5 P=0.8 3シュ FE
6. CONVEYOR / コンベア 191 PTS-NXT-06JE