NXT part list(Vol.1-Vol.3).pdf - 第478页
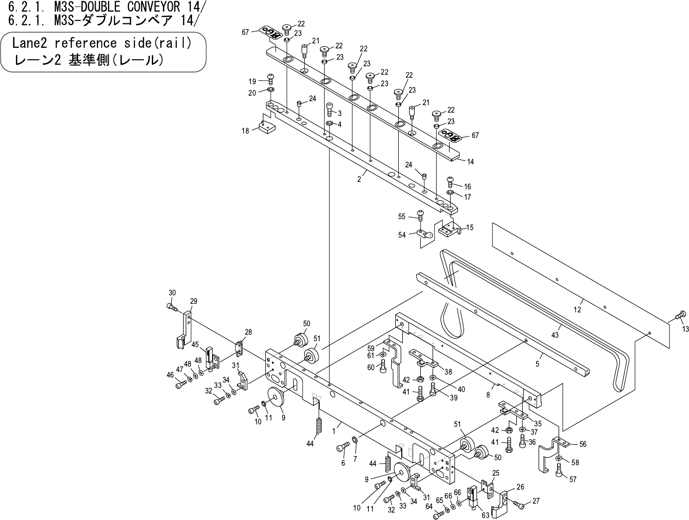
6.2.1. M3S-DOUBLE CONVEYOR 14/ 6.2.1. M3S- ダブルコンベア 14/ UQ01232 No. Drg.No. & Code No. QTY Description Rating Materials Remark 番号 図番 & コード番号 個数 品名 規格 材質 備考 1 PM92310 1 PLATE プレート FE 2 PM11605 1 RAIL レール FE 3 H528…

A
UQ01232
6. CONVEYOR / コンベア 158 PTS-NXT-06JE

6.2.1. M3S-DOUBLE CONVEYOR 14/
6.2.1. M3S-ダブルコンベア 14/
UQ01232
No. Drg.No. & Code No. QTY Description Rating Materials Remark
番号 図番 & コード番号 個数 品名 規格 材質 備考
1 PM92310 1 PLATE プレート FE
2 PM11605 1 RAIL レール FE
3 H5288A 4 BOLT, HEX SOCKET ボルト 六角穴 M04X010 FE
4 W1011A 4 WASHER, CONICAL ワッシャ 皿 M- 4-L FE
5 PM11620 1 GUIDE,BELT ガイド ベルト AL
6 H5287A 4 BOLT, HEX SOCKET ボルト 六角穴 M04X008 FE
7 W1011A 4 WASHER, CONICAL ワッシャ 皿 M- 4-L FE
8 PM11636 1 PLATE,GUIDE プレート ガイド FE
9 PM01751 2 GUIDE ガイド FE
10 H5276A 2 BOLT, HEX SOCKET ボルト 六角穴 M03X010 FE
11 W1010A 2 WASHER, CONICAL ワッシャ 皿 M- 3-L FE
12 PM09100 1 PLATE,CLAMPING プレート クランプ FE
13 K5255A 4 SCREW, HEX SOCKET BUTTON 小ネジ 六角穴ボタン M03X004 FE
14 PM83101 1 PLATE, RETAINING プレート 押え FE
15 PM40092 1 GUIDE ガイド FE
16 K5255T 2 SCREW, HEX SOCKET BUTTON 小ネジ 六角穴ボタン M03X006 FE
17 W1010A 2 WASHER, CONICAL ワッシャ 皿 M- 3-L FE
18 PM01963 1 GUIDE ガイド FE
19 K5255T 2 SCREW, HEX SOCKET BUTTON 小ネジ 六角穴ボタン M03X006 FE
20 W1010A 2 WASHER, CONICAL ワッシャ 皿 M- 3-L FE
21 PM23703 2 PIN,REFERENCE ピン 基準 FE
22 PM01723 6 BOLT ボルト FE
23 PM03470 6 COLLAR カラー FE
24 H3170B 2 PLUNGER, BALL プランジャ ボール SBP-4 OT
25 PM92391 1 BKT, SENSOR BKT センサ FE
26 PM67442 1 GUIDE ガイド FE
27 H5429N 2 BOLT, HEX SOCKET ボルト 六角穴 CBS3-8 FE
28 PM92401 1 BKT, SENSOR BKT センサ FE
29 PM67432 1 GUIDE ガイド FE
30 H5429N 2 BOLT, HEX SOCKET ボルト 六角穴
CBS3-8 FE
31 PM97050 2 BLOCK, LOCATING ブロック 位置決め FE
32 H5275A 4 BOLT, HEX SOCKET ボルト 六角穴 M03X008 FE
33 W1021A 4 WASHER, LOCK ワッシャ スプリング 3M/M FE
34 W1041F 4 WASHER, FLAT ワッシャ 平 Jガタヒラザガネ 3゚X6 FE
35 PM12141 1 PLATE プレート FE
36 H5275A 2 BOLT, HEX SOCKET ボルト 六角穴 M03X008 FE
37 W1021A 2 WASHER, LOCK ワッシャ スプリング 3M/M FE
38 PM12151 1 PLATE プレート FE
6. CONVEYOR / コンベア 159 PTS-NXT-06JE

6.2.1. M3S-DOUBLE CONVEYOR 14/
6.2.1. M3S-ダブルコンベア 14/
UQ01232
No. Drg.No. & Code No. QTY Description Rating Materials Remark
番号 図番 & コード番号 個数 品名 規格 材質 備考
39 H5275A 2 BOLT, HEX SOCKET ボルト 六角穴 M03X008 FE
40 W1021A 2 WASHER, LOCK ワッシャ スプリング 3M/M FE
41 PM52670 2 BOLT ボルト FE
42 N1080A 2 NUT, HEX ナット 六角 M 4 P=0.7 FE
43 XB01010 1 CONVEYOR,BELT コンベア ベルト OT
44 PZ14450 2 SPRING スプリング WR5-35 OT
45 XS01453 1 SENSOR, FIBER センサ ファイバ HPF-S333-D OT 投光側 Emitter
46 H5273A 2 BOLT, HEX SOCKET ボルト 六角穴 M03X005 FE
47 W1021A 2 WASHER, LOCK ワッシャ スプリング 3M/M FE
48 W1041F 4 WASHER, FLAT ワッシャ 平 Jガタヒラザガネ 3゚X6 FE
50 ADBPP8011 2 PULLEY,ASSY プーリ ASSY OT
51 AA93001 2 PULLEY プーリ OT
54 PT01130 1 PLATE, REFERENCE プレート 基準 FE
55 K5255T 2 SCREW, HEX SOCKET BUTTON 小ネジ 六角穴ボタン M03X006 FE
56 PB18160 1 HOOK フック FE
57 H5274A 2 BOLT, HEX SOCKET ボルト 六角穴 M03X006 FE
58 W1021A 2 WASHER, LOCK ワッシャ スプリング 3M/M FE
59 PB18150 1 HOOK フック FE
60 H5274A 2 BOLT, HEX SOCKET ボルト 六角穴 M03X006 FE
61 W1021A 2 WASHER, LOCK ワッシャ スプリング 3M/M FE
63 XS01453 1 SENSOR, FIBER センサ ファイバ HPF-S333-D OT 受光側 Receiver
64 H5273A 2 BOLT, HEX SOCKET ボルト 六角穴 M03X005 FE
65 W1021A 2 WASHER, LOCK ワッシャ スプリング 3M/M FE
66 W1041F 4 WASHER, FLAT ワッシャ 平 Jガタヒラザガネ 3゚X6 FE
67 PZ14130 2 SEAL
ビ
ニ-ルシ-ト PL
6. CONVEYOR / コンベア 160 PTS-NXT-06JE