NXT part list(Vol.1-Vol.3).pdf - 第314页
5. XY-ROBOT / XYロボット 314 PTS-NXT-06JE
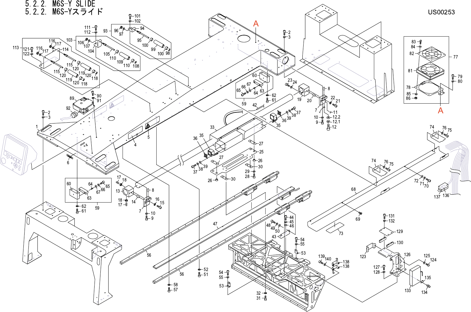
5. XY-ROBOT / XYロボット 313 PTS-NXT-06JE

5. XY-ROBOT / XYロボット 314 PTS-NXT-06JE

5.2.2. M6S-Y SLIDE
5.2.2. M6S-Yスライド
US00253
No. Drg.No. & Code No. QTY Description Rating Materials Remark
番号 図番 & コード番号 個数 品名 規格 材質 備考
1 PM90994 1 FRAME フレーム FE
2 H5341A 22 BOLT, HEX SOCKET ボルト 六角穴 M08X020 FE
3 W1025A 22 WASHER, LOCK ワッシャ スプリング 8M/M FE
4 PZ25260 2 SEAL シール PL
5 PZ25270 2 SEAL シール PL
6 PX01500 1 SEAL, BAR CODE シール バーコード OT
7 PM91181 2 BKT BKT FE
8 H2095W 2 PIN, PARALLEL ピン 平行 ゚8X18(Aシュ)OT
9 H5324A 4 BOLT, HEX SOCKET ボルト 六角穴 M06X020 FE
10 W1024A 4 WASHER, LOCK ワッシャ スプリング 6M/M FE
11 EEBR1791 1 SEAL シール OT
12 H5298A 1 BOLT, HEX SOCKET ボルト 六角穴 M05X010 FE
12.1 W1023A 1 WASHER, LOCK ワッシャ スプリング 5M/M FE
12.2 W1050A 1 WASHER, FLAT ワッシャ 平 5M/MX1.0X10(1W-5) FE
13 PM91201 1 HOLDER ホルダ FE
14 H2095W 1 PIN, PARALLEL ピン 平行 ゚8X18(Aシュ)OT
15 H5321A 2 BOLT, HEX SOCKET ボルト 六角穴 M06X012 FE
16 W1013A 2 WASHER, CONICAL ワッシャ 皿 M- 6-H FE
17 N4103C 4 SCREW, HEX SOCKET SET ネジ 六角穴止め SBCP5-12 FE
18 N1085A 4 NUT, HEX ナット 六角 M 6 P=1.0 FE
19 PM91192 1 CLAMPER クランパ FE
20 H2095W 1 PIN, PARALLEL ピン 平行 ゚8X18(Aシュ)OT
21 H5321A 2 BOLT, HEX SOCKET ボルト 六角穴 M06X012 FE
22 W1013A 2 WASHER, CONICAL ワッシャ 皿 M- 6-H FE
23 H5304A 2 BOLT, HEX SOCKET ボルト 六角穴 M05X025 FE
24 W1023A 2 WASHER, LOCK ワッシャ スプリング 5M/M FE
25 PB58652 1 PLATE, JOINT プレート ジョイント FE
26 PJ08540 4 COLLAR カラー OT
27 PJ10130 2 SPACER スペーサ OT
28 H57115 4 BOLT, HEX SOCKET ボルト 六角穴 M06X020 ステンレス
FE
29 W1024H 4 WASHER, LOCK ワッシャ スプリング 6M/M ステンレス FE
30 PB61182 1 SHIM シム FE Note.1
31 H5321A 4 BOLT, HEX SOCKET ボルト 六角穴 M06X012 FE
32 W1013A 4 WASHER, CONICAL ワッシャ 皿 M- 6-H FE
33 AA41F00 1 MOTOR, LINEAR モータ リニア OT
35 H3013C 2 FAN ファン 109P0424G302 OT
36 K1141R 2 GUARD, FIN ガード フィン 109-059 OT
37 H5283A 8 BOLT, HEX SOCKET ボルト 六角穴 M03X035 FE
5. XY-ROBOT / XYロボット 315 PTS-NXT-06JE