NXT part list(Vol.1-Vol.3).pdf - 第295页
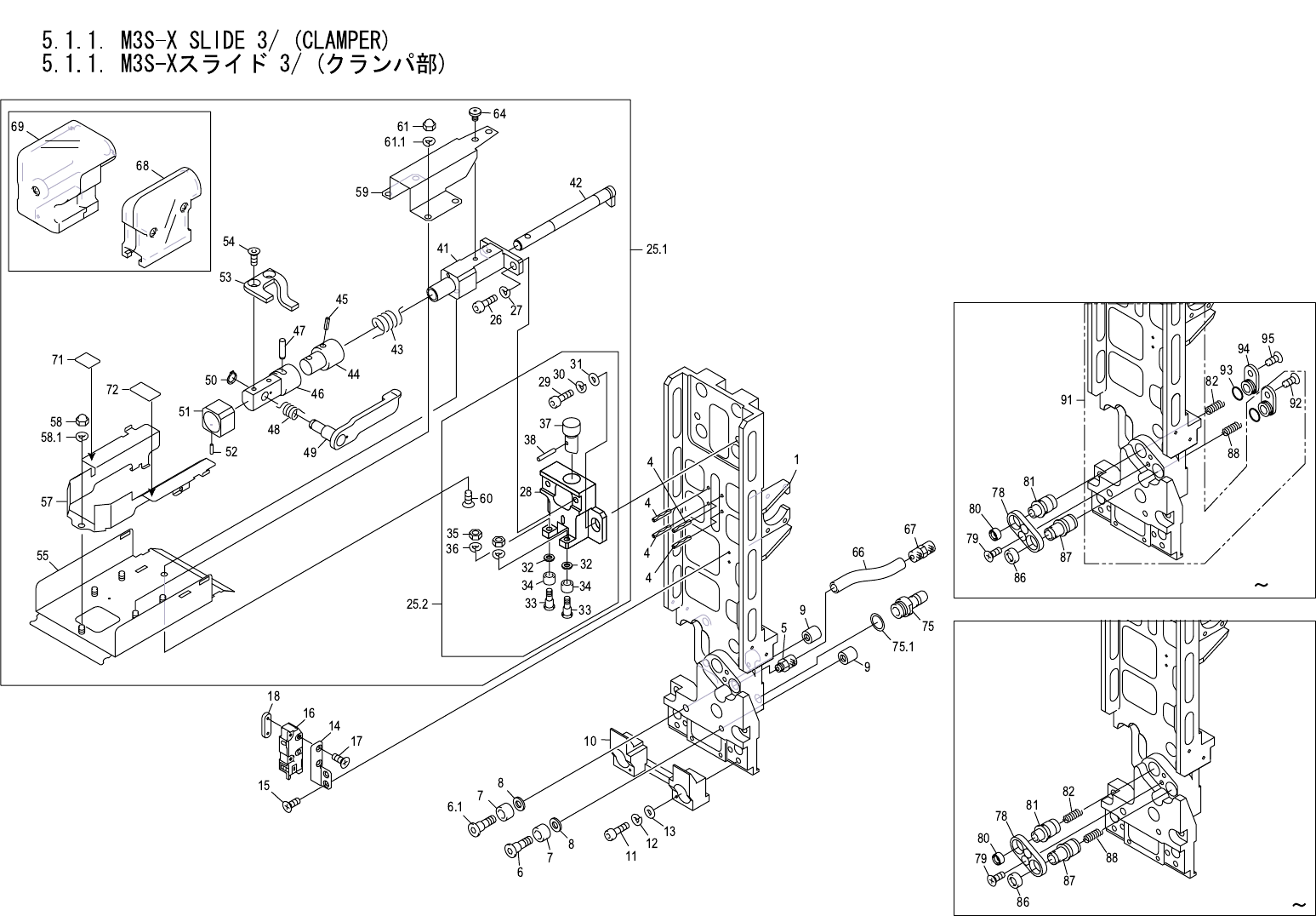
5.1.1. M3S-X SLIDE 3/ (CLAMPER) 5.1.1. M3S-X スライド 3/ ( クランパ部 ) US00383 No. Drg.No. & Code No. QTY Description Rating Materials Remark 番号 図番 & コード番号 個数 品名 規格 材質 備考 1 PM63783 1 SLIDE, X-AXIS スライド X軸 FE 4 H2043A 4 …

A
S/N3581 4066
S/N4067
US00383
5. XY-ROBOT / XYロボット 294 PTS-NXT-06JE

5.1.1. M3S-X SLIDE 3/ (CLAMPER)
5.1.1. M3S-Xスライド 3/ (クランパ部)
US00383
No. Drg.No. & Code No. QTY Description Rating Materials Remark
番号 図番 & コード番号 個数 品名 規格 材質 備考
1 PM63783 1 SLIDE, X-AXIS スライド X軸 FE
4 H2043A 4 PIN, SPRING ピン スプリング 2゚X12 OT
5 N2031A 1 NIPPLE ニップル M-5H-6 OT
6 PM05833 1 PIN, ROLLER ピン ローラ FE
6.1 PM29353 1 PIN, ROLLER ピン ローラ FE
7 PM05814 2 ROLLER ローラ FE
8 PM05820 2 COLLAR カラー FE
9 PM05771 2 NUT ナット FE
10 PM19774 1 CLAMPER クランパ FE
11 H5289A 2 BOLT, HEX SOCKET ボルト 六角穴 M04X012 FE
12 W1022A 2 WASHER, LOCK ワッシャ スプリング 4M/M FE
13 W1043A 2 WASHER, FLAT ワッシャ 平 4W- 4 FE
14 PP00621 1 BKT, SW BKT SW FE
15 K5169M 2 SCREW, C/R COUNTERSUNK 小ネジ 十穴皿 M02X005(ステンレス)FE
16 S5161A 1 SW, MICRO SW マイクロ AV630564 OT
17 K5169Y 2 SCREW, C/R COUNTERSUNK 小ネジ 十穴皿 M2X10(ステンレス)FE
18 PP00610 1 NUT ナット FE
25.1 AA554** 1 CLAMPER クランパ OT
25.2 AA594** 1 BLOCK ブロック OT
26 H5289A 2 BOLT, HEX SOCKET ボルト 六角穴 M04X012 FE
27 W1022A 2 WASHER, LOCK ワッシャ スプリング 4M/M FE
28 PM07515 1 BLOCK ブロック AL
29 K5261H 2 SCREW, HEX SOCKET BUTTON 小ネジ 六角穴ボタン M05X012 FE
30 W1023A 2 WASHER, LOCK ワッシャ スプリング 5M/M FE
31 W1044A 2 WASHER, FLAT ワッシャ 平 4W- 5 FE
32 PM05800 2 COLLAR カラー FE
33 PM05793 2 PIN, ROLLER ピン ローラ FE
34 PM05784 2 ROLLER ローラ FE
35 N1077H 2 NUT, HEX ナット 六角 M 3 P=0.5 3シュ FE
36 W1021A 2 WASHER, LOCK ワッシャ スプリング
3M/M FE
37 PM07535 1 PUSHER プッシャ FE
38 R5007A 1 ROLLER, NEEDLE ローラ ニードル ゚2.0X11.8 OT
41 PM07526 1 HOLDER ホルダ AL
42 PM29202 1 SHAFT シャフト FE
43 PZ05130 1 SPRING, TORSION スプリング ネジリ FE
44 PM23282 1 HOLDER ホルダ FE
45 H2049A 1 PIN, SPRING ピン スプリング 3゚X12 OT
46 PM23293 1 HOLDER ホルダ FE
5. XY-ROBOT / XYロボット 295 PTS-NXT-06JE

5.1.1. M3S-X SLIDE 3/ (CLAMPER)
5.1.1. M3S-Xスライド 3/ (クランパ部)
US00383
No. Drg.No. & Code No. QTY Description Rating Materials Remark
番号 図番 & コード番号 個数 品名 規格 材質 備考
47 PZ09880 1 PIN, PARALLEL ピン 平行 OT
48 PZ07641 1 SPRING, TORSION スプリング ネジリ FE
49 PB24300 1 LEVER レバー FE
50 S1027A 1 CIR-CLIP サークリップ STW 5 OT
51 PH00292 1 COLLAR カラー PL
52 H2092L 1 PIN, PARALLEL ピン 平行 ゚1M6X4 OT
53 PP00672 1 BKT, STOPPER BKT ストッパ FE
54 K5357T 2 SCREW, HEX SOCKET COUNTERSUNK 小ネジ 六角穴皿 M03X008 FE
55 PP01810 1 DUCT, WIRING ダクト 配線 FE
57 PB35083 1 COVER, WIRING カバー 配線 FE
58 N1108K 1 NUT, DOMED CAP ナット 六角袋 M3 FE
58.1 W1021A 1 WASHER, LOCK ワッシャ スプリング 3M/M FE
59 PP00642 1 BKT, SUPPORT BKT 支え FE
60 K5357G 1 SCREW, HEX SOCKET COUNTERSUNK 小ネジ 六角穴皿 M03X004 FE
61 N1108K 4 NUT, DOMED CAP ナット 六角袋 M3 FE
61.1 W1021A 4 WASHER, LOCK ワッシャ スプリング 3M/M FE
64 PZ09970 2 BOLT, HEX SOCKET ボルト 六角穴 FE
66 PZ07200 1 TUBE チューブ OT
67 XZ00010 1 JOINT, HOSE ジョイント ホース OT
68 AA06E01 1 COVER, CONNECTOR カバー コネクタ OT
69 AA06F01 1 COVER, CONNECTOR カバー コネクタ OT
71 PS00810 1 SHEET シート PL
72 PS01070 1 SHEET シート PL
75 PM78572 1 NIPPLE, VOLUTE ニップル 竹の子 FE
75.1 PJ11722 1 WASHER ワッシャ .
78 PB55210 1 RETAINER 押え FE
79 K5169Z 2 SCREW, C/R COUNTERSUNK 小ネジ 十穴皿 M02.5X008 クロイロクロメート FE
80 PG00974 1 PACKING パッキン PL
81 AA3RY01 1 JOINT ジョイント OT
82 PZ05010 1 SPRING スプリング FE
86 PH00990 1 PACKING パッキン PL
87 AA3RX01 1 JOINT ジョイント OT
88 PZ20350 1 SPRING スプリング FE
91 AA3RZ01 1 SLIDE, X-AXIS
スライド X軸 OT
92 K5357H 1 SCREW, HEX SOCKET COUNTERSUNK 小ネジ 六角穴皿 M03X005 FE
93 A5172W 1 O RING Oリング SS 7 OT
94 PM06481 1 COVER 蓋 FE
95 K5357H 1 SCREW, HEX SOCKET COUNTERSUNK 小ネジ 六角穴皿 M03X005 FE
5. XY-ROBOT / XYロボット 296 PTS-NXT-06JE