NXT part list(Vol.1-Vol.3).pdf - 第775页
8. ACCESSORIES / アクセサリ 207 PTS-NXT-06JE

8.1. MCU-MODULE CHANGEOVER UNIT 5/
8.1. MCU-モジュール交換台車 5/
UX00122
No. Drg.No. & Code No. QTY Description Rating Materials Remark
番号 図番 & コード番号 個数 品名 規格 材質 備考
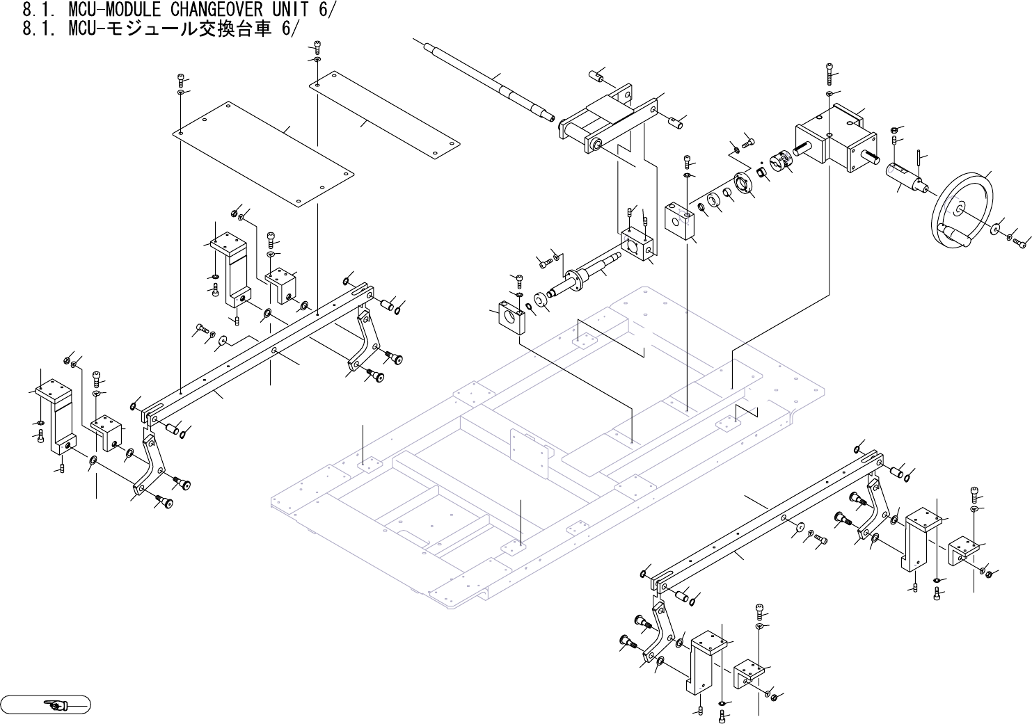
39 H2186R 1 PIN ピン CCGH20-160 OT
40 PM08251 1 SHAFT, PIVOT シャフト 支点 FE
41 H5362A 2 BOLT, HEX SOCKET ボルト 六角穴 M10X035 FE
42 W1015A 2 WASHER, CONICAL ワッシャ 皿 M-10-H FE
43 PB04261 1 PLATE プレート FE
44 H5503R 2 BOLT ボルト UUSCB6-15 OT
45 H5289A 2 BOLT, HEX SOCKET ボルト 六角穴 M04X012 FE
46 W1022A 2 WASHER, LOCK ワッシャ スプリング 4M/M FE
47 PM08261 1 BKT BKT FE
48 W1092W 1 WASHER ワッシャ WSSBH35-10-5 OT
49 H5210A 1 BOLT, HEX ボルト 六角 M10X025 10.9 ゼンネジ FE
50 W1026A 1 WASHER, LOCK ワッシャ スプリング 10M/M FE
51 H1187W 2 PAD パット LEMN12 OT
52 H5234A 2 BOLT, HEX ボルト 六角 M12X070 10.9 ゼンネジ FE
53 N1096A 4 NUT, HEX ナット 六角 M12 P=1.75 FE
8. ACCESSORIES / アクセサリ 206 PTS-NXT-06JE
8. ACCESSORIES / アクセサリ 207 PTS-NXT-06JE

C
E
C
J
D
E
F
A
L
M
B
K
B
A
J,K,L,M
A
F
D
Ref.1/
1
2
3
4
6
5
7
8
7
8
9
11
10
14
15
17
16
6
1
2
3
4
5
6
7
7
8
8
9
10
11
14
15
16
17
5
6
6.1
7
7
14
15
16
17
9
8
8
10
11
24
25
26
27
28
29
30
31
32
34
33
35
36
37
38
39
40
41
42
43
44
45
46
47
48
49
49
50
54
56
57
58
55
5
7
8
7
8
9
11
10
12
13
14
15
17
16
12
13
12
13
12
13
6.1
6.1
6.1
6.1
6.1
6.1
6.1
18
19
20
21
22
23
51
52
53
UX00122
8. ACCESSORIES / アクセサリ 208 PTS-NXT-06JE