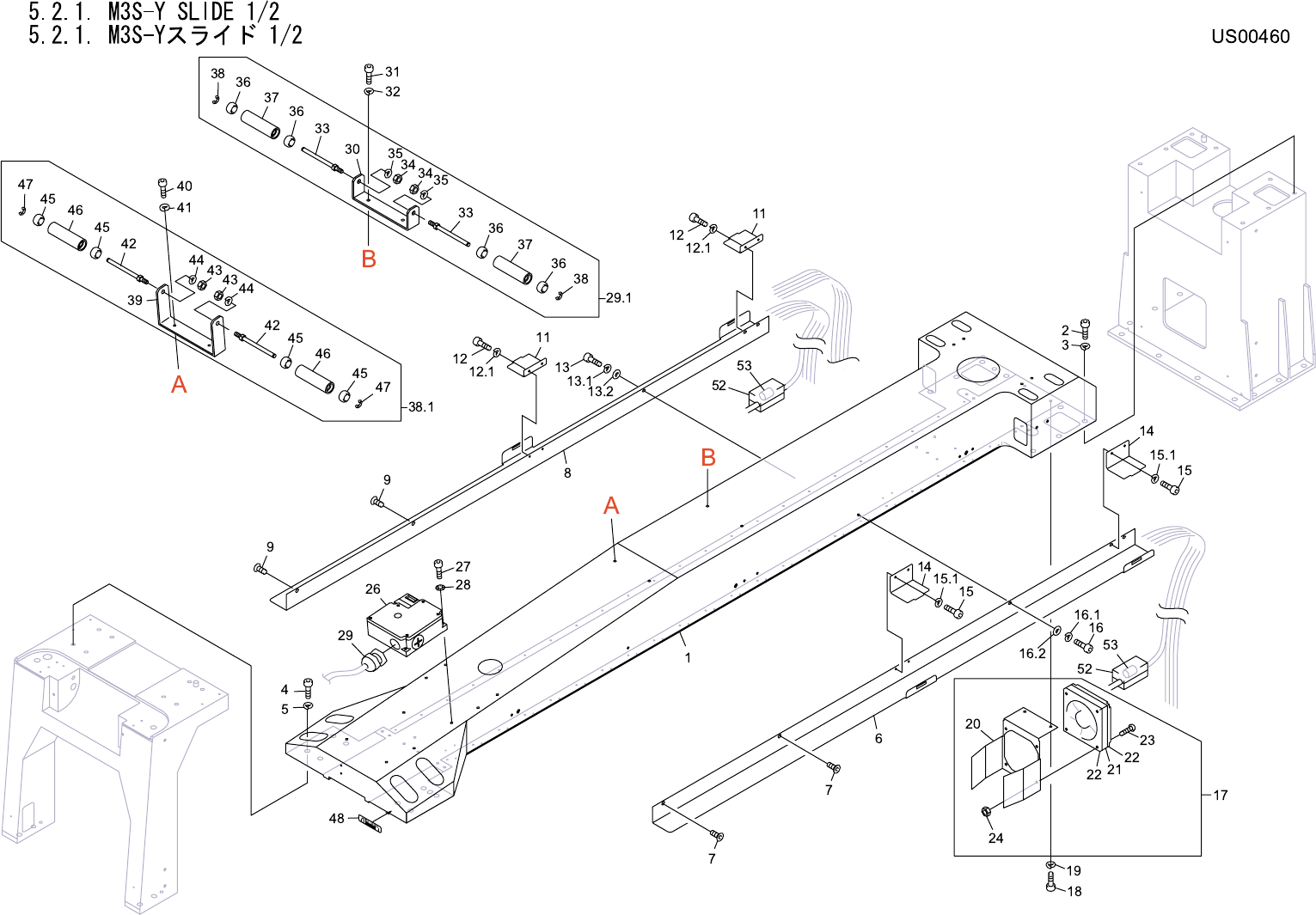
NXT part list(Vol.1-Vol.3).pdf - 第305页
5. XY-ROBOT / XYロボット 305 PTS-NXT-06JE

5.1.2. M6S-X SLIDE 2/ (CLAMPER)
5.1.2. M6S-Xスライド 2/ (クランパ部)
US00160
No. Drg.No. & Code No. QTY Description Rating Materials Remark
番号 図番 & コード番号 個数 品名 規格 材質 備考
47 PZ09880 1 PIN, PARALLEL ピン 平行 OT
48 PZ07641 1 SPRING, TORSION スプリング ネジリ FE
49 PB24300 1 LEVER レバー FE
50 S1027A 1 CIR-CLIP サークリップ STW 5 OT
51 PH00292 1 COLLAR カラー PL
52 H2092L 1 PIN, PARALLEL ピン 平行 ゚1M6X4 OT
53 PP00672 1 BKT, STOPPER BKT ストッパ FE
54 K5357T 2 SCREW, HEX SOCKET COUNTERSUNK 小ネジ 六角穴皿 M03X008 FE
55 PP01810 1 DUCT, WIRING ダクト 配線 FE
57 PB35083 1 COVER, WIRING カバー 配線 FE
58 N1108K 1 NUT, DOMED CAP ナット 六角袋 M3 FE
58.1 W1021A 1 WASHER, LOCK ワッシャ スプリング 3M/M FE
59 PP00642 1 BKT, SUPPORT BKT 支え FE
60 K5357G 1 SCREW, HEX SOCKET COUNTERSUNK 小ネジ 六角穴皿 M03X004 FE
61 N1108K 4 NUT, DOMED CAP ナット 六角袋 M3 FE
61.1 W1021A 4 WASHER, LOCK ワッシャ スプリング 3M/M FE
64 PZ09970 2 BOLT, HEX SOCKET ボルト 六角穴 FE
66 PZ07200 1 TUBE チューブ OT
67 XZ00010 1 JOINT, HOSE ジョイント ホース OT
68 AA06E01 1 COVER, CONNECTOR カバー コネクタ OT
69 AA06F01 1 COVER, CONNECTOR カバー コネクタ OT
71 PS00810 1 SHEET シート PL
72 PS01070 1 SHEET シート PL
75 PM78572 1 NIPPLE, VOLUTE ニップル 竹の子 FE
75.1 PJ11722 1 WASHER ワッシャ PL
78 PB55210 1 RETAINER 押え FE
79 K5169Z 2 SCREW, C/R COUNTERSUNK 小ネジ 十穴皿 M02.5X008 クロイロクロメート FE
80 PG00974 1 PACKING パッキン PL
81 AA3RY01 1 JOINT ジョイント OT
82 PZ05010 1 SPRING スプリング FE
86 PH00990 1 PACKING パッキン PL
87 AA3RX01 1 JOINT ジョイント OT
88 PZ20350 1 SPRING ス
プ
リン
グ
FE
5. XY-ROBOT / XYロボット 304 PTS-NXT-06JE
5. XY-ROBOT / XYロボット 305 PTS-NXT-06JE

5. XY-ROBOT / XYロボット 306 PTS-NXT-06JE