NXT part list(Vol.1-Vol.3).pdf - 第803页
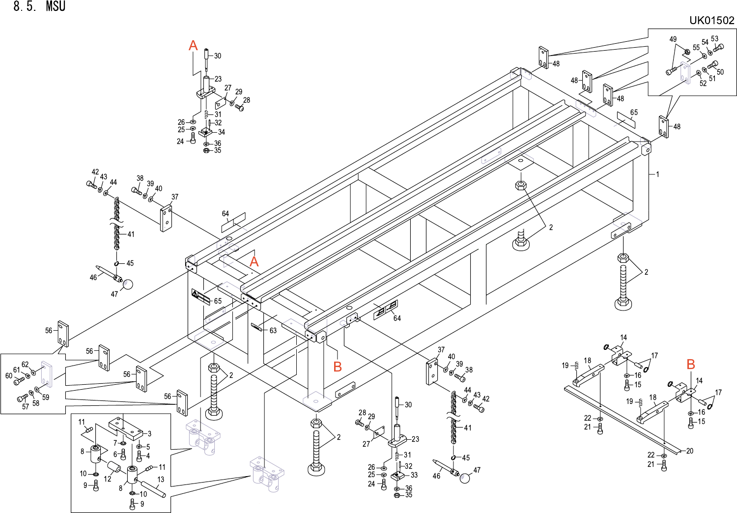
8.5. MSU UK01502 No. Drg.No. & Code No. QTY Description Rating Materials Remark 番号 図番 & コード番号 個数 品名 規格 材質 備考 1 PM61014 1 FRAME フレーム FE 2 A1250D 4 ADJUSTER アジャスタ FJSN20-130 OT 3 PM55783 2 PLATE プレート FE 4 H5343B 4…

8. ACCESSORIES / アクセサリ 234 PTS-NXT-06JE

8.5. MSU
UK01502
No. Drg.No. & Code No. QTY Description Rating Materials Remark
番号 図番 & コード番号 個数 品名 規格 材質 備考
1 PM61014 1 FRAME フレーム FE
2 A1250D 4 ADJUSTER アジャスタ FJSN20-130 OT
3 PM55783 2 PLATE プレート FE
4 H5343B 4 BOLT, HEX SOCKET ボルト 六角穴 M08X030 ユニクロメッキ(シロ)FE
5 W1025C 4 WASHER, LOCK ワッシャ スプリング 8M/M ユニクロメッキ(シロ)FE
6 H5715M 2 BOLT, HEX SOCKET ボルト 六角穴 M08X015 ユニクロメッキシロ FE
7 W1014A 2 WASHER, CONICAL ワッシャ 皿 M- 8-H FE
8 PM55771 4 GUIDE ガイド FE
9 H57158 4 BOLT, HEX SOCKET ボルト 六角穴 M12X025 ユニクロメッキシロ FE
10 W1016A 4 WASHER, CONICAL ワッシャ 皿 M-12-H FE
11 N4048C 4 SCREW, HEX SOCKET SET ネジ 六角穴止め M06X010 ヒラサキ ステンレス FE
12 PM50281 2 ROLLER ローラ FE
13 PM50270 2 PIN, ROLLER ピン ローラ FE
14 PB31123 2 BKT BKT FE
15 H5299B 4 BOLT, HEX SOCKET ボルト 六角穴 M05X012 ユニクロメッキシロ FE
16 W1023B 4 WASHER, LOCK ワッシャ スプリング 5M/M ユニクロメッキ(シロ)FE
17 H2189S 2 PIN ピン HCDGH10-30 OT
18 PM60952 2 LEVER レバー FE
19 S3260D 2 SPRING スプリング SWR10.5-25 OT
20 PB33754 1 BKT BKT FE
21 H5298B 2 BOLT, HEX SOCKET ボルト 六角穴 M05X010 ユニクロメッキ(シロ)FE
22 W1023B 2 WASHER, LOCK ワッシャ スプリング 5M/M ユニクロメッキ(シロ)FE
23 PM61005 2 HOLDER, STOPPER
ホルダ ストッパ FE
24 H5326B 4 BOLT, HEX SOCKET ボルト 六角穴 M06X025 ユニクロメッキ(シロ)FE
25 W1024B 4 WASHER, LOCK ワッシャ スプリング 6M/M ユニクロメッキ(シロ)FE
26 W1045B 4 WASHER, FLAT ワッシャ 平 4W-6 ユニクロメッキ(シロ)FE
27 PB39372 2 PLATE, GUIDE プレート ガイド FE
28 K5257C 4 SCREW, HEX SOCKET BUTTON 小ネジ 六角穴ボタン M04X008 ユニクロメッキシロ FE
29 W1022B 4 WASHER, LOCK ワッシャ スプリング 4M/M ユニクロメッキ(シロ)FE
30 PM60991 2 STOPPER ストッパ FE
31 S3019L 2 SPRING スプリング WL10-45 OT
32 H2093M 2 PIN, PARALLEL ピン 平行 ゚4X25 Aシュ OT
33 PM60973 1 PLATE プレート FE
34 PM60983 1 PLATE プレート FE
35 N1082B 2 NUT, HEX ナット 六角 M 5 P=0.8 1シュ ユニクロメッキ(シロ)FE
36 W1023B 2 WASHER, LOCK ワッシャ スプリング 5M/M ユニクロメッキ(シロ)FE
37 PB33745 2 PLATE, STOPPER プレート ストッパ FE
38 H5342B 4 BOLT, HEX SOCKET ボルト 六角穴 M08X025 ユニクロメッキ(シロ)FE
8. ACCESSORIES / アクセサリ 235 PTS-NXT-06JE

8.5. MSU
UK01502
No. Drg.No. & Code No. QTY Description Rating Materials Remark
番号 図番 & コード番号 個数 品名 規格 材質 備考
39 W1025C 4 WASHER, LOCK ワッシャ スプリング 8M/M ユニクロメッキ(シロ)FE
40 W1046B 4 WASHER, FLAT ワッシャ 平 4W-8 ユニクロメッキ(シロ)FE
41 T20439 2 CHAIN チェーン CHSP4-200 OT
42 H5274B 2 BOLT, HEX SOCKET ボルト 六角穴 M03X006 ユニクロメッキ(シロ)FE
43 W1021B 2 WASHER, LOCK ワッシャ スプリング 3M/M ユニクロメッキ(シロ)FE
44 W1040B 2 WASHER, FLAT ワッシャ 平 3M/M ユニクロメッキ(シロ)FE
45 R2035R 2 RING リング RWS14 OT
46 PM60964 2 PIN, STOPPER ピン ストッパ FE
47 N21197 2 GRIP 握り PBA8-35-R OT
48 PB21483 4 PLATE, STOPPER プレート ストッパ FE Transport bracket
49 H5494E 8 BOLT, STOPPER ボルト ストッパ UNAH3-15 OT
50 H5343B 8 BOLT, HEX SOCKET ボルト 六角穴 M08X030 ユニクロメッキ(シロ)FE
51 W1025C 8 WASHER, LOCK ワッシャ スプリング 8M/M ユニクロメッキ(シロ)FE
52 W1046B 8 WASHER, FLAT ワッシャ 平 4W-8 ユニクロメッキ(シロ)FE
53 H5343B 4 BOLT, HEX SOCKET ボルト 六角穴 M08X030 ユニクロメッキ(シロ)FE
54 W1025C 4 WASHER, LOCK ワッシャ スプリング 8M/M ユニクロメッキ(シロ)FE
55 W1046B 4 WASHER, FLAT ワッシャ 平 4W-8 ユニクロメッキ(シロ)FE
56 PB21472 4 PLATE, FIXED プレート 固定 FE Transport bracket
57 H5343B 8 BOLT, HEX SOCKET ボルト 六角穴 M08X030
ユニクロメッキ(シロ)FE
58 W1025C 8 WASHER, LOCK ワッシャ スプリング 8M/M ユニクロメッキ(シロ)FE
59 W1046B 8 WASHER, FLAT ワッシャ 平 4W-8 ユニクロメッキ(シロ)FE
60 H5343B 4 BOLT, HEX SOCKET ボルト 六角穴 M08X030 ユニクロメッキ(シロ)FE
61 W1025C 4 WASHER, LOCK ワッシャ スプリング 8M/M ユニクロメッキ(シロ)FE
62 W1046B 4 WASHER, FLAT ワッシャ 平 4W-8 ユニクロメッキ(シロ)FE
63 PX03620 1 SEAL, BAR CODE シール バーコード PL
64 PZ19230 2 SEAL シール PL
65 PZ25580 2 SEAL シール PL
8. ACCESSORIES / アクセサリ 236 PTS-NXT-06JE