CP8机械手册.pdf - 第39页
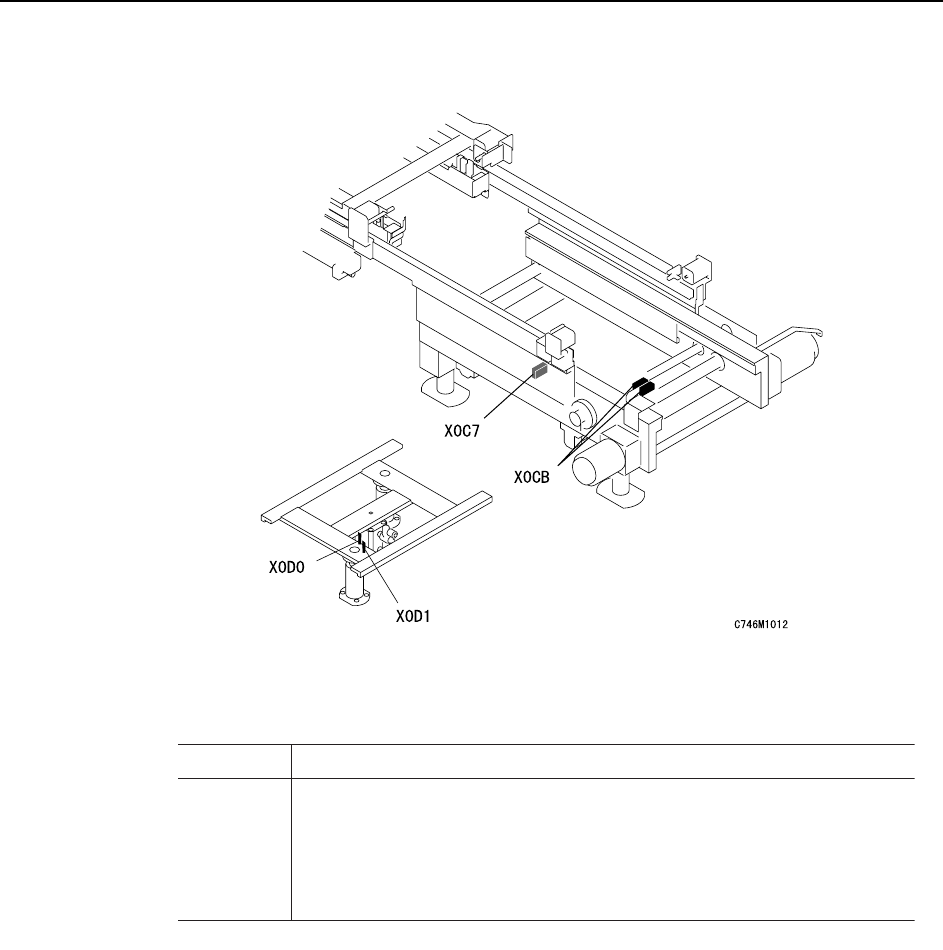
各部分的功能和名称 >> 传感器 配置图 MEC-CP-842-1 .0S 3-15 3.3.3 送出侧搬运轨道 &07 ;& ;&% ;' ;' 䗕ߎջᨀ䖤䔼䘧⬉䏃ᵓࠄ䖒⹂䅸 䗕ߎջᨀ䖤䔼䘧䗕ߎ⬉䏃ᵓࠄ䖒⹂䅸 䗕ߎջछ䰡ᵓϞछッ⹂䅸 䗕ߎջछ䰡ᵓϟ䰡ッ⹂䅸 6HQVRU1R ֵোৡ⿄

各部分的功能和名称 >> 传感器配置图
3-14 MEC-CP-842-1.0S
3.3.2 载入侧搬运轨道

各部分的功能和名称 >> 传感器配置图
MEC-CP-842-1.0S 3-15
3.3.3 送出侧搬运轨道
&07
;&
;&%
;'
;'
䗕ߎջᨀ䖤䔼䘧⬉䏃ᵓࠄ䖒⹂䅸
䗕ߎջᨀ䖤䔼䘧䗕ߎ⬉䏃ᵓࠄ䖒⹂䅸
䗕ߎջछ䰡ᵓϞछッ⹂䅸
䗕ߎջछ䰡ᵓϟ䰡ッ⹂䅸
6HQVRU1R
ֵোৡ⿄

各部分的功能和名称 >> 传感器配置图
3-16 MEC-CP-842-1.0S
3.3.4 主搬运轨道
;&
;'&
;'%
&0