JM-20使用说明书.pdf - 第1003页
第 2 部 功能详解篇 第 13 章 选项组件 13 - 21 2) 请确认 台架上 没有芯片 等异物。 ※ 请务必确认 台架上没有垃圾 等异物。 如果夹入了异物 ,就不能正确 固定定位单元,可能对 供给位置 的 精度造成 影响 。 3) 在台架 上安装 定位单元。 可以安装的位置 有 2 处。 可安装位置 固定用钻孔 固定板

第 2 部 功能详解篇 第 13 章 选项组件
13-20
(2) 安装步骤
※ 对于统一更换台车规格,需要台架在升起的状态,将统一更换台车安装在主机上。
※ 用于安装 MBF-L 的统一更换台车,需是对应圆型供料器的统一更换台车。未对应的统一更换
台车,没有用于安装定位单元的钻孔,并且也没有安装连接器托架,所以无法使用。
※ 将 MBF-L 安装在主机上时,需要先将定位单元安装在主机台架上。
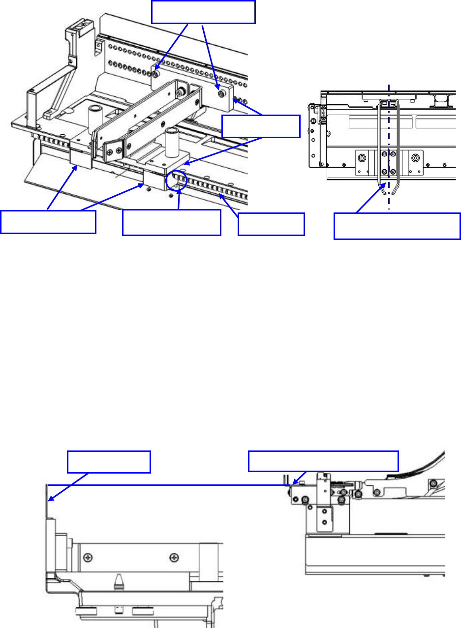
1) 可以在台架的左右 2 处安装 MBF-L。
统一更换台车规格时,需要将安装统一更换台车的圆型供料器一侧的 FS_PLATE 取下。取下
时使用六角扳手。
※ 不使用带台车圆型供料器,而使用其他供料器类时,请安装上 FS_PLATE。
主机为统一更换台车规格时,要先将统一更换台车安装在主机上。安装方法请参考『13-4 统一更
换台车』的『( 1)安装步骤』的『( 2)~(6)』。
对应带台车圆型供料器
统一更换台车
连接器托架
定位单元固定用钻孔
螺丝 M4
左侧 4 处
右侧 3 处
FS_PLATE_L
FSPLATER

第 2 部 功能详解篇 第 13 章 选项组件
13-21
2) 请确认台架上没有芯片等异物。
※ 请务必确认台架上没有垃圾等异物。
如果夹入了异物,就不能正确固定定位单元,可能对供给位置的精度造成影响。
3) 在台架上安装定位单元。
可以安装的位置有 2 处。
可安装位置
固定用钻孔
固定板

第 2 部 功能详解篇 第 13 章 选项组件
13-22
将定位单元的固定螺丝对准台架固定板的钻孔进行固定。请将定位单元的 2 处锁紧支架的边
缘,安装卡入台架锁紧轴的槽内。
请确认定位单元与台架对接无缝,直立安装。
请确认定位单元安装稳当,无高低缝隙。
4) 对统一更换台车规格,请确认台架已升起。
接下来,调整带台车的圆型供料器的高度。
调整带台车的圆型供料器的 高度,使得台 架的编号牌的边缘与带台车圆型供料器的
PP_ADJUSTER 上面(B 部)处于同一高度。
※ 台车框的两边有刻度标识,是高度调整大致的参考,正确的安装高度是使编号牌与
PP_ADJUSTER 的高度平齐。
编号牌
要直立安装
螺丝(2 处)M6
锁紧轴
锁紧支架
嵌入槽内
不要有间隙
PP_ADJUSTER