CP-7-series Verification System Instruction manual(2.0E).pdf - 第15页
3. Hardware Configuration Edition 2.0 4 CP-7-series V erification System Instruction Manual 3.2 System Component Explanations 3.2.1 Machine Rear <When using Handy T erminal PDT -3100> <When using Handy T erminal…

3. Hardware Configuration
Edition 2.0 3 CP-7-series Verification System Instruction Manual
3. Hardware Configuration
3.1 Device Configuration Table
The following 3 devices are available for CP-7 Verifications operations (with software ver. 2.00
and later), and they can be used in the configurations (combinations) shown in the table below,
depending on the required functions and operation environment.
• Handy Terminal
• Setup sensor & LED
• Feeder ID read system
The optional verification device configuration to be used must be specified at the machine
control panel. Even if a device is present, it may not function if the “configuration” setting is
incorrect.
Fujitrax required
or not
Not required
Not required
Not required
Not required
Required
Required
Required
Required
N/A
N/A
N/A
N/A
✓
✓
✓
✓
N/A
N/A
N/A
N/A
✓
✓
✓
✓
N/A
N/A
N/A
N/A
✓
✓
✓
✓
Handy
Terminal
Setup Sensor and LED
Notes
VT019E
Not supported
Not supported
Hardware configuration
Hardware for Fujitrax
Feeder ID Camera

3. Hardware Configuration
Edition 2.0 4 CP-7-series Verification System Instruction Manual
3.2 System Component Explanations
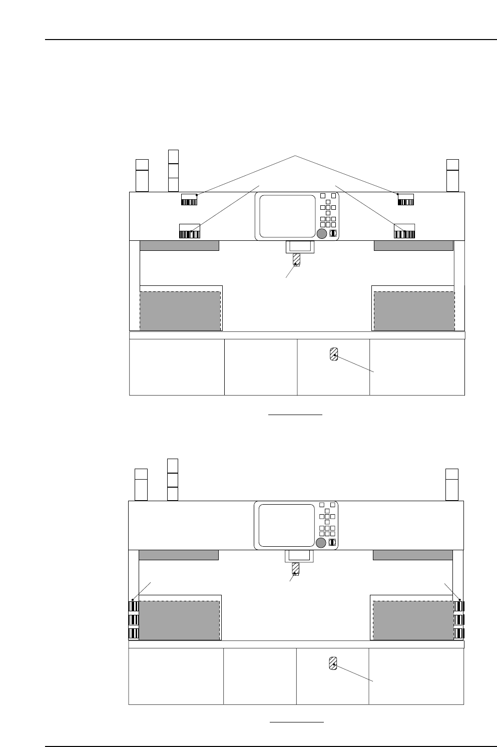
3.2.1 Machine Rear
<When using Handy Terminal PDT-3100>
<When using Handy Terminal BL-N60>
CP7V0085E
Scanner barcode Scanner barcode
Rear View
Handy terminal
connector
Feeder ID read system
RESET RESET
Barcode for resets
Barcode for stage
number reading
CP7V0001Eb
STAGE
STAGE
Rear View
Feeder ID read system
Handy terminal
connector

3. Hardware Configuration
Edition 2.0 5 CP-7-series Verification System Instruction Manual
PDT-3100 Barcode for Resets
When an operator error is detected, an error message displays on the Handy Terminal
screen and a buzzer sounds. A buzzer also sounds on the machine. For example, if the
device comment read at the Handy Terminal is different from that specified by the
recipe, an error status occurs.
A verification error status can be reset by performing either one of the following two
ways:
1. By key input from the Handy Terminal.
2. By reading the reset barcode.
These reset methods cannot be used when an error occurs on the machine, or when
there is a communication error between the Handy Terminal and the machine.
PDT-3100 Barcode For Reading Stage Numbers
There are cases where the stage number must be specified in the course of a Verify
operation procedure.
This can be accomplished by reading the barcode.
Feeder ID Read System
There are two types of feeder ID read systems, one for barcodes and another for 2D
codes.
Handy Terminal Connector
This is the jack where the Handy Terminal is connected.
Scanner Barcode
These barcodes are used when a verification operation is being performed using the
scanner.
Barcode
MENU Displays at the [Main Menu] in the Handy Scanner dialog box.
BACK Returns to the previous Handy Scanner dialog box.
Clears the Handy Scanner dialog box from the screen.
RESET When setup sensors and LEDs are not being used, the slot in question
can be initialized to its "unchecked" status by reading the RESET
barcode at the device comment input screen.
ENT When a "Waiting for [ENT] input" status is in effect at the Handy Scanner
dialog box, read this ENT barcode to proceed to the next screen.
EXIT
STAGE 1
STAGE 2
Used to select a stage.
Explanation
SKIP When the automatic position selection function is in use, the subject slot
designation moves to the next slot when the SKIP barcode is read.
* When a SKIP is performed, only the subject slot is changed. A
verification must subsequently be performed for the skipped slot.
LOG-ON Not supported at present.
LOG-OFF Not supported at present.
1 ~ 12 Used to select an item which displays at the Handy Scanner dialog box.
At present, only 1~9 are used for Fujitrax-Verifier.
VT003Ea