SI-G200MK5 Operation Manual (CS).pdf - 第209页
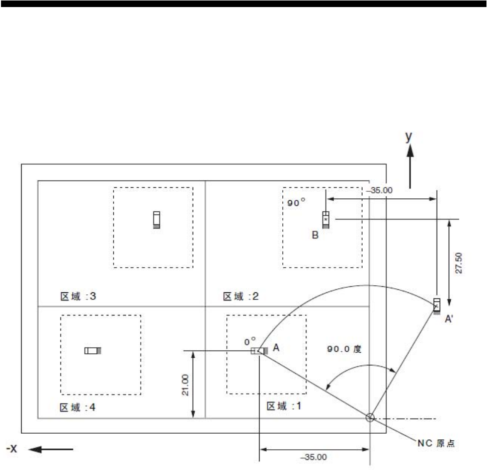
操作篇 电 子零件 贴装 机 SI-G200MK5 系列 1-141 [ 区域的坐标位置 ] 对于区域的各坐标位置,从 NC 原 点至各区域的基准位置 的补正值以 X 、 Y 及角度输 入。 如下图,向一个基板对应 4 个区域的资料输入时 , 决 定作为基准的区域输入那个区 域的基准坐标位置。 对于基准区域以外的区域, 以 NC 原点为基准, 计算角度的补正量得到坐标位置 , 把那个坐标位置的 XY 方向的补正 量做为 X 、 Y 值。

操作篇
电子零件贴装机 SI-G200MK5 系列
1-140
1.1.4.4 区域
图 1.1.4-4 数据编辑-NC 数据编辑-区域画面
ID:
表示所登录数量的序列编号。通常请不要编辑。
设定范围:1~500
X/Y[mm]:
以基准孔的位置为原点(0,0),输入展开后的区域的始点位置的 XY 坐标。
单位:mm
设定范围:-999.999~999.999
角度 :
输入展开后的区域的旋转角度。
单位:deg.
设定范围:0~359.999
dX/dY[mm]:
对于展开后的区域的始点坐标,输入微调用的 XY 补正值。
单位:mm
设定范围:-999.999~999.999
d角度 :
对于展开后的区域的旋转角度,输入微调用的旋转角度补正值。
单位:deg.
设定范围:-359.999~359.999
不良标记
ID :
输入用于各个区域的不良标记的 ID。使用在贴装数据清单的各个步骤里被指定的不良标记 ID 时输入"0"。
设定范围:0~500
定位标记
ID :
输入用于各个区域的定位标记的 ID。使用在贴装数据清单的各个步骤里被指定的定位标记 ID 时输入"0"。
设定范围:0~500

操作篇
电子零件贴装机 SI-G200MK5 系列
1-141
[ 区域的坐标位置]
对于区域的各坐标位置,从NC原点至各区域的基准位置的补正值以X、Y 及角度输入。
如下图,向一个基板对应
4个区域的资料输入时, 决定作为基准的区域输入那个区域的基准坐标位置。
对于基准区域以外的区域,以
NC原点为基准,计算角度的补正量得到坐标位置,把那个坐标位置的XY方向的补正
量做为
X、Y 值。

操作篇
电子零件贴装机 SI-G200MK5 系列
1-142
[零件的展开例]
向一个区域输入贴装数据,对于同一基板里同一模式的复数区域,可以展开贴装数据进行贴装。以下是零件的展
开例。