SI-G200MK5 Operation Manual (CS).pdf - 第56页
调试篇 1. 安装 1-8 电子零件装着机 SI-G200MK5 (CS) 1.5 与前工程机器和后工程机器的连接 连接双输送带 SI-G200MK5 与连接单输送带 SI-G 200MK5 的方法不同。使用单输送带时,请 用 L 型托架连接。 1.5.1 使用单输送带 [ 作 业功能 ] 为了保持 SI- G200MK5 与前工 程和后工程的机器间机械精度,准 备 2 个连接用 L 型托架。安 装这个 L 型托架 ,将 SI- G20…

调试篇
1. 安装
电子零件装着机 SI-G200MK5 (CS)
1-7
(3) 拆卸搬送传感器的保护用托架
将固定搬送传感器保护用托架的
2 个六角有孔螺栓拧松 , 再一起拆卸搬送传感器用托架的螺
丝、螺母。
拆下的保护托架搬迁时要再使用
,
所以请不要废弃而要保管它。
保护托架
六角有孔螺栓
注意 :

调试篇
1. 安装
1-8
电子零件装着机
SI-G200MK5 (CS)
1.5 与前工程机器和后工程机器的连接
连接双输送带 SI-G200MK5 与连接单输送带 SI-G200MK5 的方法不同。使用单输送带时,请
用
L 型托架连接。
1.5.1 使用单输送带
[ 作业功能 ]
为了保持 SI-G200MK5 与前工程和后工程的机器间机械精度,准备 2 个连接用 L 型托架。安
装这个
L 型托架,将 SI-G200MK5 与前后工程机器连接。
[ 准备的物品 ]
L
型托架 ( 与 SI-G200MK5 在同一包装内 ) 2 个
C8 × 22 六角有孔螺栓、六角螺母、弹簧垫圈、平垫圈 各 16 个
[ 作业顺序 ]
(1)
通过 L 型托架与前工程和后工程机器结合
1. 用 C8 × 22 六角有孔螺栓、六角螺母、弹簧垫圈、平垫圈将 L 型托架安装在 SI-G200MK5
左右座上。
2. 分别用 C8 × 22 六角有孔螺栓、六角螺母、弹簧垫圈、平垫圈将前工程机器和后工程机器的
L 型托架与 SI-G200MK5 左右 L 型托架连接。
六角有孔螺栓
六角有孔螺栓
六角有孔螺栓
弹簧垫圈
弹簧垫圈
弹簧垫圈
弹簧垫圈
弹簧垫圈
弹簧垫圈
平垫圈
平垫圈
平垫圈
平垫圈
L 型托架
L 型托架
平垫圈
六角螺母
六角螺母
平垫圈

调试篇
1. 安装
电子零件装着机 SI-G200MK5 (CS)
1-9
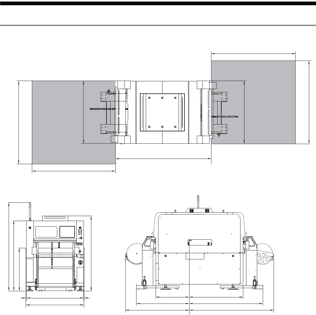
1.6 操作区域的最大尺寸
使用时请确保智能供料器以及交换台车的操作区域为最大尺寸,方法如下所示。
1858
1475
1220
1202
1575
99
ၮ᧼៝ㅍ㜞度
操作区域
操作区域