Chapter3_Repair_Guide.pdf - 第84页
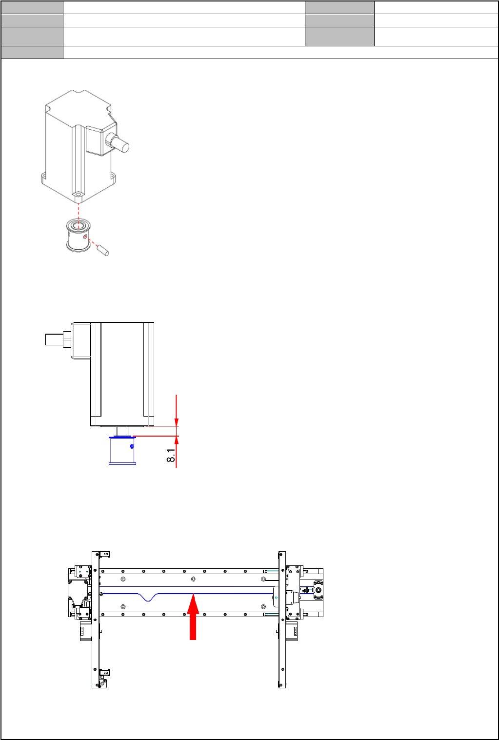
Model DECAN Series Company SAMSUNG TECHWIN Module 3.5 CONVEYOR V ersion 01 Tit le 更换电机 Page 3-5-21 Note [ 更换电机 ] 电机的位置及名称 ① Entry / Exit Zone Frame 宽度调节电机 ② Entry / Exit Zone Rear Frame 宽度调节电机 ③ Entry / Exit Zone Front…

Model
DECAN Series
Company
SAMSUNG TECHWIN
Module
3.5 CONVEYOR
Version
01
Title
宽度调节电机Z上SETTING
Page
3-5-20
Note
4. 将组装于螺丝的 Pulley 顺时针方向旋转 120 度
5. 拆卸电机的 Timing Belt,仅调节 Motor Pulley 在 Z 上感应时,在 Motor Pulley 的 12 点方向进行 I-
Marking
6. 注意 Pulley 之间角度弯曲,拧紧 Timing Belt

Model
DECAN Series
Company
SAMSUNG TECHWIN
Module
3.5 CONVEYOR
Version
01
Title
更换电机
Page
3-5-21
Note
[更换电机]
电机的位置及名称
① Entry / Exit Zone Frame 宽度调节电机
② Entry / Exit Zone Rear Frame 宽度调节电机
③ Entry / Exit Zone Front Frame PCB 移送电机
④ Entry / Exit Zone Rear Frame PCB 移送电机
⑤ Work Zone Front Fix Frame PCB 移送电机
⑥ Work Zone Front Move Frame PCB 移送电机
⑦ Work Zone 动力传达电机
更换 Entry / Exit Zone Frame 宽度调节电机
1. 拆卸连接到电机的电缆
2. 松开固定电机的固定螺栓后,拆卸

Model
DECAN Series
Company
SAMSUNG TECHWIN
Module
3.5 CONVEYOR
Version
01
Title
更换电机
Page
3-5-22
Note
3. 松开固定螺丝,拆卸 Pulley
4. 更换新电机
5. 如下组装电机和 Pulley
6. 将电机组装于传输带
7. 调整传输带张力
张力:22±2 Hz