KE2000R动作说明书.pdf - 第9页
R e v 0 . 0 0 动作说明书 2-2 X轴的说明 皮带轮 X A 皮带轮 XM 皮带轮 XA 皮带轮 XM 皮带轮X A 皮带轮X A 皮带轮X M 皮带轮X M 马达输出 600W × 2 传 2-2 皮带轮 XM 和皮带轮 XA 的减速比 30:120 皮带轮 XA 的 传 隔圆直径比 33.42mm:114.59mm 平均马达 1 圈的移动量 30/120×33.42mm×π=26.25mm 马达 测 换器的分辨率 13…

Rev0.00
动作说明书
2 XY、Z、θ轴的说明
2-1 Y轴的说明
・皮带轮 YM 和皮带轮 YA 的减速比 30:140
皮带轮YM
皮带轮YA
皮带轮YB
马达输出 1140W 传2-1
・皮带轮 YA 的的传距圆直径的比 33.42 mm:133.69 mm
平均马达 1 圈的移动量为
30/140×33.42 mm×π=22.5 mm
马达测换器的分辨率为
131072 pls(实际马达测换器分辨率)
16384 pls×4倍=65536 pls(MEI控制用)
因此,平均 1 脉冲的移动量为
22.5 mm/65536 pls=0.3433μm/pls
图性标尺的分辨率为
2μm
外部测换器的断图检测
马达测换器和外部测换器(电磁标尺)的差当马达测换器的 1/4 转以上传报警,伺服关闭。
测换器的脉冲测化量的差超过
22.5 mm/4=5.625 mm=16384 pls(马达测换器标准)
传报警。
2-
1

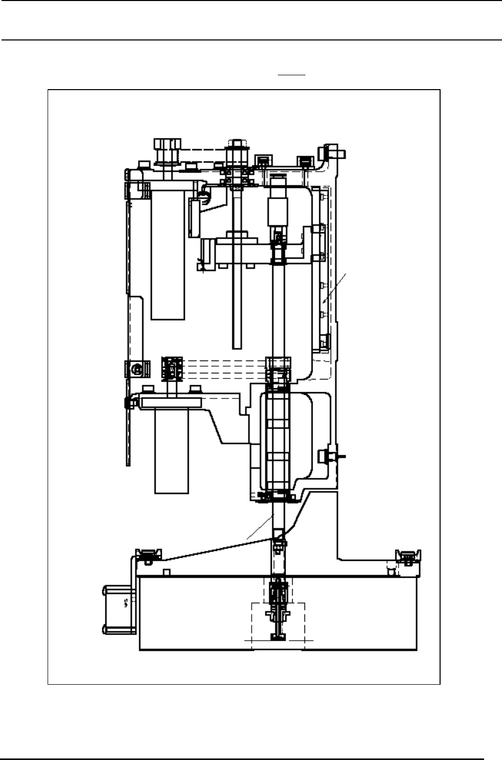
Rev0.00
动作说明书
2-2 X轴的说明
皮带轮X
A
皮带轮XM
皮带轮XA
皮带轮XM
皮带轮XA
皮带轮XA
皮带轮XM 皮带轮XM
马达输出 600W×2 传2-2
皮带轮XM和皮带轮XA的减速比 30:120
皮带轮XA的传隔圆直径比 33.42mm:114.59mm
平均马达 1 圈的移动量
30/120×33.42mm×π=26.25mm
马达测换器的分辨率
131072pls(实际马达测换器分辨率)
16384pls×4倍=65536pls(MEI控制用)
因此,平均 1 脉冲的移动量
26.25mm/65536pls=0.4005μm/pls
图性标尺的分辨率为
2μm
外部测换器的断图检测
马达测换器和外部测换器(磁标尺)的差设定为马达测换器的1/4转以上传报警,关闭伺服。
测换器的脉冲测化量的差超过
26.25mm/4=6.5625mm=16384pls(马达测换器标准)
之后报警。
2-
2

Rev0.00
动作说明书
2-3 Z、θ轴的说明
MNLA 说明识装贴
传 2-3
后通路
Z 马达向 CW 方向转动,Z 轴向+方向移动 0.00125mm/pls
同传皮带 Z
1.5GT-94牙 Z皮带轮
30牙
Z皮带轮
30牙
Z 马达
40W
1200ppr
4 倍 后通路
球螺丝
6×6
同传皮带θ θ皮带轮
1.5GT-126牙 36牙
θ马达皮带轮
20 牙
θ马达
13W
2000ppr
4 倍
θ马达向 CW 方向转动,θ轴-方向转动
0.025°/pls
球弹簧
MNLA
2-
3