YSM20R_YSM20WR_Ope_K.pdf - 第79页
1-46 1 센서명칭 센서번 호 비고 A 입구컨베이어기판 검출센서 N2 300000 반사 타입 B 대기위치기판검출센서 N2 30000 1 투과 타입 C 컨베이 어 1출 구 확인센서 N 23 00002 투과타입 D 스테이지 1입 구확 인센서 N 23 00003 투과타입 E 스테이지 1기판고정위치기판검출센서 N 23 00004 투과타입 F 스테이지 1출 구 확인센 …

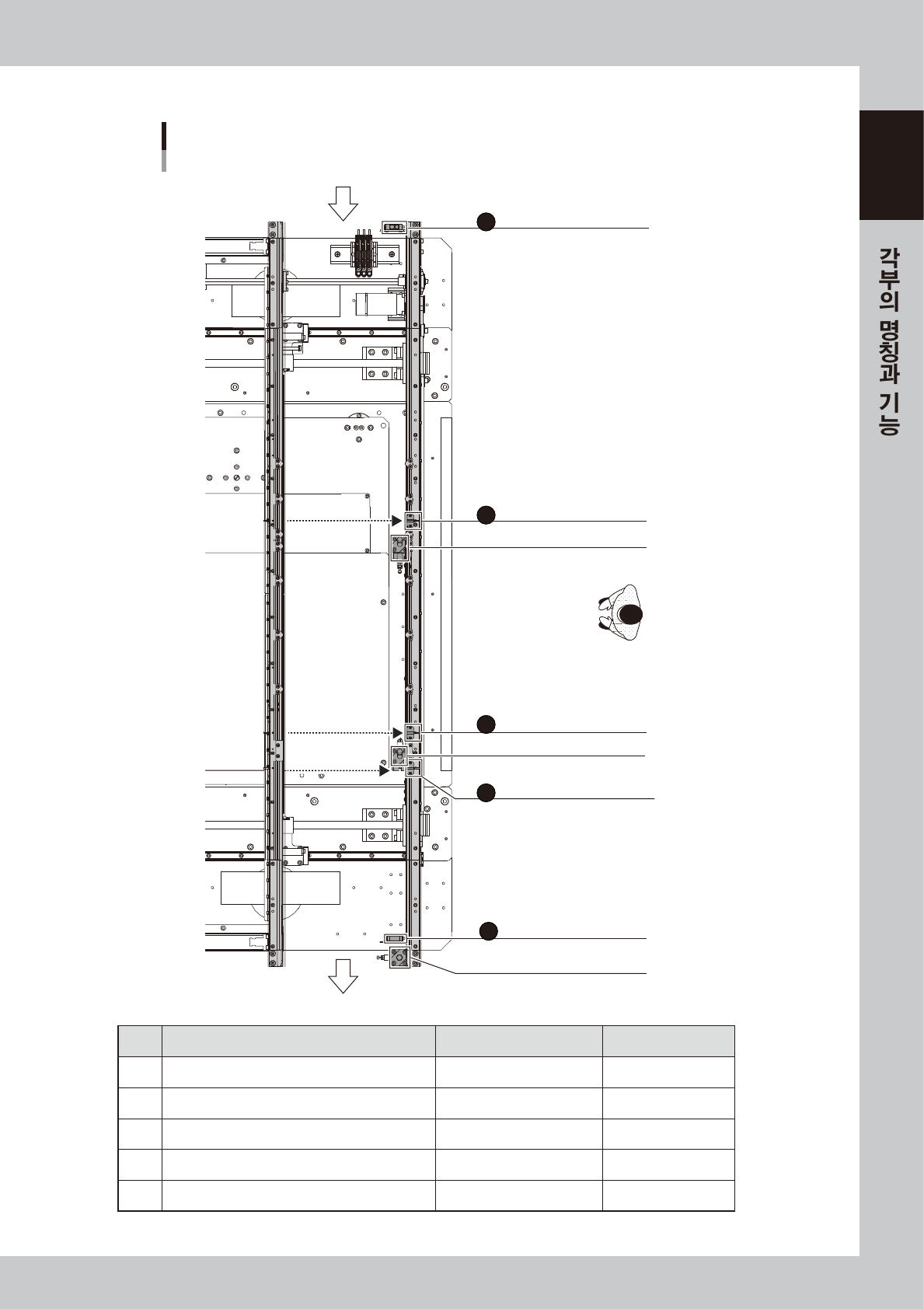
1-45
1
5.2 컨베이어부 센서배치
컨베이어부의 각 센서의 배치를 다음과 같이 표시합니다.
█ YSM20R듀얼스테이지사양
YSM20R 컨베이어 센서의 배치
듀얼 스테이지 (우→좌 흐름의 예)
반송방향
W1/입구 컨베이어
W2/실장 스테이지1
W3/실장 스테이지2
W4/출구 컨베이어
입구 컨베이어 기판검출 센서
대기위치 기판검출 센서
대기위치 스톱퍼
스테이지1 메인 스톱퍼
스테이지2 메인 스톱퍼1
스테이지2 메인 스톱퍼2
출구 스톱퍼
컨베이어1 출구확인 센서
스테이지1 입구확인 센서
스테이지2 입구확인 센서
스테이지1 출구확인 센서
스테이지1
기판 고정위치 기판검출 센서
스테이지2
기판 고정위치 기판검출 센서
스테이지2 출구확인 센서
컨베이어4 입구확인 센서
출구위치 기판검출 센서
A
B
C
D
E
F
G
H
I
J
K
27125-KMK-0 0

1-46
1
센서명칭 센서번호 비고
A 입구컨베이어기판검출센서 N2300000 반사타입
B 대기위치기판검출센서 N2300001 투과타입
C 컨베이어 1출구확인센서 N2300002 투과타입
D 스테이지 1입구확인센서 N2300003 투과타입
E 스테이지 1기판고정위치기판검출센서 N2300004 투과타입
F 스테이지 1출구확인센서 N2300005 투과타입
G 스테이지 2입구확인센서 N2301000 투과타입
H 스테이지 2기판고정위치기판검출센서 N2301001 투과타입
I 스테이지 2출구확인센서 N2301002 투과타입
J 컨베이어 4출구확인센서 N2301003 투과타입
K 출구위치기판검출센서 N2301007 반사타입
n
요점
컨베이어 센서의 상태는 [ 장치 ]-「I/O」화면에서 확인할 수 있습니다.
█ 컨베이어센서의상태확인방법
컨베이어 센서 번호와 I/O확인
[장치] - 「I/O」 화면
1. 「Input」 쪽의 「컨베이어」 를 선택
2. 해당 어드레스를 선택
예 ) N2300005 스테이지1 출구확인 센서
3. 센서의 동작조건을 확인
예) 스테이지1 출구확인 센서
검출 1 / 미검출 0
「1」 또는 「0」 으로
현재의 센서상태를 표시
Address
N230000
N230100
Type
컨베이어
컨베이어
7
0
6 5
1
4
0
3
1
1
2
1
1
1
0
0
0
0
1
28118 - K MK- 0 0

1-47
1
█ YSM20R싱글레인L=360mm 사양
YSM20R 컨베이어 센서의 배치
싱글레인 L=360mm 사양 (우→좌 흐름의 예)
반송방향
대기위치 스톱퍼
입구 컨베이어 기판검출 센서
대기위치 기판검지 센서2
실장위치 기판검지 센서
실장 워크아웃 검지 센서1
출구위치 기판검출 센서
메인 스톱퍼
출구 스톱퍼
A
B
C
D
E
27126-KMK-00
센서명칭 센서번호 비고
A 입구컨베이어기판검출센서 N2300000 반사타입
B 대기위치기판검지센서 2 N2300001 투과타입
C 실장위치기판검지센서 N2300003 투과타입
D 실장워크아웃검지센서 1 N2300004 투과타입
E 출구위치기판검출센서 N2300006 반사타입