FlexTRAK 2MB Material Handler Addendum Rev 05.pdf - 第34页
FlexTRAK Series 2MB Mater ial Handler Adden dum Installation 3-2 © 2023 Nordson Corporati on 3.3 Facility Requirements To ensure optimal performance and s afety, it is necessary to install the plasma system in a facility…

© 2023 Nordson Corporation 3-1
3 Installation
3.1 Overview
The FlexTRAK comes fully integrated into the FlexTRAK-2MB system. Upon installation, a Technical
Support technician will verify that the conveyor, transfer system and plasma chamber are leveled and
aligned to each other and will make the necessary adjustments to the system. Each gripper and conveyor
position will be verified to ensure that the machine will be functional after it is installed at the factory
location.
•
Facility Requirements
•
Connecting to the Facility
•
Unpacking and Storing the System
•
Initial Start
-
up Procedure
•
Placing the System
?
NOTE Normally, Technical Support performs the initial installation of all FlexTRAK-2MB
systems. The procedures in this section are provided in the event the system is relocated
after initial installation.
3.2 Safety First
Before performing any of the procedures in this section, see Section 2 - Safety.

FlexTRAK Series 2MB Material Handler Addendum Installation
3-2 © 2023 Nordson Corporation
3.3 Facility Requirements
To ensure optimal performance and safety, it is necessary to install the plasma system in a facility that
meets or exceeds the requirements listed in the FlexTRAK Installation, Operation, and Maintenance
Manual. If you have any questions about facility requirements, please contact Technical Support.
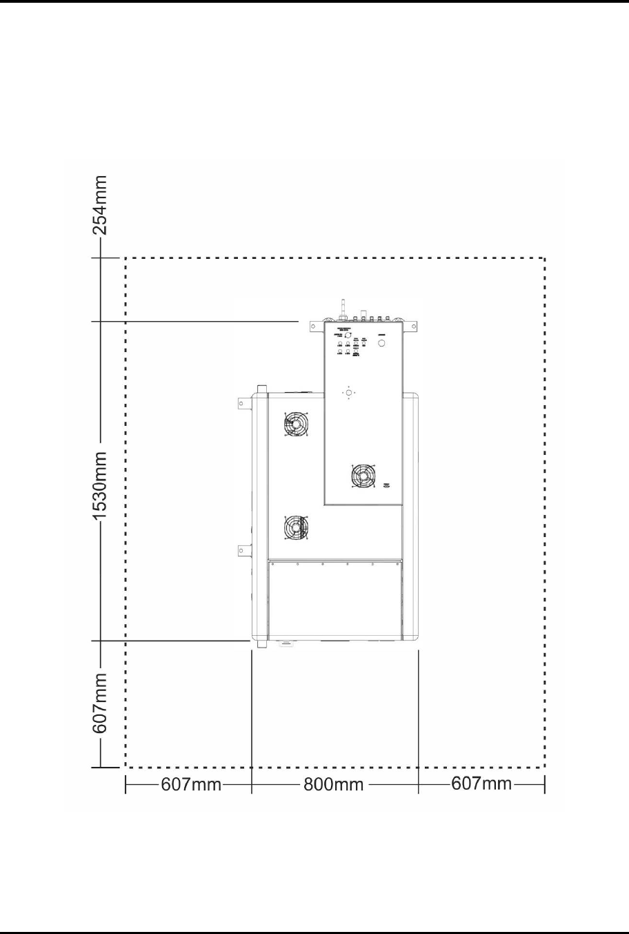
Figure 3-1 shows the recommended working allowances for the FlexTRAK-2MB plasma system.
Figure 3-1 Recommended Working Allowances

FlexTRAK Series 2MB Material Handler Addendum Installation
© 2023 Nordson Corporation 3-3
3.4 Unpacking and Storing the System
3.4.1 Unpacking the System
WARNING! Crated equipment should be moved with a forklift to reduce the
potential for injury.
CAUTION! Many system components are heavy. Use proper lifting and
moving procedures to avoid serious injury.
When the FlexTRAK-2MB System arrives at your facility, we recommend that you perform the
following procedure to ensure it has arrived in good condition.
To unpack the system:
1. Before opening the shipping crate, visually inspect it for damage.
„ Make note of any damage found and immediately report it to the shipping company.
2. Carefully remove the shipping crate and all interior and exterior packaging material.
Visually inspect the main plasma unit and all other system components for any damage.
„ Immediately report any damage found to Technical Support.
„ Keep all shipping containers and materials in case it should be necessary to return any
item to Nordson.
3. Using the included packing list, check to ensure that all listed components have arrived at
your facility.
„ Immediately report any missing or damaged items to Technical Support.
?
NOTE Claims based on late notification of shipping damage will be denied.