NXT-II 机械手册.pdf - 第200页
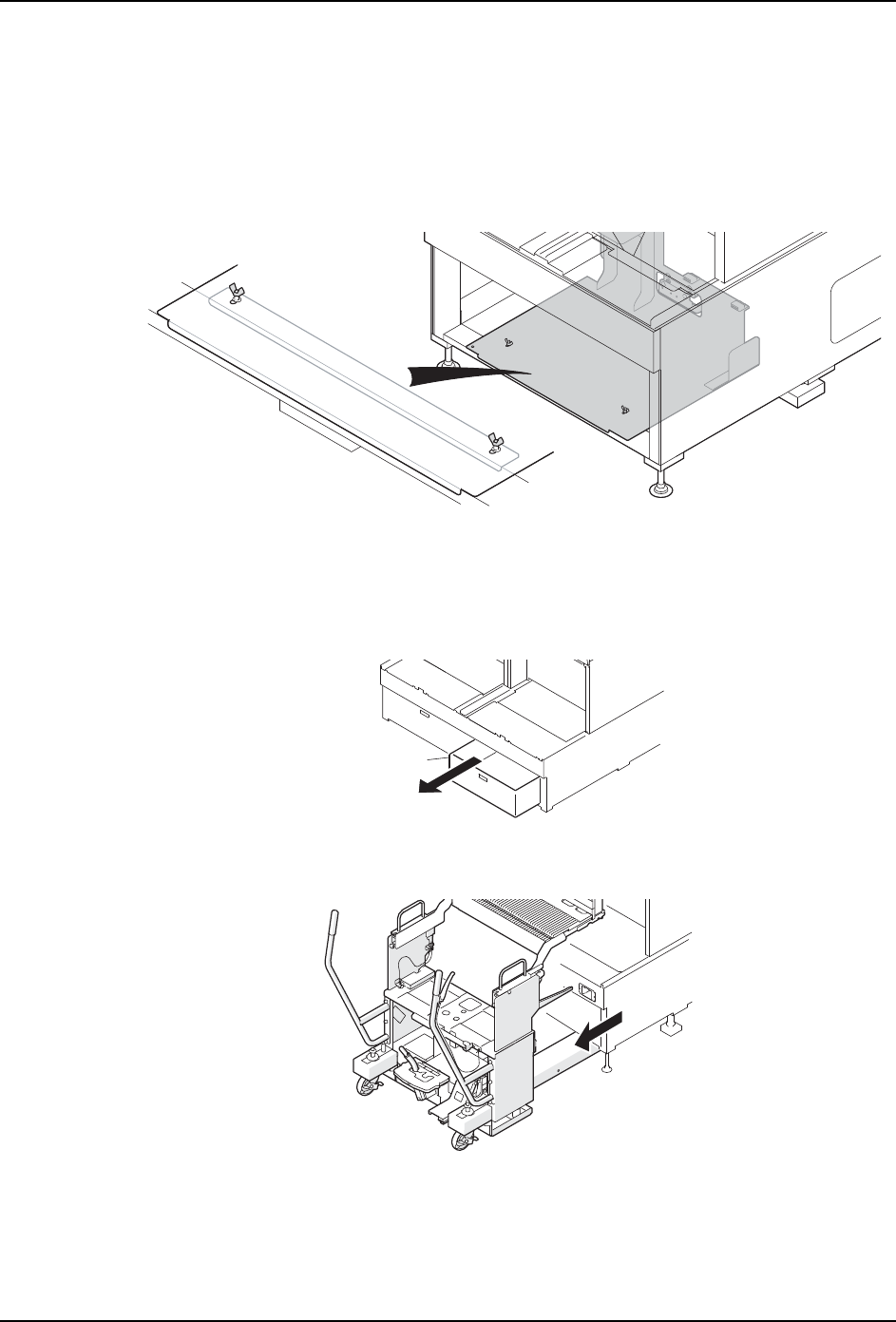
QD145-21 5. 基本操作 NXT II 机械手册 173 3. 请拆除废料带箱下面的盖板。 4. 请拧松螺栓后拆除安装在模组前面 的盖板。 5. 请拧松螺栓后拆除安装在基座上的 废料带导槽 . 6. 请拉出模组。 (参考 「5.1 模组的拉出 / 插入」 。) 7. 请拆除供料器安装部的盖板。 01M E C - 11 9 7 01MEC-1 198 01MEC-1283

5. 基本操作 QD145-21
172 NXT II 机械手册
20.请安装料盘单元 -LTC 用废料带箱承座。
a. 请拧松料盘单元 -LTC 用废料带箱承座的蝶形螺丝,放到基座内。
b. 请用料盘单元 -LTC 用废料带箱承座后面的盖板,插入到基座下面的板中,固定蝶形
螺丝。
备注 )在基座的废料带箱的安装部装有传感器。如果不将料盘单元 -LTC 安装到模组上 , 废料
带处理单元就不动作。
使用料盘单元 -LTC 专用型废料带输送槽 (下)时
在安装料盘单元 -LTC 之前,有必要在模组上装卸与料盘单元相关的单元、变更元件相机的
位置。
1. 卸下废料带箱。
2. 请拆除料站托架,详细的拆除方法请参考 「5.3 料站托架的拆除 / 安装 (使用 PCU
时)」「5.4 料站托架的拆除 / 安装 ( 使用 PCU-2 时 )」。
01MEC-1193
1;70786
ᑳ᭭ᏺㆅ
01MEC-1093

5. 基本操作 QD145-21
174 NXT II 机械手册
8. 请拆下定位螺丝,卸下废料带处理箱 (上侧)。
9. 拆除废料带处理单元。(参考 「8.4 废料带处理单元的更换」。)
10.拆除定位螺丝,废料带处理箱 ( 下侧 )。
11.安装对应于料盘 -LTC 的吸嘴平台。
12.请拆除废料带处理单元。(参考 「8.4 废料带处理单元的更换」。)
13.请安装料盘单元 -LTC 用废料带箱 (上侧)。
໘⧚ㆅϟջ
ᅮԡ㶎ϱ
0(&6
01MEC-0881S
䕧䗕ῑϟջ
ᅮԡ㶎ϱ
01MEC-0882S
䕧䗕ῑ
ᅮԡ㶎ϱ
