SI-F130 Manual(EN)_jpg_ Rev1.pdf - 第210页
Man-Machine I/F Block CDF-10205-01 Man-Machine I/F Block SHEET 1/1 PW-12V POWER UNIT LI-101 LI-201 LI-801 LI-901 LCD I/F BOARD CN101 CN201 CN901 CN801 BACK LIGHT INVERTER CN1 CN2 CN3 INV-1 INV-3 INV-2 LCD-1 CN1 15"T…

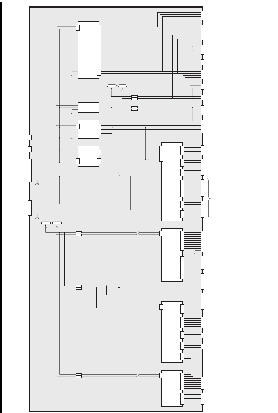
Driver Unit Block
CDF-10204-01
Driver Unit Block
SHEET
2/2
DRIVER UNIT
3
4
1
2
RESERVED
1
3
2
4
DV-6
TOUCH PANEL
CONTROL BOARD
(EX02)
1
2
3
4
DV-2
HANDY CONSOLE
CONTROL BOARD
(TB1, TB2)
1
2
3
4
DV-10
PC UNIT
(24VIN)
1
2
3
4
DV-11
1
2
3
4
DV-13
1
2
3
4
5
6
DV-1
I/O UNIT
CONVEYOR CONTROL
BOARD (TB1, TB2)
SERVO I/F UNIT
SY-EX BOARD
(CN19)
CONVEYOR
EJECTOR MOTOR
SERVO I/F UNIT
SY-EX BOARD
(CN15)
I/O UNIT
EMG I/L BOARD
(EL-9, EL-13, EL-37)
I/O UNIT
EMG I/L BOARD
(EL-10)
SERIAL DIO
CASSETTE I/F
BOARD (FRONT)
CASSETTE I/F
BOARD (REAR)
CONVEYOR ADJ.
MOTOR
SERVO I/F UNIT
SY-EX BOARD
(CN17)
1
2
DV-4
FDD
1
2
DV-7
I/O UNIT
EMG I/L BOARD (TB1)
1
2
DV-8
DW3
(TB1)
5
6
7
3
4
1
2
DV-5
DV-3
SERVO I/F UNIT
SY-EX BOARD
(CN8)
PS3 50W
+5V/8.0A, +12V/1.5A, -12V/1.0A
CN1 CN2
FG
1
2
3
5
7
+12B
G12B
-12B
5
3
PS1 300W
+24V/14A
+
-
+24B
G24B
+12A
G12A
-12A
+5A
L
N
FG
PS2 30W
+5V/5.0A, +12V/1.2A, -12V/0.6A
CN1 CN2
FG
1
2
3
5
7
5
3
PS4 150W
+48V/3.2A
CN1
CN2
1
CN3
1
+48A
G48A
1
3
PUSHER/BULK
DRIVER BOARD
TB1
CN2
1
2
3
4
1
2
3
4
5
6
7
8
DV-12
CN1
1
2
3
4
5
6
7
8
CN5
3
2
1
CN6
3
2
1
1
2
3
4
DV-14
CN3
2
3
1
CN4
2
3
1
+24
-12
+48
GND
1
2
3
4
6
7
8
9
11
10
DV-17
CONVEYOR EJECTOR
MOTOR DRIVER
CN1 CN2
1
2
3
4
6
7
8
9
10
1
2
3
4
5
6
DV-15
CN3
+5V
CW
+5V
CCW
TIM
GND
ALM
GND
9
10
11
12
23
24
25
26
1
2
3
4
DV-EMG1
3
4
1
2
DV-EMG2
1
2
ALARM I/F BOARD
CN7 CN5
1
2
3
4
1
2
3
4
5
DV-21
CN6
1
2
3
4
5
1
2
DV-19
CN2
1
2
3
1
2
DV-20
CN3
1
2
3
CN1
1
2
3
1
2
CONVEYOR ADJ.
MOTOR DRIVER
CN1
1
2
3
4
5
6
DV-16
CN3
14
13
1
2
3
4
11
12
DV-18
CN2
1
2
3
4
5
1
2
3
4
5
1
2
G24B+24B
CP1
CP2
CR1
CR1
CR1
MC1
CP5
CP3
CP4
4
5
1
2
3
6
DV-ACIN
1
2
DV-ACOUT3
1
2
DV-ACOUT2
POWER UNIT
1
2
3
6
5
4
9
DV-ACOUT1
SERVO UNIT
CASSETTE I/F
BOARD (REAR)
CASSETTE I/F
BOARD (FRONT)
MC1
+24B G24B

Man-Machine I/F Block
CDF-10205-01
Man-Machine I/F Block
SHEET
1/1
PW-12V
POWER UNIT
LI-101 LI-201
LI-801LI-901
LCD I/F BOARD
CN101 CN201
CN901 CN801
BACK LIGHT
INVERTER
CN1
CN2
CN3
INV-1
INV-3
INV-2
LCD-1
CN1
15"TFT-LCD
PANEL
J7
J8
J4
J3
J1
J2
DR2
SDIOC-IN16-CHAT
(Refer:CDF-10802)
SW-FS
J7
J8
J4
J3
J1
J2
DW2
SDIOC-OUT16-CHAT
(Refer:CDF-10822)
SW-FL
ORG
(ORIGIN SW)
STOP
(FRONT STOP SW)
START
(FRONT START SW)
RESET
(FRONT RESET SW)
FRONT
(FRONT ACTIVE SW)
ON LINE
(ON LINE SW)
STOP
(REAR STOP SW)
START
(REAR START SW)
RESET
(REAR RESET SW)
REAR
(REAR ACTIVE SW)
SW-RS
SW-RL
J4
J3
J1
J2
DW1
SDIOC-OUT16-CHAT
(Refer:CDF-10821)
J4
J3
J1
J2
DR1
SDIOC-IN16-CHAT
(Refer:CDF-10801)
J9
J10
J11
J12
J13
J14
J15
J16
RELEASE SW
FRONT PANEL
HANDY CONSOLE
(FRONT SIDE, OPTION)
RELEASE SW
REAR PANEL
HANDY CONSOLE
(REAR SIDE)
REL-F
HC-F
HC-R
REL-R
CN7
CN6
PRINTER
(Refer:CDF-10901)
SERIAL
AC ADAPTER (OPTION)
CN9
CN2
CN6
CN5
CN13
CN12
CN1
CN10
CN14
CN7
CN3
CN8
TB1
TB2
(DC24V)
(DC5V)
TOUCH PANEL
CONTROL BOARD
HANDY CONSOLE
CONTROL BOARD
(Refer:CDF-10702)
FLOPPY DISK DRIVE
FDD
FD-5V
DRIVER UNIT
(Refer:CDF-10204)
DV-4
DV-2
PRN-AC
TB2
(AC200V)
CN1
PC-4CH
PC-SYMC
4CH SIO BOARD
SY-MC BOARD
CN3
PC-FDD
CN7
CN11
PC-XGA
PC-PS2
PC-COM1
PC-UNIT
W-CPU BOARD
(Refer:CDF-10701)
MOUSE
KEY BOARD
K
L
PC-PRN
PC-HCF
PC-HCR
A
B
D
C
EX01
CN9
TOUCH PANEL
H
J
N
W
MV
AE
AD
AA
AB
AC
S
T
U
Y
Z
Q
AG
AQ
R
P
X
RAS BOARD
ATX POWER
DV-6
EX02
TPL5V
TP-COM
TP-EX02
G
E
F
CN15
DV-10
24VIN PC-24V
CN21
EMG I/L BOARD
ALM PC-ALM
PSW PC-PSW
EL-21
POWER UNIT
PW-SIG
PW-OFF
J13
DR2
SDIOC-IN16-CHAT
(Refer:CDF-10802)
BAT PC-BAT
CTL1 PC-CTL1
CTL2 PC-CTL2
PW-BAT
PW-CLT1
PW-CLT2
DW2
SDIOC-OUT16-CHAT
(Refer:CDF-10822)
DR5
SDIOC-IN16-CHAT
(Refer:CDF-10805)
J13
J14
J15
J16
J11
CN11
DIO
PC-DIO
A 1-829-503
REF
CABLE PARTS NO.
B
1-829-507
C
1-829-504
D
1-829-505
E
1-829-508
F
1-829-510
G
1-829-509
H
1-829-435
J 1-829-444
K
1-827-090
L 1-827-089
M
1-791-380
Q
1-829-443
1-791-311
1-791-381
P
N
S 1-791-384
REF
CABLE PARTS NO.
T
1-791-385
U
1-791-386
V
1-829-535
W
1-791-387
X
1-791-430
Y
1-791-388
Z
1-791-390
AA 1-791-391
AB
1-791-392
AC 1-791-393
AD
1-791-235
AG
1-791-394
1-791-347
1-791-389
AF
AE
R
1-791-383
REF
CABLE PARTS NO.
AJ
1-829-479
AK
1-829-491
AL
1-829-477
AM
1-829-478
1-829-511
1-829-512
AP
1-791-382
AQ
AN
AH
1-829-492
CN4
CN11
AP
AN
AM
AL
AH
AJ
AK
CN3 CN1
SY-EX BOARD
AF
I/O UNIT
SERVO I/F UNIT
(Refer:CDF-10203)

Image Processing Block
CDF-10206-01
Image Processing Block
SHEET
1/1
X FLAT
RBT
CABLE
Y CABLE
CONDUIT
SY-EX BOARD
(Refer:CDF-10501)
EX-12
CN12
PC UNIT
COGNEX BOARD
CAM
I/O
EX-14
CN14
CAM1 CAM1-1 CAM1-2
CAM2 CAM2-1 CAM2-2 CAM-2
CAM3 CAM3-1 CAM3-2
CAM-3
CAM4
CAM-1
CAM2-U
CAM3-D
CAM-4
PC-CAM
PC-I/O
CAM1
BOARD CAMERA
CAM2
PARTS CAMERA
CAM3
PICK-UP CAMERA
CAM4
FIXED CAMERA (OPTION)
SERVO I/F UNIT
A
B
A 1-829-493
REF
CABLE PARTS NO.
B
1-829-495
C
1-829-502
C