SI-F130 Manual(EN)_jpg_ Rev1.pdf - 第212页
Serial DIO Block CDF-10207-01 Serial DIO Block SHEET 1/1 EMG I/L BOARD I/O UNIT CONVEYOR CONTROL BOARD LED CONTROL BOARD CN33 CN34 LED3 ORANGE LED4 RED LED5 GREEN LED6 ORANGE LED7 RED LED8 GREEN TB1 CN1 CN2 LED1 ORANGE L…

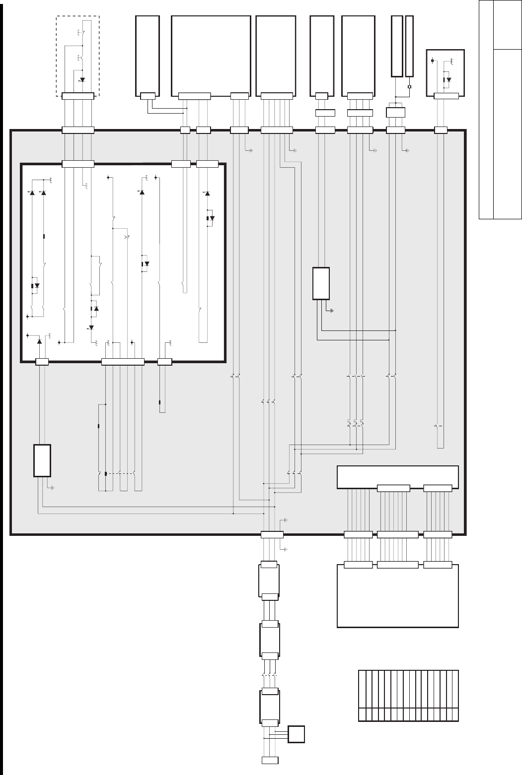
Image Processing Block
CDF-10206-01
Image Processing Block
SHEET
1/1
X FLAT
RBT
CABLE
Y CABLE
CONDUIT
SY-EX BOARD
(Refer:CDF-10501)
EX-12
CN12
PC UNIT
COGNEX BOARD
CAM
I/O
EX-14
CN14
CAM1 CAM1-1 CAM1-2
CAM2 CAM2-1 CAM2-2 CAM-2
CAM3 CAM3-1 CAM3-2
CAM-3
CAM4
CAM-1
CAM2-U
CAM3-D
CAM-4
PC-CAM
PC-I/O
CAM1
BOARD CAMERA
CAM2
PARTS CAMERA
CAM3
PICK-UP CAMERA
CAM4
FIXED CAMERA (OPTION)
SERVO I/F UNIT
A
B
A 1-829-493
REF
CABLE PARTS NO.
B
1-829-495
C
1-829-502
C

Serial DIO Block
CDF-10207-01
Serial DIO Block
SHEET
1/1
EMG I/L
BOARD
I/O UNIT
CONVEYOR
CONTROL
BOARD
LED
CONTROL
BOARD
CN33 CN34
LED3 ORANGE
LED4 RED
LED5 GREEN
LED6 ORANGE
LED7 RED
LED8 GREEN
TB1
CN1 CN2
LED1 ORANGE
LED2 RED
LED3 GREEN
TB1 TB1
LED1 ORANGE
LED2 RED
LED3 GREEN
LED4 ORANGE
LED5 RED
LED6 GREEN
LED103 RED
CN1 CN2
TB1TB1TB1TB1 TB1TB1 TB1
TB1
SD-OP1
SD-PW1
SD-OP2
SD-PW2
SD-PW3
W
SD-OP6
SD-PW6
SD-OP7
SD-PW7
SD-OP8
SD-PW8
PC UNIT
SDIOM-ISA BOARD
RX
TX
DRIVER UNIT
(Refer:CDF-10204)
DV-7
DV-1
DV-8
D
C
E
A
B
HJ KL M NP Q R ST U
V
SD-OP3
SD-OP4 SD-OP5
SD-PW4 SD-PW5
TB2
CN1 CN2CN1 CN2CN1 CN2CN1 CN2
DR4 (OPTION) DR6 (OPTION) DR9 (OPTION)DW5 (OPTION) DW7 (OPTION)DR8 (OPTION)
CN1 CN2
CN1 CN2
DR1 DW1
CN1 CN2CN1 CN2
TB1
CN1 CN2
DW2
CN1 CN2
CN1 CN2
CN1 CN2
TB1TB1TB1
DR2 DR7 (OPTION) DW6 (OPTION)
CN1 CN2 CN1 CN2CN1 CN2
DR5 DR3
DW3
TB1TB1
TB1
XYZAAABACADAEAF
AWAXAYAZBABBBCBDBE
AH AJ AK AL AM AN AP AQ AR AS AT AU
AV
A 1-791-397
REF
CABLE PARTS NO.
B
1-791-406
C
0-967-033
D
0-967-037
E
0-967-038
1-791-398
1-791-905
H
1-791-906
J
1-791-886
K
1-791-888
L
1-791-887
M
1-823-726
Q
1-823-727
1-823-727
1-823-728
P
N
REF
CABLE PARTS NO.
1-791-908
1-791-404
1-791-405
1-791-788
1-792-145
1-792-146
AD
1-792-124
AP
1-791-787
1-792-125
1-823-729
AF
AE
R
1-791-775
AQ
1-823-730
T
S
U
W
V
X
1-791-399
1-791-400
0-967-112
1-791-402
AT
1-823-730
1-823-731
1-791-797
AS
AR
AU
1-791-789
AH
AJ
AK
AL
AN
AM
1-791-403
Y
Z
AB
AA
1-791-880
1-791-882
1-791-881
AX
1-791-787
1-791-787
1-791-791
AY
1-792-148
BB
1-792-147
1-792-127
1-791-787
BA
AZ
BC
1-792-126
AW
AV
1-791-907
AC
BD
1-791-790
BE
1-791-787

Power Unit Peripheral Circuit
CDF-10301-01
Power Unit Peripheral Circuit
SHEET
1/1
123
124
125
126
127
128
PCTL-1 CN1
PCTL-2 CN2
1
2
3
G24A
+24A
CR2
CR2
CR2
CR3
D3
TMR1
CR4
LED3
+24A
G24A
G24A
+24A
PCTL-5 CN5
D5
1
2
+24A
+24A
+24A
1
2
3
1
2
CN6
PCTL-6 PW-OFF
CN4
PCTL-4
PW-SIG
3
4
1
2
1
2
1
2
3
1
2
3
4
5
6
1
2
3
4
5
6
PW-1
PW-2
PW-12V LCD12V
VACUUM
PW-4
PW-5
1
3
2
1
2
3
1
2
3
4
1
2
PW-EMG
4
1
1
2
3
4
1
2
3
4
TB1
L206
L306
E
SURGE PROTECTOR
MC2
100
101
CP1
100
101
109
110
106
107
108
MC2
100
101
102
E
1
2
3
4
PW-
ACIN
1
2
3
MB
FG
MC1
103
104
105
103
104
105
MR1
CP2
CP5
CP4
104
105
113
114
115
113
114
115
103
104
119
120
116
117
118
111
112
MR1
1
2
3
4
5
6
2
3
4
1
2
3
4
1
CN3 PCTL-3 PW-PNL
109
110
E
106
107
108
119
120
E
129
130
116
117
118
E
111
112
E
1
2
3
DR2
J13
POWER UNIT
PS1
DC SUPPLY 24V/2.2A
100
102
E
+24A
G24A
L
N
FG
+
-
MR1
MC1
MR1
G24A
G24A
LED1
CR1
D1
CR2
CR3
G24A
CR1
CR4
D4
LED4
CR1
CR1
CR1
CR3
CR2
D2
TMR1
(5min)
G24A
LED2
LED5
MAIN SW
PW-SW
PW-ON
PW-LED
PW-OFF
PC UNIT
PC-PSW
PC-ACIN
DRIVER UNIT (Refer:CDF-10204)
LCD I/F BOARD
VACUUM PUMP
TB2
DV-ACIN
CN901
MAIN MACHINE I/F BLOCK
AC ADAPTER PRINTER
(
OPTION
)
FAN-R1, FAN-R2, FAN-R3
FAN-U1, FAN-U2, FAN-U3
EM
G
I
/
L B
O
ARD
(
Re
f
er:
C
DF-10401
)
CN3
+
24V
G24V
C
R
3
D
3
POWER ON/OFF CONTROL BOARD 2
RED
WHITE
BLACK
N F
CB1-15A
(only for over sea)
TRANSFORMER
(Only for over sea )
1
2
3
1
2
3
1
2
3
R2
S2
T2
R1
S1
T1
1
2
3
L101
L201
L301
L102
L202
L302
L103
L203
L303
PRN-AC
PS2
DC SUPPLY 12V/2.5A
L
N
FG
+
-
1
3
1
2
3
4
3
4
1
2
1
2
3
2
3
4
1
PC UNIT
BAT
FH300BU
PC-BAT
1
2
3
4
5
6
PC-CTL1
1
2
3
4
5
6
7
8
9
PC-CTL2
1
2
3
4
5
6
PW-BAT
1
2
3
4
5
6
-
-
TEMP.
+
+
CHG+
PW-CTL1
1
2
3
4
5
6
7
8
9
PW-CTL2
1
2
3
4
5
6
1
4
5
9
10
11
12
3
4
5
6
7
8
A
B
C
A 1-829-478
REF CABLE PARTS NO.
B 1-829-511
C 1-829-512
D 1-791-241
E
F
1-791-242
G
1-791-243
H
1-791-233
J
1-829-507
K
1-829-506
L
1-829-439
M
1-829-441
Q
1-791-239
1-791-235
1-792-031
1-829-477
P
N
D
G
H
J
L
M
Q
N
P
K
PC UNIT
assembly
E, F