SI-F130 Manual(EN)_jpg_ Rev1.pdf - 第231页
Conveyor Ejector Motor Driv er Peripheral Circuit CDF-1051 1-01 Conveyor Ejector Motor Driver Peripheral Circuit SHEET 1/1 EC M CONVEYOR EJECTOR ENCODER CONVEYOR EJECTOR MOTOR CABLE CONDUIT DRIVER UNIT (Refer:CDF-10204) …

Conveyor Adjustment Motor Driver Peripheral Circuit
CDF-10510-01
Conveyor Adjustment Motor Driver
Peripheral Circuit
SHEET
1/1
DRIVER UNIT (Refer:CDF-10204)
POWER UNIT
(Refer:CDF-10301)
PS1
DC SUPPLY
24V/14A
EMG I/L BOARD
(Refer:CDF-10401)
DRV-AD
CONVEYOR ADJUST
MOTOR DRIVER
CN2 AD-2
1
2
3
4
5
CN3 AD-3
1
2
3
4
11
12
+5V
CW
+5V
CCW
TIM
GND
13
14
O.H.
GND
+24
GND
1
2
AD-1 CN1
+24B4
G24B4
+24B3
G24B3
CR1CP3
ALARM I/F BOARD
ALM-1 CN1
1
2
3
208
209
LED1
LED2
ALM-2 CN2
1
2
3
FROM DV-19
ALM-3 CN3
1
2
3
CN4
1
2
3
FROM DV-20
CN6 ALM-6
1
2
3
4
5
D1
CR1
LED5
ALM-7 CN7
1
2
D2
CN5 ALM-5
DV-18
1
2
3
4
5
1
2
3
4
5
AD
PM
CONVEYOR
ADJUST
MOTOR
SERVO I/F UNIT
SY-EX BOARD
(Refer:CDF-10501)
EX-17 CN17
1
2
3
4
9
10
5
6
7
8
11
12
R5V
CW1
R5V
CCW1
TM1
R0V
DV-16
1
2
3
4
5
6
DV-21
1
2
3
4
5
(N.C.)
(N.C.)
I/O UNIT
DV-EMG2 EL-10 CN10
1
2
3
4
1
2
3
4
213
CR10
CR38
+24V
G24V
CR38
EL-9 CN9
1
2
3
4
1
2
3
4
1
2
3
4
DV-EMG1
212
MC1
PW-2
1
2
3
4
5
6
1
2
3
4
5
6
DV-ACIN
203
204
E
L
N
FG
+
-
CP5
+24B7
G24B7
+24B
G24B
213
CR1
A
B
C
D
E
1-791-233
1-829-454
1-829-452
1-791-301
1-829-455
REF
CABLE PARTS NO.
A
C
E
D
B

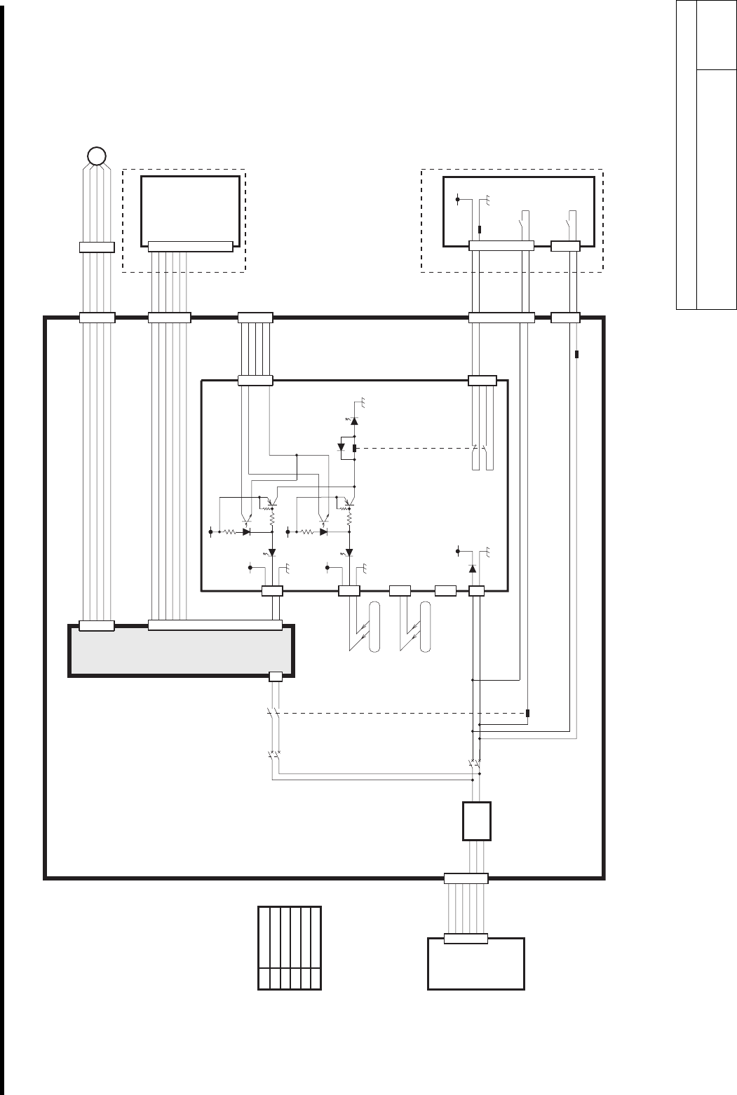
Conveyor Ejector Motor Driver Peripheral Circuit
CDF-10511-01
Conveyor Ejector Motor Driver
Peripheral Circuit
SHEET
1/1
EC
M
CONVEYOR
EJECTOR
ENCODER
CONVEYOR
EJECTOR
MOTOR
CABLE
CONDUIT
DRIVER UNIT (Refer:CDF-10204)
POWER UNIT
(Refer:CDF-10301)
PS1
DC SUPPLY
24V/14A
EMG I/L BOARD
(Refer:CDF-10401)
DRV-CE
CONVEYOR EJECTOR
MOTOR DRIVER
CN2 CE-2
1
2
3
4
5
6
7
8
9
10
CN3 CE-3
9
10
11
12
23
24
+5V
CW
+5V
CCW
TIM
GND
25
26
ALM
GND
+24
GND
1
2
CE-1 CN1
+24B6
G24B6
+24B5
G24B5
CR1
DV-17
1
2
3
4
5
6
7
8
9
10
11
12
1
2
3
4
5
6
7
8
9
10
11
12
EJM1
SERVO I/F UNIT
SY-EX BOARD
(Refer:CDF-10501)
EX-19 CN19
3
4
1
2
5
6
7
8
9
10
11
12
R5V
CCW2
R5V
CW2
TIM2
R0V
DV-15
1
2
3
4
5
6
I/O UNIT
CR39
1
2
3
4
EL-
3
7
C
N
37
1
2
3
4
1
2
3
4
DV-EMG
1
PW-2
1
2
3
4
5
6
1
2
3
4
5
6
DV-ACIN
203
204
E
L
N
FG
+
-
CP4
+24B
G24B
A
B
C
D
E
1-791-233
1-829-451
1-829-497
1-829-547
1-829-455
REF CABLE PARTS NO.
A
D
E
BC
1
2
3
4
5
6
7
8
9
10
EJM

Pusher / Bulk Drive Board Peripheral Circuit
CDF-10601-01
Pusher / Bulk Drive Board Peripheral
Circuit
SHEET
1/1
A
B
C
D
E
F
G
H
1-829-546
1-791-233
1-829-448
1-829-493
1-829-494
1-791-295
1-829-450
1-791-298
REF CABLE PARTS NO.
C
P
1
Q14
2
1
5
4
7
6
8
3
2
1
5
4
7
6
8
9
2
1
3
4
3
2
1
5
4
7
6
8
3
2
1
1
0
12
9
11
C
N1
5
R24V
R
OV
TR
O
-A
1
TR
O
-A
2
TR
O
-A
3
TR
O
-B
1
TR
O
-B
2
TR
O
-B
3
EX-1
5
BLK
OU
T
1
R
OV
BLK
OU
T
2
R
OV
+24V
+4
8V
-
12V
D5
R29
R30
D6
12
VI VO
GND
3
+12V
2
P
/
B-
3
DV
-1
4
DV
-1
4
DV
-1
2
A
B
DV
-1
2
P
/
B-
4
C
N
4
+24V
+48V
-12V
R1
R2
Q1 Q2
Q3
R3 R5
VR1
R6
R4
R2
5
I
C1
TLP1
81
3
2
1
4
3
2
1
4
3
2
1
4
3
2
1
4
3
1
2
3
1
2
1
4
2
3
2
1
4
3
2
1
4
3
3
1
4
P
/
B-
2
C
N
2
DV
-
11
DV
-
11
1st CONNECTION
PANEL
2nd CONNECTION
PANEL
3rd CONNECTION
PANEL
XFLAT
RBT
C
ABL
E
Y
C
ABL
E
CO
ND
U
I
T
+
-
SV
PUSHER
UPPER
PUSHER
LOWER
2
1
PD-
U
PD
PD1
S
EN
2
2
1
PD
-
L
+
-
SV
-
+
SV
BULK SV
FRONT
(OPTION)
BULK SV
REAR
(OPTION)
1
2
BLK
-
F
BLK
-
R
DV-1
3
D
V-1
3
BLK1
BLK2
1
2
-
+
SV
3
2
1
4
6
5
3
2
1
4
6
5
D
V-A
C
I
N
DV-A
C
I
N
2
00
2
01
2
02
2
03
2
04
E
1
2
3
4
5
1
2
6
+4
8A
G
4
8A
L
N
F
G
+
+
+
1
5
6
C
N
3
-
-
-
-
1
3
2
4
TB1
P
S4
D
C
SU
PPLY 4
8
V
3
.2
A
1
3
4
5
1
F
G
L
N
FG
+
-
N
L
F
G
+1
2
P
S2
D
C
SU
PPLY
+5/5.0A
,
+12/1.2A
,
-12/0.6
A
PS1
DC SUPPLY 24V/14A
IC5
D1
+
24V
R7
R8
Q4 Q5
Q8
Q23
R9 R11
VR2
R12
R10
R
50
R
31
IC6
TLP181
IC7
TLP181
R32
R
5
1
R
33
R34
R35
R36
I
C2
T
LP1
8
1
D2
+24V
+48V
-12V
R13
R14
Q7
Q13
Q15
Q20
Q22
Q18
Q21
Q16
Q8
Q9
R15 R17
VR3
R18
R16
R27
IC3
TLP181
D
3
+24V
R19
R20
Q10 Q11
Q12
Q24
R21 R23
VR4
R24
R22
R28
IC4
TLP181
D4
+12V
+12V
+48V
+24V
+12V
C
N
5
C
N
6
P
/
B-
5
P
/
B-
6
+12V
+12V
+48V
+12V
+12V
+2
4V
+24V +12V
3
2
1
+
24V
+24V +12V
+12V
+12V
OUT1
OUT2
IN1
IN2
R40
R42
R38
R39
R43
R47
R44
R37
R45
R48
R49
R46
R41
D7
D10
D11 D12
D8
D9
XFLAT
RBT
C
ABL
E
B
L
K
RED
BLK
RED
P
/
B-
1
C
N
1
C
N
3
IN1
OUT1
RST
OUT2
D13
RST
IN2
C5
C6
IN2
6
1
2
4
5
14
10
13
9
3
7
15
12
11
IC8A
TC45388P
IC8B
TC45388P
RC
CX
+T
-T
Q
Q
R
RC
CX
+T
-T
Q
Q
R
DRIVER UNIT
(Refer:CDF-10204)
PUSHER/BULK DRIVER BOARD
S
ERV
O
I
/
F
U
NI
T
S
Y-EX B
O
AR
D
(
Refer:CDF-10501
)
PW
-
2
PW
-
2
POWER UNI
T
(
Refer:CDF-10301
)
C
D
E
G
D
H