SI-F130 Manual(EN)_jpg_ Rev1.pdf - 第227页
H-Axis Servo Driver Peripheral Circ uit CDF-10507-01 H-Axis Servo Driver Peripheral Circuit SHEET 1/1 CP5 MC1 PS1 L N FG + - 3 4 6 7 8 9 2 3 24 1 2 3 4 5 6 7 8 ALM + ALM - + 24V IN P- OT N- OT / DE C /SO2 + /SO 2 - L1C L…

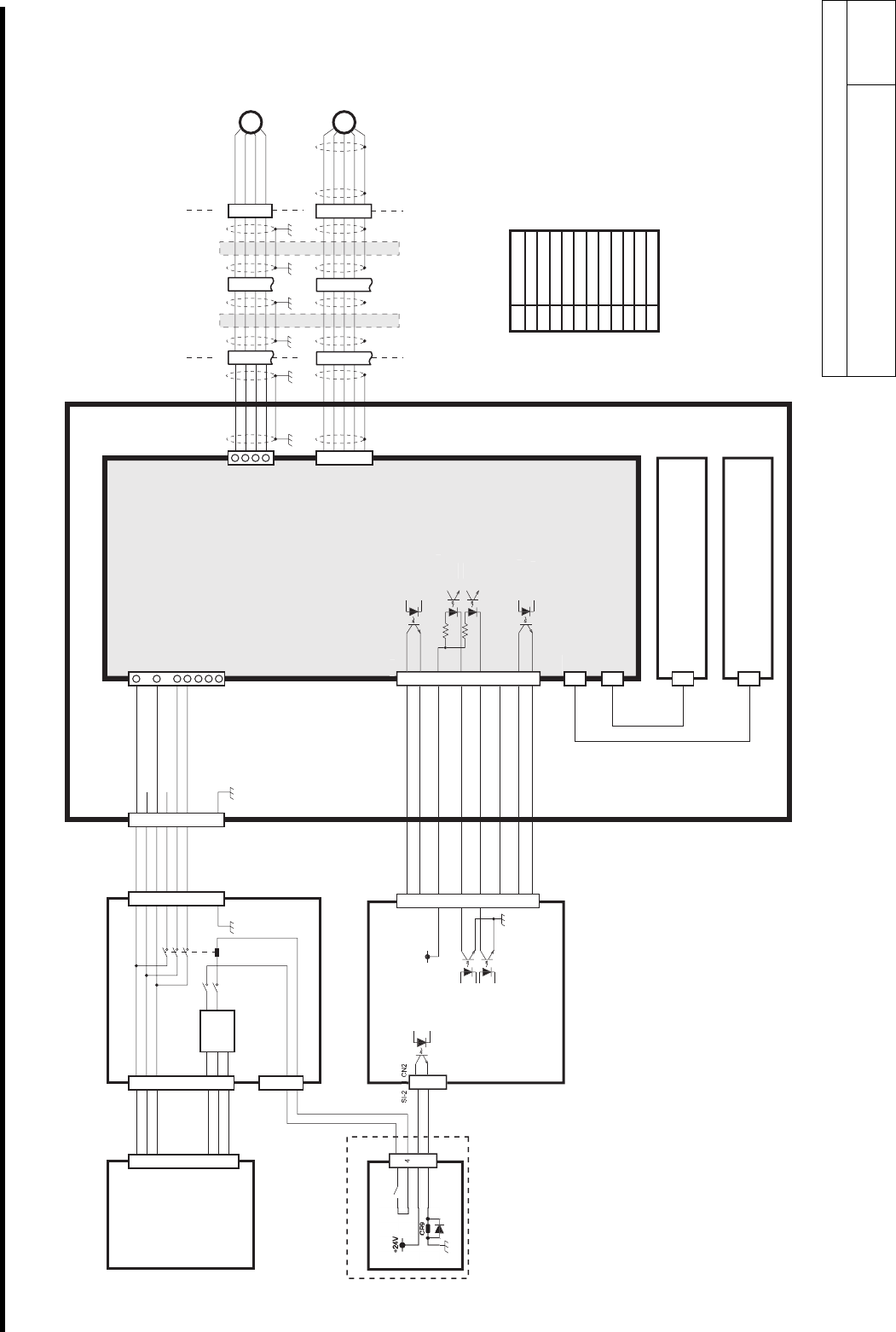
FR-Axis Servo Driver Peripheral Circuit
CDF-10506-01
FR-Axis Servo Driver Peripheral
Circuit
SHEET
1/1
CP5
MC1
PS1
L
N
FG
+
-
3
4
6
7
8
9
2
3
24
1
2
3
4
5
6
7
8
ALM +
ALM -
+2
4V IN
P-
OT
N-
OT
/
DE
C
/SO
2
+
/SO
2
-
L1C
L2C
L1
L2
B1
B2
-
SV-FRP
501
502
503
505
DRV-FR
SGDS-04A12A
1
2
5
6
FG
CN2 SV-FR2
PG5V
PG0V
PS
*PS
U
V
W
SV-FRM
SERVO UNIT
(Refer:CDF-10203)
DRIVER UNIT
(Refer:CDF-10204)
DV-ACOUT1
1
2
3
4
5
6
7
8
9
POWER UNIT
(Refer:CDF-10301)
PW-2
1
2
3
4
5
6
DV-ACIN
1
2
3
4
5
6
DV-EMG1
1
2
3
4
1
2
3
4
5
6
7
8
9
SV-ACIN
500
501
502
503
504
505
SERVO I/F UNIT
IF2 LS BOARD
(
Refer:CDF-10502
)
SY-IF2 BOARD (Refer:CDF-10502)
1
2
3
S
ERV
O
ALARM
C
N1
4
LB-14
S
V-FR1
C
N
1
SV-FR6A CN6ACN8 SI-8
SV-FR6B CN6B
DRV-RT (Refer:CDF-10508)
SV-RT6A CN6A
J
G
H
H
FR ENCODER
FR MOTOR
FR AXIS
MOTOR
assembly
FR AXIS
ENCODER
assembly
E
M
A 1-791-233
REF CABLE PARTS NO.
B 1- -
C 1-829-455
D 1-829-473
E
F
1- -
G
1- -
H
1-829-493
J
1-829-465
1-829-459
A B
D
E
F
M1 FRM2
E1 FRE2
X FLAT
RBT CABLE
1st CONNECTION
PANEL
2nd CONNECTION
PANEL
9
10
11
12
1
2
3
4
1
2
3
4
5
10
11
12
13
14
15
JEPMC-W6002-A5
(YASKAWA)
JEPMC-W6002-04 (YASKAWA)
I/O UNIT
EM
G
I
/
L B
O
AR
D
(
Refer:CDF-10401
)
C
N
9
+
24V
CR3
8
3
4
1
2
C

H-Axis Servo Driver Peripheral Circuit
CDF-10507-01
H-Axis Servo Driver Peripheral
Circuit
SHEET
1/1
CP5
MC1
PS1
L
N
FG
+
-
3
4
6
7
8
9
2
3
24
1
2
3
4
5
6
7
8
ALM +
ALM -
+
24V IN
P-
OT
N-
OT
/
DE
C
/SO2
+
/SO
2
-
L1C
L2C
L1
L2
B1
B2
-
SV-HP
500
502
504
505
DRV-H
SGDS-02A12A
DRV-FF (Refer:CDF-10505)
1
2
5
6
FG
CN2 SV-H2
PG5V
PG0V
PS
*PS
U
V
W
SV-HM
SERVO UNIT
(Refer:CDF-10203)
DRIVER UNIT
(Refer:CDF-10204)
DV-ACOUT1
1
2
3
4
5
6
7
8
9
POWER UNIT
(Refer:CDF-10301)
PW-2
1
2
3
4
5
6
DV-ACIN
1
2
3
4
5
6
DV-EMG1
1
2
3
4
1
2
3
4
5
6
7
8
9
SV-ACIN
500
501
502
503
504
505
IF2 LS BOARD
(Refer:CDF-10502)
1
2
3
S
ERV
O
ALARM
C
N1
2
LB-12
S
V-H1
C
N
1
S
V-H
6A
C
N
6A
SV-H6B CN6B
SV-FF6A CN6A
DRV-Y (Refer:CDF-10504)
SV-Y6B CN6B
K
G
H
H
L
J
H ENCODER
1
2
3
4
5
H MOTOR
H AXIS
MOTOR
assembly
H AXIS
ENCODER
assembly
E
M
A 1-791-233
REF CABLE PARTS NO.
B 1- -
C 1-829-455
D 1-829-471
E
F
1- -
G
1- -
H
1-829-493
J
1-829-494
K
1-829-469
L
1-829-495
1-829-463
A B
D
E
F
M2
I/O UNIT
EMG I/L BOARD
(Refer:CDF-10401)
C
N
9
D
9
C
R
38
3
1
2
C
M4 HM
E2 E3 HE
X FLAT
RBT CABLE
Y CABLE
CONDUIT
1st CONNECTION
PANEL
3rd CONNECTION
PANEL
1
2
3
4
1
2
3
4
1
2
3
4
1
2
3
4
5
1
2
3
4
5
JEPMC-W6002-A5 (YASKAWA)
JEPMC-W6002-A5
(YASKAWA)

RT-Axis Servo Driver Peripheral Circuit
CDF-10508-01
RT-Axis Servo Driver Peripheral
Circuit
SHEET
1/1
CP5
MC1
PS1
L
N
FG
+
-
3
4
6
7
8
9
2
3
24
1
2
3
4
5
6
7
8
ALM +
ALM -
+2
4V IN
P-
OT
N-
OT
/
DE
C
/SO
2
+
/SO
2
-
L1C
L2C
L1
L2
B1
B2
-
SV-RTP
500
502
503
505
DRV-RT
SGDS-04A12A
DRV-RN (Refer:CDF-10509)
1
2
5
6
FG
CN2 SV-RT2
PG5V
PG0V
PS
*PS
U
V
W
SV-RTM
SERVO UNIT (Refer:CDF-10203)
I/O UNIT
EMG I/L BOARD
(Refer:CDF-10401)
C
N
9
D
9
C
R
38
3
1
2
DRIVER UNIT
(Refer:CDF-10204)
DV-ACOUT1
1
2
3
4
5
6
7
8
9
POWER UNIT
(Refer:CDF-10301)
PW-2
1
2
3
4
5
6
DV-ACIN
1
2
3
4
5
6
DV-EMG1
1
2
3
4
1
2
3
4
5
6
7
8
9
SV-ACIN
500
501
502
503
504
505
IF2 LS BOARD (Refer:CDF-10502)
SI-2 CN2
1
2
3
S
ERV
O
ALARM
C
N1
5
LB-15
S
V-RT1
C
N
1
S
V-RT
6A
C
N
6A
SV-RT6B CN6B
SV-RN6A CN6A
DEA (JZDP-A003-000)
DEA-1 CN1
DRV-FR (Refer:CDF-10506)
SV-FR6B CN6B
L
N
H
J
J
M
K
RT ENCODER
1
2
3
4
5
RT MOTOR
RT AXIS
MOTOR
assembly
RT AXIS
ENCODER
assembly
E
M
A 1-791-233
REF CABLE PARTS NO.
B 1- -
C 1-829-455
D 1-829-474
E
F
1- -
G
1- -
H
1-829-463
J
1-829-493
K
1-829-494
L
1-829-469
M
1-829-495
N
1-829-476
1- -
A B
C
D
E
F
M2 M4 RTM
E2 E3 RTE
X FLAT
RBT CABLE
Y CABLE
CONDUIT
1st CONNECTION
PANEL
3rd CONNECTION
PANEL
5
6
7
8
5
6
7
8
1
2
3
4
6
7
8
9
6
7
8
9
JM
RT NOZZLE
DIRECT
ENCODER
1
2
3
4
5
6
7
8
FG
DE
DE3 DE2 DE1
1
2
3
4
5
6
7
8
FG
1
2
3
4
5
6
7
8
FG
JEPMC-W6002-A5 (YASKAWA)
JEPMC-W6002-A5 (YASKAWA)
SV-RT4 CN4
1
2
5
6
FG
+5V
0V
S
/S
FG
6
2
5
1
CN2 DEA-2
4
2
3
11
1
9
7
14
FG
+5V
0V
+SIN
-SIN
+COS
-COS
+REF
-REF
G