AIM機械手冊.pdf - 第173页
QD053-07 7. 消耗品的更换 AIM 机械手册 157 6. 用六角扳手将在电路板导轨上安装顶板 的螺栓 (10 根 / 单侧)拆除,拆下顶板。 在基准侧顶板上,各个安装螺栓 的下面放有垫环。将其与螺栓一起 拆除。 7 . 用 六 角 扳 手 拆 除 螺 栓( 1 1根/单 侧 ) 将 电 路 板 导 轨 从 搬 运 轨 道 本 体 上 取 下 。

7. 消耗品的更换 QD053-07
156 AIM 机械手册
7.1.3 更换方法
1. 使用支撑板更换指令,将搬运轨道扩大到最大宽度。
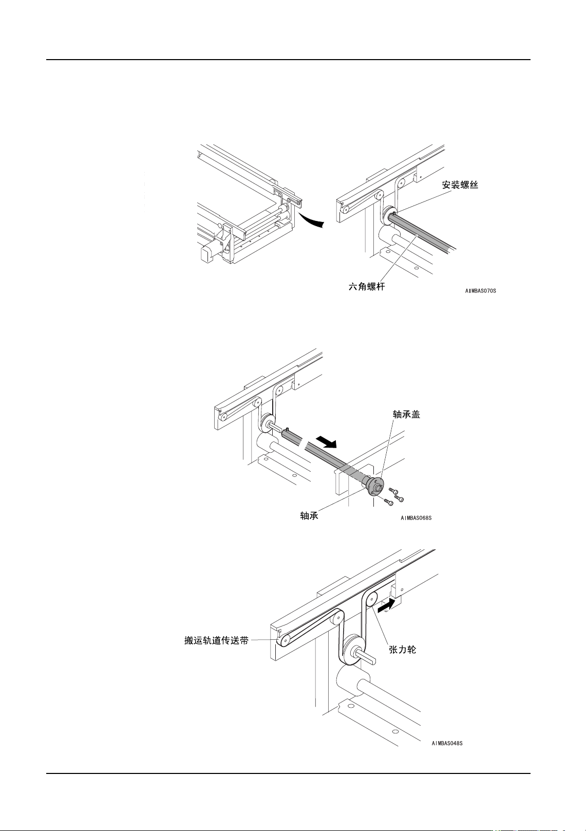
2. 请用六角板手拧松六角螺杆前面的安装螺丝。
3. 拆除轴承盖的安装螺丝 (3 根)。
4. 与轴承盖一起将六角螺杆拉出。
5. 用六角扳手拧松张力滑轮,使传送带放松。

QD053-07 7. 消耗品的更换
AIM 机械手册 157
6. 用六角扳手将在电路板导轨上安装顶板的螺栓 (10 根 / 单侧)拆除,拆下顶板。
在基准侧顶板上,各个安装螺栓的下面放有垫环。将其与螺栓一起拆除。
7. 用六角扳手拆除螺栓(11根/单侧)将电路板导轨从搬运轨道本体上取下。

7. 消耗品的更换 QD053-07
158 AIM 机械手册
8. 拆除固定螺丝 (7 根),将加紧板从加紧轨道上拆除。
9. 请将搬运轨道与新品进行更换。
10.将夹紧板固定在夹紧轨道上时,此时,请注意夹紧板下侧碰到弹簧座时两者之间不要有
间隙。