2RGXBA020207ElectricalSchematic(AIMEXII) .pdf - 第155页
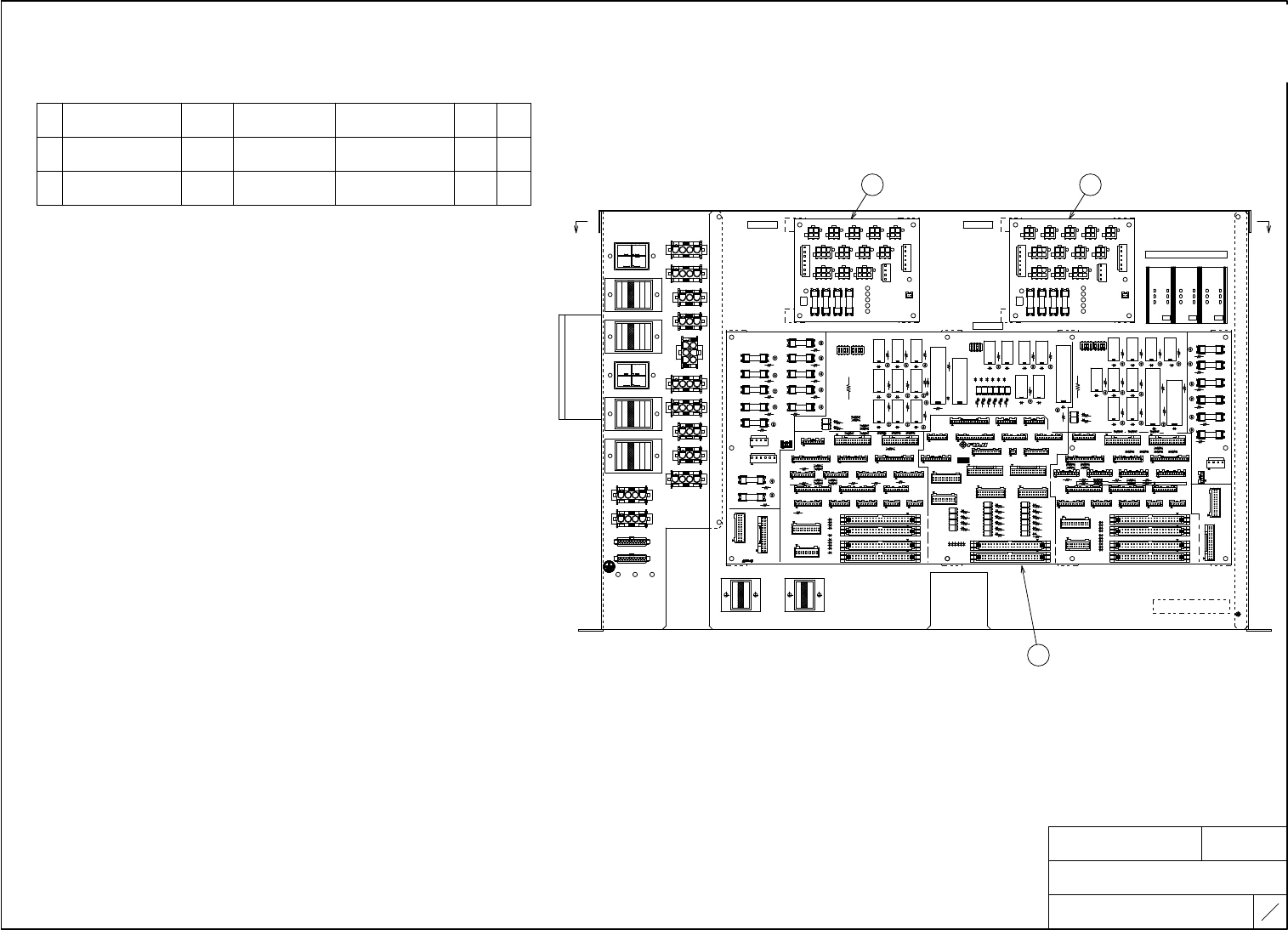
NAME T I T L E DRAWING No. 部品配置図 PARTS ARRANGEMENT 2 R G XB A0 18 00 0 制御盤 CONTROL BOX TYPE AIMEXⅡ 1 13 FUJI SECRET 品 名 記 号 形 式 メ ー カ ー 定 格 No. N A M E S Y M B O L T Y P E M A N U F A C T U R E R R A T I N G インターフェース基 板 …

NAME
TITLE
DRAWING No.
部品配置図
PARTS ARRANGEMENT
2RGXBA017904
電装品配置
E PARTS ARRANGEMENT
TYPE
AIMEXⅡ
3
3
FUJI SECRET
品 名 図 番 形 式 メ ー カ ー 定 格 品 名 図 番 形 式 メ ー カ ー 定 格
No. No.
NAME DRAWING NUMBER TYPE MANUFACTURER RATING NAME DRAWING NUMBER TYPE MANUFACTURER RATING
富士機械
---- AC200V
ブレーカBKT
FUJI
1
BREAKER BKT
6
2
3
2AGMBA0070**
ベースCPUBOX 富士機械
4
AC200V
BASE CPU BOX
FUJI
2AGMBA0071**
7
制御盤 富士機械
5
---- AC200V
CONTROL BOX
FUJI
8
9
真空ポンプ制御BKT 富士機械
10
---- AC200V
VACUUM PUMP CONTROL BOX
FUJI
CPU BOARD:
NL-06G-Rev*
4TP-3A390
MEMORY CARD:
富士機械
FUJI
AC200V
モジュールCPUBOX
MODULE CPU BOX
TRNC-1860BBK
SERVO BOARD:
DCP-571-pbF-F
操作パネル ケイテック
DC24V
OPERATION PANEL
画像分配器
AJ0WN** GXDSB200
ケイテック
DC24V
PANEL DISTRIBUTOR
サーボアンプ 安川電機
A60086 SGDS-30A75ARY533-E AC200V
SERVO AMP
YASKAWA
サーボBOX 安川電機
XB0325* SGDZ-BS61AN7A-FK-E AC200V
SERVO BOX
YASKAWA
回生抵抗
RH6994* ------ チバテクノ -----
REGENERATING RESISTANCE
非常停止スイッチ IDEC
DC24V
EMERGENCY STOP SWITCH
IDEC
シグナルタワー アロー
XH0039* LOUG-24-3FK-1 DC24V
SIGNAL TOWER
ARROW
サブシグナルタワー アロー
H2125T AUSG-24-1-W DC24V
SUB SIGNAL TOWER
ARROW
カバー閉じ確認
カバーロック オムロン
S31935 D4NL-1HFG-B DC24V
COVER CLOSED CHECK
OMRON
COVER LOCK
11
12
13
14
基板搬送I/F基板
PANEL TRANSFER I/F BOX
XK0667* SIF-*
高木産業
TAKAGI
DC24V
リモートI/O基板
REMOTE I/O BOARD
2AGMBA0001** FH1455B*F
富士機械
FUJI
DC24V
コンベアコントローラ
CONVEYOR CONTROLER
XK0627*
XK0628*
IMC7C-*
IMC3C-*
Single conveyor
高木産業
TAKAGI
DC24V
IEEE1394 ハブ
IEEE1394 HUB
リピータ
REPEATER
XK0466*
K62876
1394-S4/RP_6P(ROHS)
PR-340FM-CUS1
沖電線
OKI
テクノスコープ
TECHNOSCOPE
DC24V
DC24V
LAN ハブ
LAN HUB
温度ヒューズ
THERMO FUSE
ファン1
FAN1
ファン2
FAN2
H2002Y
H30129
H3013W
E4A50072C
9G1224G4D01
9A0924G401
日本エマソン
EMERSON JAPAN
山洋電気
SANYO
山洋電気
SANYO
DC24V
DC24V
DC24V
15
17
18
19
20
21
22
23
24
K74469 AT-FS710/8
アライドテレシス
ALLIED TELESIS
AC200V
KTECH
KTECH
A60487 XW1E-BV404MR
25
RELAY BKT
リレーBKT
2AGMBA0092** ----
富士機械
DC24V
FUJI
2AGXBA0023**
2AGXBA0008**
2EGMSA0024** OPW700-A-K2
2AGMBA0075**
POWER UNIT:
CFK-B80
MEMORY CARD BOARD:
SFG8B01GJABCS-FAA
CPU BOARD:
CFK-M80
NL-06G-Rev*
POWER UNIT:
VISON BOARD:
ZMP-SYNQNET-CPCI-
3U-UD-XIO-400MHZ
FABRIC BOARD:
26
REMOTE I/O BOARD
リモートI/O基板
2AGKBA0119** FH1218D*F
FUJI
富士機械
DC24V
XK0507* FH1219B*F
2AGMBA0093** ----
16
タイムカウンタ
TIME COUNTER
K63370 LH2H-FE-DHK-DL
SUNX
SUNX
DC24V
27
28
圧力スイッチ1
PRESSURE SWITCH1
S3150B
S3150C
SMC
SMC
SMC
SMC
ZSE30A-01-P-ML
ISE30A-01-P-ML DC24V
DC24V
リモートI/O基板
REMOTE I/O BOARD
リレー基板
RELAY BOARD
29
30
XK0499*
XK0491*
FH1326A*F
FH1275B*F
富士機械
FUJI
富士機械
FUJI
DC24V
DC24V
31
32
MAGNET SWITCH
マグネットスイッチ
M1056M XCS-DMC7902
TELEMECANIQUE
テレメカニック
オプションマグネットSW BKT
OPTION MAGNET SWITCH BKT
2AGMBA0078** ----
FUJI
富士機械
DC24V
DC24V
圧力スイッチ2
PRESSURE SWITCH2
Double conveyor
COPLANARITY MONITOR
コプラナリティモニタ
33
2EGKGH0001**
TM065-FJX10
(For COPLANARITY Spc.)
テクナート
DC24V
工業用PC
INDUSTRIAL COMPUTER
2MGKGH0001**
(For COPLANARITY Spc.)
アンリツ
AC200V
34
TECNART
ANRITSU
MK5302C4
b0X361Gq
b0X361Gq
Downloaded at 2020/05/19 21:05:96 by 395B4578 DL#wIFD31dS
Downloaded at 2020/05/19 21:05:96 by 395B4578 DL#wIFD31dS

NAME
TITLE
DRAWING No.
部品配置図
PARTS ARRANGEMENT
2RGXBA018000
制御盤
CONTROL BOX
TYPE
AIMEXⅡ
1
13
FUJI SECRET
品 名 記 号 形 式 メ ー カ ー 定 格
No.
NAME SYMBOL TYPE MANUFACTURER RATING
インターフェース基板 富士機械製造
1
M1PCB1 FH1452B*F
INTERFACE BOARD FUJI MACHINE MFG.
AM2PCB1
FH1467B*F
CONNECTOR BOARD FUJI MACHINE MFG.
コネクタ基板 富士機械製造
個 数
Q’TY
制御盤
CONTROL BOX
1
2
BM2PCB1
2
T1 T2 T1 T2 T1 T2
ED ERRED ERR ED ERR
PWR FB PWR FB PWR FB
CB ACN10
CB BCN10
CB CN2
CB CN1
CB BCN2
CB ACN5
CB ACN4
CB ACN2
CB CN3
CB ACN3
CB CN10
CB ACN6
CB ACN1
CB ACN7
CB BCN6
CB BCN1
CB BCN7
CB BCN3
CB BCN5
CB BCN4
CB ACN10
CB BCN5
CB BCN4
CB BCN3
CB BCN2
CB CN10
CB ACN5
CB ACN4
CB ACN3
CB ACN2
CB CN3
FH1467*** FH1467***
AM2PCB1 BM2PCB1
A A
M1SR1 AM2SR1 BM2SR1
M1PCB1
F H 1 4 5 2 * * *
CB ACN8 CB BCN8
2 2
1
b0X361Gq
b0X361Gq
Downloaded at 2020/05/19 21:05:96 by 395B4578 DL#wIFD31dS
Downloaded at 2020/05/19 21:05:96 by 395B4578 DL#wIFD31dS

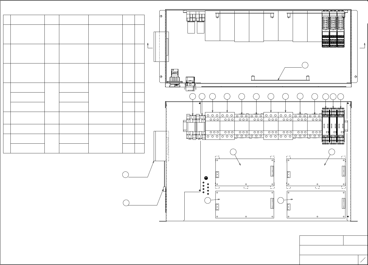
NAME
TITLE
DRAWING No.
部品配置図
PARTS ARRANGEMENT
2RGXBA018000
制御盤
CONTROL BOX
TYPE
AIMEXⅡ
2
13
FUJI SECRET
品 名 記 号 形 式 メ ー カ ー 定 格 個 数
No.
NAME SYMBOL TYPE MANUFACTURER RATING Q’TY
DC電源 TDKラムダ
M1REC1
ZWS240BP-24
5
DC POWER SOURCE TDK-LAMBDA
電磁接触器
シュナイダー
エレクトリック
2
AM2MS3X
LC1D-123BL
4
ELECTRO MAGNETIC
CONTACTOR
Schneider Electric
DC24V
240W
DC24V
電磁接触器
シュナイダー
エレクトリック
3
AM2MS1X
LC1D-253BL
DC24V
4
ELECTRO MAGNETIC
CONTACTOR
Schneider Electric
M1REC2
M1REC3
AM2REC1
BM2REC1
AM2MS4X
BM2MS3X
BM2MS4X
AM2MS2X
BM2MS1X
BM2MS2X
パワーリレー
LY1N-D2
2
POWER RELAY
ソケット オムロン
AM2CR14X
PTF08A-E
2
SOCKET OMRON
保持金具
PYC-A1
2
HOLD DOWN CLIP
4
BM2CR14X
DC24V
セーフティリレーモジュール
G9SX-BC112-
T01-RC
オムロン
OMRON
5
M1SR1
DC24V
3
SAFETY RELAY MODULE
AM2SR1
BM2SR1
1
ファン
山洋電気
6
M1FAN13
9G0924A2D01
DC24V
1
FAN
SANYO
VIEW A-A
B B
VIEW B-B
ED
T1
PWR
ERR
T2
FB FB
T2
ERR
PWR
T1
ED ED
T1
PWR
ERR
T2
FB
M1SR1 AM2SR1 BM2SR1
AM2MS1X A M2M S2X AM2MS3X AM2MS 4X BM2MS1X BM2MS2X BM2MS3X BM2 MS4 X
AM2CR14XBM2CR14X
LC1D-253BL LC1D-253BL LC1D-123BL LC1D-123BL LC1D-253BL LC1D-253BL LC1D-123BL LC1D-123BL
LY1N-D2 LY1N-D2
8
7
6
5
4
3
2
1
C N5 1
1
L
3
N
FG
5
CN 1
ZWS240BP-24
AM 2RE C1
BM 2RE C1
ZWS240BP-24
8
7
6
5
4
3
2
1
CN 51
1
L
3
N
FG
5
C N1
8
7
6
5
4
3
2
1
C N5 1
1
L
3
N
FG
5
CN 1
M1 REC1
ZWS240BP-24
ZWS240BP-24
M1REC2
8
7
6
5
4
3
2
1
CN 51
1
L
3
N
FG
5
C N1
1
6
7
7
コネクタ
CONNECTOR
ピンコンタクト
PIN CONTACT
M1FAN13
-CN1
SMR-03V-N
BYM-001T-P0.6
JST
日本圧着端子
3P
1
3
1 1
M1REC3
M1FAN13
M1FAN13-CN1
1 1
4 4 2 2 2 2
3 3
3
3
5 5 5
b0X361Gq
b0X361Gq
Downloaded at 2020/05/19 21:05:96 by 395B4578 DL#wIFD31dS
Downloaded at 2020/05/19 21:05:96 by 395B4578 DL#wIFD31dS