2RGXBA020207ElectricalSchematic(AIMEXII) .pdf - 第221页
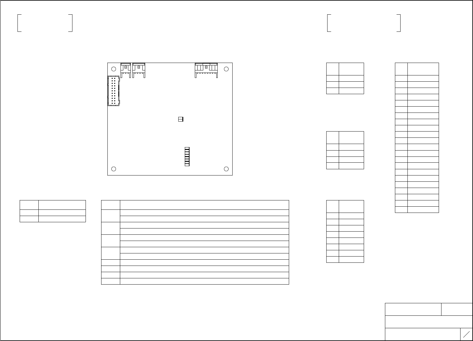
NAME T I T L E DRAWING No. 制御基板 CONTROL BOARD R D 0 15 31 コンベアコントロール基板 CONVEYOR CONTROL BOARD TYPE AIMEX 8 8 レーン1コンベア基板通過確 認L レー ン1隣モジュール停止トリガー3 モジュールCPU B OX(RS232C) 制御信号 レーン1コンベアモータ ー レーン1アクチュエータ ー M O D U L E C P U B …

NAME
TITLE
DRAWING No.
制御基板
CONTROL BOARD
RD01531
コンベアコントロール基板
CONVEYOR CONTROL BOARD
TYPE
AIMEX
7
8
レーン1コンベア基板通過確認L レーン1隣モジュール停止トリガー3
モジュールCPU BOX(RS232C) 制御信号 レーン1コンベアモーター レーン1アクチュエーター
MODULE CPU BOX(RS232C) CONTROL SIGNAL LANE1 CONVEYOR MOTOR LANE1 ACTUATOR
LANE1 CONVEYOR PANEL
PASS CHECK L
LANE1 ADJACENT MODULE
STOP TRIGGER 3
CN1 CN4 CN5-1 CN8-1
線番 線番 線番 線番
CN10-1-1 a1 CN10-1-2 b1
PIN
NO
PIN
NO
PIN
NO
PIN
NO
WIRE MARK WIRE MARK WIRE MARK WIRE MARK
線番 線番
PIN
NO
PIN
NO
11 11 ACX010 11 COM1(A) 11 ACY000
WIRE MARK WIRE MARK
22 RXD 22 ACX011 22 COM2(B) 22 AGB 1 A+24VAC1 1 A+24VAC1
33 TXD 33 ADDRESS 0 33 MOTOR A 33 ACY001 2 ACX000 2 ACX004
44 44 ADDRESS 1 44 MOTOR A/ 44 AGB 3 GA 3 GA
5 SG 5 ADDRESS 2 5 MOTOR B 5 ACY002 4 ACY004 4
6 6 ADDRESS 3(A+24VA1) 6 MOTOR B/ 6 AGB
7 RTS 7 GA 7 ENCODER A 7 ACY003
レーン1従属コンベア
バックアップピン検知
レーン1コンベア基板通過確認R
8 CTS 8 ENCODER A 8 AGB
LANE1 CONVEYOR PANEL
PASS CHECK R
LANE1 CONVEYOR
BACK-UP PIN CHECK
9 9 VCC 9 ACY004
10 GND 10 AGB
CN10-1-1 a2 CN10-1-2 b2
11 ACY00A 線番 線番
PIN
NO
PIN
NO
12 AGB
WIRE MARK WIRE MARK
レーン1従属幅替モーター
コントロールBOX(電源)
LANE1 SUB. WIDHT MOTOR
CONTROL BOX(POWER)
1 A+24VAC1 1 A+24VAC1
2 ACX001 2 ACX005
CN2 CN5-2
線番 線番 3 GA 3 GA
PIN
NO
PIN
NO
WIRE MARK WIRE MARK
4 ACY004 4
1 +24VA 11 COM1(A)
2 A+24VB2 22 COM2(B)
レーン1隣モジュール停止トリガー1
3 GA 33 MOTOR A
LANE1 ADJACENT MODULE
STOP TRIGGER 1
4 AGB 44 MOTOR A/
5 MOTOR B
CN10-1-1 a3 CN10-1-2 b3
6 MOTOR B/ 線番 線番
PIN
NO
PIN
NO
7
WIRE MARK WIRE MARK
8 1 A+24VAC1 1 A+24VAC1
2 ACX002 2 ACX006
3 GA 3 GA
レーン1クランプモーター
基板搬送I/F基板
LANE1 CLAMP MOTOR
PANEL TRANSFER I/F BOARD
4 4
CN3 CN5-3
線番 線番
レーン1従属コンベア
バックアップピン検知
レーン1隣モジュール停止トリガー2
PIN
NO
PIN
NO
WIRE MARK WIRE MARK
LANE1 ADJACENT MODULE
STOP TRIGGER 2
LANE1 CONVEYOR
BACK-UP PIN CHECK
11 + 11 COM1(A)
22 - 22 COM2(B)
CN10-1-1 a4 CN10-1-2 b4
33 SHIELD 33 MOTOR A 線番 線番
PIN
NO
PIN
NO
44 + 44 MOTOR A/
WIRE MARK WIRE MARK
5 - 5 MOTOR B 1 A+24VAC1 1 A+24VAC1
6 SHIELD 6 MOTOR B/ 2 ACX003 2 ACX007
7 ENCODER A 3 GA 3 GA
8 ENCODER A 4 4
投光器
EMITTER
9 VCC
10 GND
IMC3C-*
SINGLE CONVEYOR
AT2PCB1
モジ ュールAシ ングルコン ベア
MODULE A SINGLE CONVEYOR
端子板結線図
TERMINAL BOARD DIAGRAM
b0X361Gq
b0X361Gq
Downloaded at 2020/05/19 21:05:96 by 395B4578 DL#wIFD31dS
Downloaded at 2020/05/19 21:05:96 by 395B4578 DL#wIFD31dS

NAME
TITLE
DRAWING No.
制御基板
CONTROL BOARD
RD01531
コンベアコントロール基板
CONVEYOR CONTROL BOARD
TYPE
AIMEX
8
8
レーン1コンベア基板通過確認L レーン1隣モジュール停止トリガー3
モジュールCPU BOX(RS232C) 制御信号 レーン1コンベアモーター レーン1アクチュエーター
MODULE CPU BOX(RS232C) CONTROL SIGNAL LANE1 CONVEYOR MOTOR LANE1 ACTUATOR
LANE1 CONVEYOR PANEL
PASS CHECK L
LANE1 ADJACENT MODULE
STOP TRIGGER 3
CN1 CN4 CN5-1 CN8-1
線番 線番 線番 線番
CN10-1-1 a1 CN10-1-2 b1
PIN
NO
PIN
NO
PIN
NO
PIN
NO
WIRE MARK WIRE MARK WIRE MARK WIRE MARK
線番 線番
PIN
NO
PIN
NO
11 11 BCX010 11 COM1(A) 11 BCY000
WIRE MARK WIRE MARK
22 RXD 22 BCX011 22 COM2(B) 22 BGB 1 B+24VAC1 1 B+24VAC1
33 TXD 33 ADDRESS 0 33 MOTOR A 33 BCY001 2 BCX000 2 BCX004
44 44 ADDRESS 1 44 MOTOR A/ 44 BGB 3 GA 3 GA
5 SG 5 ADDRESS 2(B+24VA1) 5 MOTOR B 5 BCY002 4 BCY004 4
6 6 ADDRESS 3(B+24VA1) 6 MOTOR B/ 6 BGB
7 RTS 7 GA 7 ENCODER A 7 BCY003
レーン1従属コンベア
バックアップピン検知
レーン1コンベア基板通過確認R
8 CTS 8 ENCODER A 8 BGB
LANE1 CONVEYOR PANEL
PASS CHECK R
LANE1 CONVEYOR
BACK-UP PIN CHECK
9 9 VCC 9 BCY004
10 GND 10 BGB
CN10-1-1 a2 CN10-1-2 b2
11 BCY00A 線番 線番
PIN
NO
PIN
NO
12 BGB
WIRE MARK WIRE MARK
レーン1従属幅替モーター
コントロールBOX(電源)
LANE1 SUB. WIDHT MOTOR
CONTROL BOX(POWER)
1 B+24VAC1 1 B+24VAC1
2 BCX001 2 BCX005
CN2 CN5-2
線番 線番 3 GA 3 GA
PIN
NO
PIN
NO
WIRE MARK WIRE MARK
4 BCY004 4
1 +24VA 11 COM1(A)
2 B+24VB2 22 COM2(B)
レーン1隣モジュール停止トリガー1
3 GA 33 MOTOR A
LANE1 ADJACENT MODULE
STOP TRIGGER 1
4 BGB 44 MOTOR A/
5 MOTOR B
CN10-1-1 a3 CN10-1-2 b3
6 MOTOR B/ 線番 線番
PIN
NO
PIN
NO
7
WIRE MARK WIRE MARK
8 1 B+24VAC1 1 B+24VAC1
2 BCX002 2 BCX006
3 GA 3 GA
レーン1クランプモーター
基板搬送I/F基板
LANE1 CLAMP MOTOR
PANEL TRANSFER I/F BOARD
4 4
CN3 CN5-3
線番 線番
レーン1従属コンベア
バックアップピン検知
レーン1隣モジュール停止トリガー2
PIN
NO
PIN
NO
WIRE MARK WIRE MARK
LANE1 ADJACENT MODULE
STOP TRIGGER 2
LANE1 CONVEYOR
BACK-UP PIN CHECK
11 + 11 COM1(A)
22 - 22 COM2(B)
CN10-1-1 a4 CN10-1-2 b4
33 SHIELD 33 MOTOR A 線番 線番
PIN
NO
PIN
NO
44 + 44 MOTOR A/
WIRE MARK WIRE MARK
5 - 5 MOTOR B 1 B+24VAC1 1 B+24VAC1
6 SHIELD 6 MOTOR B/ 2 BCX003 2 BCX007
7 ENCODER A 3 GA 3 GA
8 ENCODER A 4 4
投光器
EMITTER
9 VCC
10 GND
IMC3C-*
SINGLE CONVEYOR
BT2PCB1
モジ ュールBシ ングルコン ベア
MODULE B SINGLE CONVEYOR
端子板結線図
TERMINAL BOARD DIAGRAM
b0X361Gq
b0X361Gq
Downloaded at 2020/05/19 21:05:96 by 395B4578 DL#wIFD31dS
Downloaded at 2020/05/19 21:05:96 by 395B4578 DL#wIFD31dS

NAME
TITLE
DRAWING No.
制御基板
CONTROL BOARD
RD01541
基板搬送I/F基板
PANEL TRANSFER I/F BOARD
TYPE
AIMEX
1
1
SIF-*
部品配置図
PARTS ARRANGEMENT
SIF-*
LED 信号名称
SIGNAL NAME
3
4
POWER
ERROR
LED 信号名称
SIGNAL NAME
1
BUSY OUTPUT SIGNAL TO PREVIOUS SIDE(LANE1) at normal flow
2
BA INPUT SIGNAL FROM PREVIOUS SIDE(LANE1) at normal flow
5
BUSY OUTPUT SIGNAL TO PREVIOUS SIDE(LANE2) at normal flow
6
BA INPUT SIGNAL FROM PREVIOUS SIDE(LANE2) at normal flow
7 RESERVE
8 RESERVE
9 RESERVE
10 RESERVE
BA OUTPUT SIGNAL TO NEXT SIDE(LANE1) at reverse flow
BA OUTPUT SIGNAL TO NEXT SIDE(LANE2) at reverse flow
BUSY INPUT SIGNAL FROM NEXT SIDE(LANE1) at reverse flow
BUSY INPUT SIGNAL FROM NEXT SIDE(LANE2) at reverse flow
端子板結線図
TERMINAL BOARD DIAGRAM
3 1 4 1 8 1
CN1 CN2 CN3
2
1
CN5
22
21
LED3
LED4
LED1
LED2
LED5
LED6
LED7
LED8
LED9
LED10
M0PCB1
M0PCB2
コンベア制御(RS485)
CONVEYOR CONTROLER
(RS485)
コントロールBOX
基板搬送信号
CONTROL BOX
PANEL TRANSFER SIGNAL
CN1
CN3
CN5
線番
線番
線番
PIN
NO
PIN
NO
PIN
NO
WIRE MARK
WIRE MARK
WIRE MARK
1 +
1 +24VA
1 SMM1/SMM5
2 -
2 GA
2 SMM2/SMM6
3 SHIELD
3
3 SMM3/SMM7
4 AD00
4 SMM4/SMM8
5 +24VA
5 SMM11/SMM13
6 AD01
6 SMM12/SMM14
基板搬送信号(RS485)
PANEL TRANSFER SIGNAL
(RS485)
7 AD02
7 SMM13/SMM11
8 AD03
8 SMM14/SMM12
9
CN2
線番 10
PIN
NO
WIRE MARK
11 SMM1/SMM5
1 + 12 SMM2/SMM6
2 - 13 SMM3/SMM7
3 R- 14 SMM4/SMM8
4 SHIELD 15 SMM11/SMM13
16 SMM12/SMM14
17 SMM13/SMM11
18 SMM14/SMM12
19
20
21
22
b0X361Gq
b0X361Gq
Downloaded at 2020/05/19 21:05:96 by 395B4578 DL#wIFD31dS
Downloaded at 2020/05/19 21:05:96 by 395B4578 DL#wIFD31dS