2OM-1088-002.pdf - 第398页
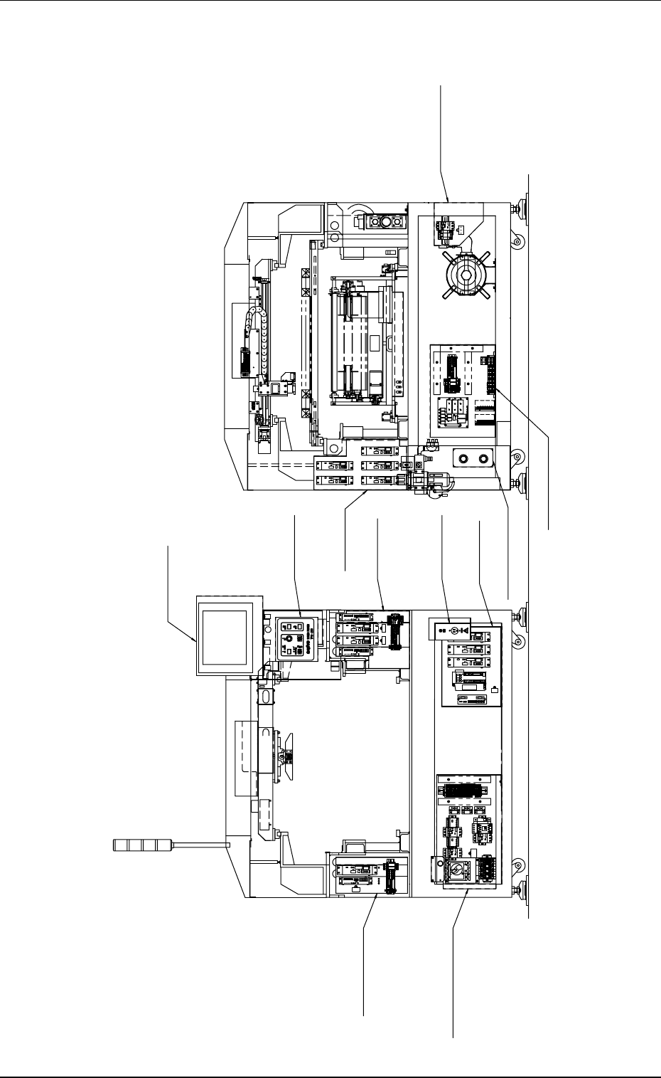
Tg0699-PM-D2 2. Parts Location General View 1 2. Parts Location 0207-001-(M782Y A---0001) Chapter 3 3-7 Control Box Section P.C.B. Chuck Section Main Power Supply Section (Front View) (Rear View) Operation Panel Section …

Tg0699-PM-D2
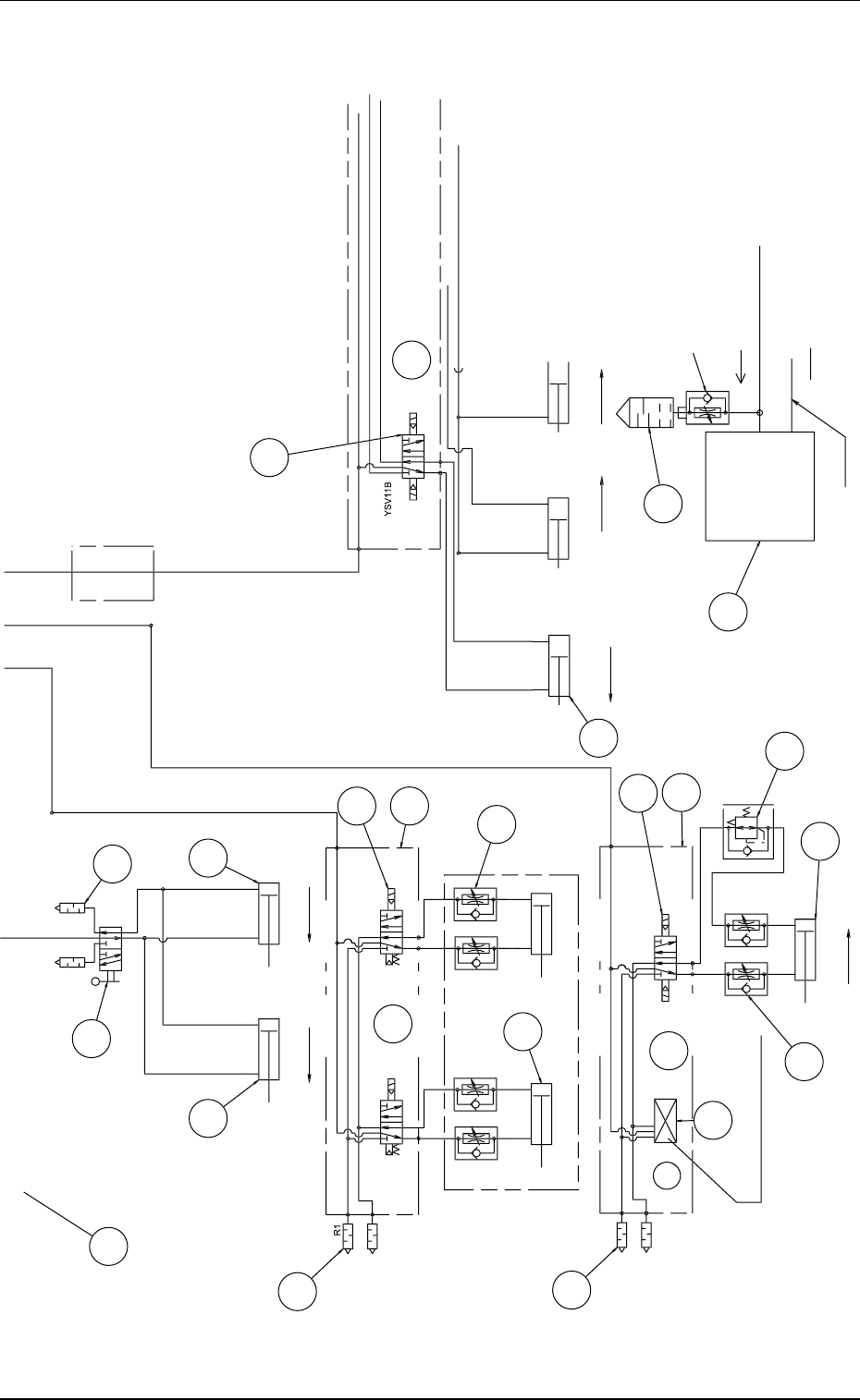
Pneumatic Diagram (Details D)
0207-001-(M782XA---0002) Chapter 3 3-6
Pneumatic Diagram (Details D)
33
37
40
41
5
2
48
49
5
-1
6
6
-1
6
-2
7
7
-
1
7
-
2
5
1
10
18
21
22
23
24
X
2
28
29
Loc
k
C
leanin
g
Section
50
Duct
D
ir
ec
ti
o
n
o
f Exh
aus
t
D
ir
ec
ti
o
n
o
f Exh
aus
t
Lock
V
acuum Section
C
leanin
g
Section
S
creen Holder
S
ection
Vacuu
m Chan
g
eover Unit
φ
8
φ
1
0
φ
4
φ
4
φ
6
φ
6
φ
6
φ
6
φ
6
φ
6
43
YS
V
089
YS
V
088
YS
V
099
YS
V
098
YS
V11A
Cab
l
e
B
ea
r
e
r
C
h
uc
k
Suc
ti
o
n
C
leanin
g
Suction
A
B
B
A
P
R2
B
A
R2
R1
P
C
leanin
g
Unit Clampin
g
(
Ri
g
ht
)
Lock
C
leanin
g
Unit Clampin
g
(
Left
)
φ
6
Do
wnw
a
r
d
M
o
v
e
m
e
nt
C
leanin
g
Up/Down
(
Front
)
P
A
B
P
os
i
t
i
on
i
n
g
S
creen To
p
Holder
(
Left Side
)
Loc
k
S
creen To
p
Holder
(
Left Side
)
C
leanin
g
Air Blower
(
Option
)
S
creen Frame Positionin
g
(
Vertical
)

Tg0699-PM-D2
2. Parts Location
General View 1
2. Parts Location
0207-001-(M782YA---0001) Chapter 3 3-7
Control Box Section
P.C.B. Chuck Section
Main Power Supply Section
(Front View) (Rear View)
Operation Panel
Section
Driver 2 Section
P.C.B. Transfer
Section
Console Section
Driver 1 Section
Front and Rear Interface
Section
Relay Sequence Section
Vacuum Pump Section

Tg0699-PM-D2
General View 2
0207-001-(M782YA---0002) Chapter 3 3-8
General View 2
P.E.C. Recognition Section
L Conveyor Section
Table Section
(Front View) (Rear View)
Squeegee Head Section
Screen Holder
Section
R Conveyor Section
P.C.B. Chuck
Section
Utility Section
Cleaning Section