2OM-1088-002.pdf - 第416页
Tg0699-PM-D2 Layout of Blower Unit Section Layout of Blower Unit Section 0207-001-(M782YMZ--0001) Chapter 3 3-25

Tg0699-PM-D2
Layout of Utility Section
Layout of Utility Section
0207-001-(M782YMM--0001) Chapter 3 3-24

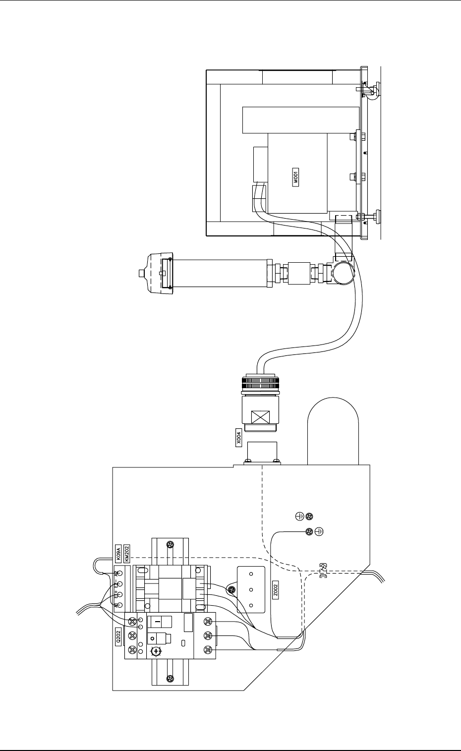
Tg0699-PM-D2
Layout of Blower Unit Section
Layout of Blower Unit Section
0207-001-(M782YMZ--0001) Chapter 3 3-25

Tg0699-PM-D2
Layout of Cover Section
Layout of Cover SectionLayout of Cover Section
Layout of Cover SectionLayout of Cover Section
Layout of Cover Section
0304-003-(M782YP---0001) Chapter 3 3-26
View A