2OM-1088-002.pdf - 第413页

Tg0699-PM-D2 Layout 1 of Cleaning Section Layout 1 of Cleaning Section 0207-001-(M782YM---0001) Chapter 3 3-22 Nozzle Up Movement Nozzle Down Movement T ake-Up Motor Driving Nozzle Up/Down Paper T ake-Up Solvent Discharg…

100%1 / 491
Tg0699-PM-D2
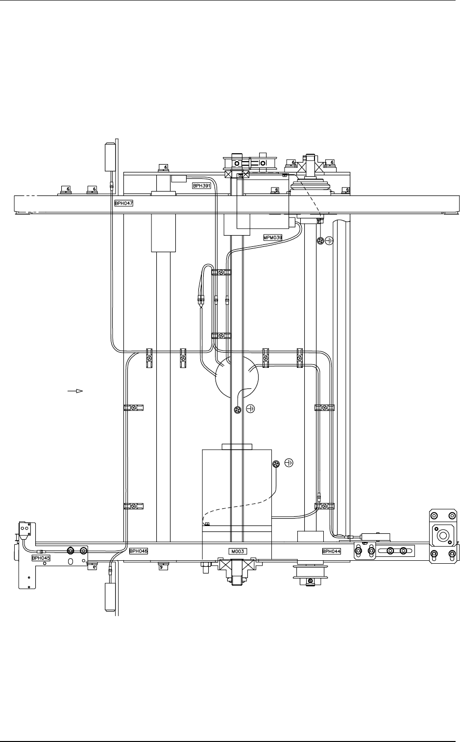
Layout of R Conveyor
Layout of R Conveyor
0207-001-(M782YHR--0001) Chapter 3 3-21
Direction of P.C.B. Transfer
Table Z-Axis
Up Movement I. L. Fix Side
Origin
Conveyor Motor
P.C.B. Passage Check
P.C.B. Arrival Check
Connected to
the Frame
Conveyor Width Axis
Pulse Motor
Table Z-Axis Up Movement I.L.
Movement Side
Tg0699-PM-D2
Layout 1 of Cleaning Section
Layout 1 of Cleaning Section
0207-001-(M782YM---0001) Chapter 3 3-22
Nozzle
Up Movement
Nozzle
Down Movement
Take-Up
Motor Driving
Nozzle
Up/Down
Paper
Take-Up
Solvent Discharge
Solvent
Discharge
Solvent Discharge Driving
Air Blow Fluctuation
Tg0699-PM-D2
Layout 2 of Cleaning Section
Layout 2 of Cleaning Section
0207-001-(M782YM---0002) Chapter 3 3-23
Cleaning Nozzle Upper Limit
Solvent Shortage Alarm
Paper Shortage Alarm
Cleaning Nozzle Lower Limit
Paper Feed Pitch
Detection
Air Blow Fluctuation
Return
Side
Output
Side