NXT系列编程手册NEXIM编.pdf - 第138页
2. Job 编制器 PRG-NXTSN-006S0 124 NXT 系列 编程手册 Nexim 编 2.5.24 如何进行元件的 2 维码检查 对象工作头 • H01,H02(F ),G04(F) 工作头 对象 2 维码 • DataMatrix,QR 编码 注意 分割影像获取功能不能与本功能一 起使用。 QR 编码只对应 Model 2 Symbol 型 号 1 ~ 20,除此以外的 QR 编码不能够读取。 备注 QR 编码是 (株…

PRG-NXTSN-006S0 2. Job 编制器
NXT 系列 编程手册 Nexim 编
123
设定压下用料槽
压下用的顺序也和通常贴装顺序相同,需要对 Device 进行设定。
与通常的贴装元件相同,请在此模组中将压下顺序设定在空料槽上。在多个条件下压下时,需要对每个条
件进行设定。虽然需要 Device 的设定,但是不需要在机器上安装元件。
上图中虽然压下用料槽配置在供料器料槽上,但是空料槽却可以配置在任何位置。使用料盘单元 -M 或者
料盘供料器时,推荐配置在供料器料槽。
没有空料槽的模组不能进行压下动作。
此外,在料盘单元 -LT 中对指定为 reserved 的料槽指定了压下顺序时,与指定了通常元件时相同,不能从
补充用料盘箱进行补料。必须运用次供料器配置进行生产时,压下顺序也需要配置次供料器。
请注意,使用料盘单元 -LT 进行料盘的层叠生产时,在配置了通常元件的料槽上配置压下顺序后,料盘层
叠时可以占有的料槽数会受到限制。
使用带位置检查料盘验证功能时,请不要将紧挨的压下顺序元件和通常元件设定为子料槽。
01PRG-0457E

2. Job 编制器 PRG-NXTSN-006S0
124 NXT 系列 编程手册 Nexim 编
2.5.24 如何进行元件的 2 维码检查
对象工作头
• H01,H02(F),G04(F) 工作头
对象 2 维码
• DataMatrix,QR 编码
注意
分割影像获取功能不能与本功能一起使用。 QR 编码只对应 Model 2 Symbol 型号 1 ~ 20,除此以外的 QR 编码不能够读取。
备注
QR 编码是 (株)DEVSOMAVE 的注册商标。
Job 的创建方法
1. 在 [ 元件数据 ] 画面上单击 [ 外形 ] 图标后,双击贴装元件。显示 [ 外形编辑器 ]。
2. 单击 [ 元件形状测试步骤 ] 的 [ 选项 ] 的 [2 维码检查 ] 图标。
3. 将 [ 属性 ] 区域的 [2 维码检查 ] 的 [Do Check] 设定为 “Yes”。
显示用于元件 2 维码检查的必要设定项目,进行各个项目的设定。
项目名 说明
Check Type 设定元件 2 维码的确认内容。请设定 [Verify Part]。
Verify Part:确认元件
Manage Part ID:确认元件 ID
Code Type 从 Data Matrix,QR Code 选择元件 2 维码的形状。
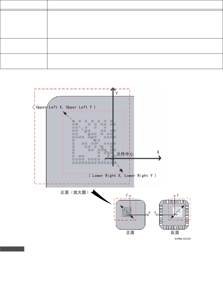
Upper Left X
Upeer Left Y
设定元件 2 维码的读取范围的左上方坐标。坐标输入值为从元件中心开始的距
离。
Lower Right X
Lower Right Y
设定元件 2 维码的读取范围的右下方坐标。坐标输入值为从元件中心开始的距
离。
01PRG-0478E

PRG-NXTSN-006S0 2. Job 编制器
NXT 系列 编程手册 Nexim 编
125
下图表示 2 维码的读取范围的坐标说明。
备注
2 维码的读取范围的左上角和右上角是从元件正面看到的位置。
4. 在[元件数据 ]画面上单击[ 元件号码] 图标,右击贴装元件后,在快捷菜单上选择[ 编辑]。显示[元件号
码编辑器 ]。
5. 选择 [ 基本设定步骤 ] 的 [ 其他的设定 ]。
6. 在 [ 属性 ] 区域的 [2 维码检查 ] 的 [Bottom 2D Code] 上,设定刻印在元件上的 2 维码的文字列信息。
Side 设定读取元件上面或元件下面的 2 维码。请设定 [Bottom]。
Top:元件上面
Bottom:元件下面
Exposure
Time(VPDplus)
设定读取元件 2 维码时的曝光时间。设定为 0 时,按通常的曝光时间处理。请在
VPDplus 输入。
Lighting
Pattern(VPDplus)
选择读取元件 2 维码时元件相机的光源模式。请在 VPDplus 输入。
项目名 说明