00197041-04_SM_X-Serie-S_Kunde_DE.pdf - 第129页
4 Elektrik und Steuerung 4.10 I/O-Control-Unit tauschen Serviceanleitung SIPLACE X-Serie S 06/2019 129 4.10.1 I/O Control Unit HINWEIS Abwärtskompatibel Die I/O Control Unit II [03116049‑xx] ist abwärtskompatibel zur I/O…

4 Elektrik und Steuerung
4.10 I/O-Control-Unit tauschen
128 Serviceanleitung SIPLACE X-Serie S 06/2019
4.9.1 DIP-Schalter am CAN-Switch CINX einstellen
DIP-Schalter
Maschinentyp DIP-Schalter links DIP-Schalter rechts
1 2 1 2
X-Serie S ON ON ON ON
SX1/SX2 OFF OFF OFF OFF
Stecker
Stecker Beschreibung
CAN1 Portal 1
CAN2 Portal 2
CAN3 Portal 3
CAN4 Portal 4
4.10 I/O-Control-Unit tauschen
Teile, Hilfsmittel und Werkzeug
●
I/O Control Unit II [03116049-xx]
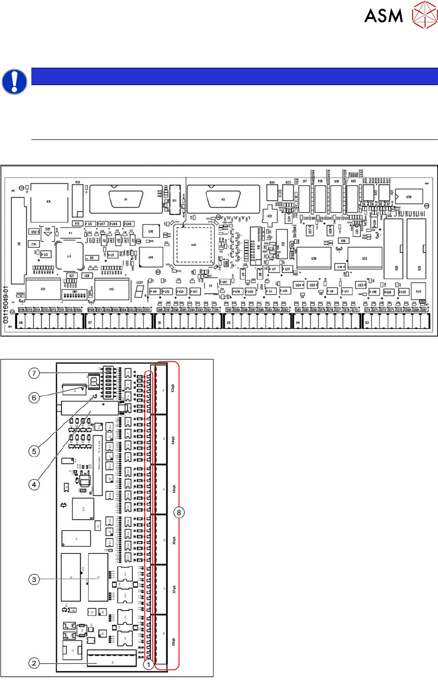
Übersicht
Abb.154: I/O-Control-Unit
I/O-Control-Unit
Die I/O-Control-Unit befindet sich zwischen
Stellplatz 1 und 2 hinter der unteren
Abdeckung.
Platinenbeschreibung siehe 4.10.1 "I/O Con-
trol Unit" [}129]
Ausbau
► Notieren Sie sich den Zählerstand des Bauelemente-Zählers an der Bedienoberfläche der
Software.
► Schalten Sie die Maschine aus, trennen Sie diese vom Stromversorgungsnetz und sichern
Sie die Maschine gegen Wiedereinschalten.
1.2 "Was vor Beginn der Arbeiten zu tun ist..." [}16]
► Stecken Sie alle Steckverbindungen ab. Markieren Sie sich ggf. die Positionen um diese spä-
ter wieder eindeutig zuordnen zu können.
► Ziehen Sie die I/O-Control-Unit aus der Halterung heraus.
Einbau
► Verfahren Sie für den Einbau in umgekehrter Reihenfolge. Beachten Sie dabei folgende Hinweise:
– Achten Sie auf die richtige Konfiguration der DIP-Schalter (siehe 4.10.1 "I/O Control Unit" [}129]).
– Kontrollieren Sie ob der Bauelemente-Zähler an der Software noch mit dem notierten Wert über-
einstimmt. Ist dies nicht der Fall so setzen Sie sich mit dem SIPLACE-Service in Verbindung.

4 Elektrik und Steuerung
4.10 I/O-Control-Unit tauschen
Serviceanleitung SIPLACE X-Serie S 06/2019 129
4.10.1 I/O Control Unit
HINWEIS
Abwärtskompatibel
Die I/O Control Unit II [03116049‑xx] ist abwärtskompatibel zur I/O-Control-Unit
[03052315‑xx].
Alle Anschlüsse und Bezeichnungen sind identisch.
Übersicht
Abb.155: 03116049-01
Abb.156: Übersicht I/O-Control-Unit [03052315-xx]
1. Status-LEDs
2. X9qb: Stromversorgung
3. X1qb: CAN-Bus 1
4. X10qb: Anschluss weiterer I/O‑Module
möglich
5. Rote LED
Diese signalisiert einen RESET.
6. H1: 7-Segment Anzeige
(Blinkend = O.K.)
7. DIP-Schalter S1
8. Ausgänge X3qb bis X8qb

4 Elektrik und Steuerung
4.10 I/O-Control-Unit tauschen
130 Serviceanleitung SIPLACE X-Serie S 06/2019
Abb.157: Übersicht 03052315-02
Einstellungen
DIP-Schalterblock S1 [03052315-02] [03116049-01]
Schalter Status Beschreibung
S1.1 ON/OFF ON: SX4/DX4, X-Serie S
OFF: SX1/SX2, DX1/DX2
S1.2 ON/OFF Ballastwiderstand
ON: SX1/SX2 ab Maschinen-Nr. Nxxxx
OFF: SX4/DX4; X-Serie S, SX1/SX2 bis Maschinen-Nr. Mxxxx
S1.3 OFF Reserviert
S1.4 OFF Reserviert
S1.5 OFF Reserviert
S1.6 OFF ON: Serial Bootstrap-Modus, dabei muss S1.7 OFF sein
OFF: Standardmodus
S1.7 OFF ON: CAN-Bootstrap-Modus, dabei muss S1.6 OFF sein
OFF: Standardmodus
S1.8 OFF ON: Modul im RESET-Zustand
OFF: Standardmodus