KE2040取扱説明書Ver.2.01和文Rev.04.pdf - 第749页
13 - 9 13-5-1-2. TR-6SN/TR-6DN の取付け位置開始 の取付け位置開始 の取付け位置開始 の取付け位置開始 図 図 図 図 13-5- 1-2 TR-6 SN , , , , TR-6 DN の取付け外観 の取付け外観 の取付け外観 の取付け外観 注意 注意 注意 注意 不意の起動による事故を防ぐため,電源を切って行って下さい。

13 - 8
13-5-1. マトリックス・トレイチェンジャ
マトリックス・トレイチェンジャマトリックス・トレイチェンジャ
マトリックス・トレイチェンジャ(MTC)の取付け
の取付けの取付け
の取付け
13-5-1-1. TR-4SN の取付け位置開始
の取付け位置開始の取付け位置開始
の取付け位置開始
図
図図
図 13-5-1-1
TR-4SN の取付け外観
の取付け外観の取付け外観
の取付け外観
注意
注意注意
注意
不意の起動による事故を防ぐため,電源を切って行って下さい。

13 - 9
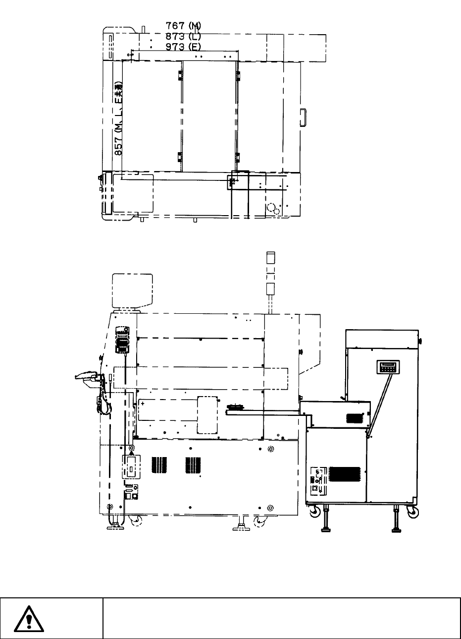
13-5-1-2. TR-6SN/TR-6DN の取付け位置開始
の取付け位置開始の取付け位置開始
の取付け位置開始
図
図図
図 13-5-1-2
TR-6SN,
,,
,TR-6DN の取付け外観
の取付け外観の取付け外観
の取付け外観
注意
注意注意
注意
不意の起動による事故を防ぐため,電源を切って行って下さい。

13 - 10
13-6. FPI(フィーダポジションインジゲータ)の取り扱い
(フィーダポジションインジゲータ)の取り扱い(フィーダポジションインジゲータ)の取り扱い
(フィーダポジションインジゲータ)の取り扱い
FPI は,フィーダバンクのナンバーラベル(フィーダ類の装着ポジションを示す番号シール)の前
方に位置し,ナンバーラベルのポジション番号に一対一で LED を有し,LED の点灯や点滅で視覚的に,
フィーダの装着位置や部品供給状態を知らせます。
以下 FPI の機能を示します。
表
表表
表 13-6-1
機械状態
機械状態機械状態
機械状態 LED 状態
状態状態
状態 機
機機
機 能
能能
能
点滅 生産プログラムで指定されたフィーダ類の装着位置の位置決めピンを
挿入する穴)(番号)位置を示す。
段取り替え時
点灯 装着するフィーダのフィーダバンク上で占有する範囲を示す。
基板生産時 点滅 任意のフィーダの残り部品数が,生産プログラムの部品数設定で入力
した警告レベル(部品残数が残り少ない事を,知る為に設定した数値)
を下回った場合,該当するフィーダがセットされている位置の LED を
点滅させることにより,部品残数の少ないフィーダを知らせます。
部品切れ時 点灯 基板生産中に任意のフィーダにおいて,生産プログラムの部品数設定で
入力した初期値に対する残数が,0になった場合,該当するフィーダが
セットされている位置の LED を点灯させることにより,部品切れを起
こしているフィーダを知らせます。
マニュアル制御
使用時
フィーダノック
ピンの
ON :点灯
OFF:消灯
マニュアル制御のフィーダノックピン制御で,テープ送り動作又は単
純ノック動作を行った場合,制御位置における各フィーダの位置決め
ピン位置の LED をフィーダノックピンの動作に連動させて点滅させ
ることにより,どの位置のノックピンが制御されているかを示します。
供給部品の残数表示と部品切れ表示は,生産プログラムの基板生産のデータ切替の部品設定におい
て,フィーダ内の供給される部品数と同数或いは,相当数を正しく入力しなければ正しく表示され
ません。
注意
注意注意
注意 :