JUKI-RX-7使用说明书.pdf - 第274页
第 4 章 操作篇 4- 11. 数据编辑 区块的坐标位置 区块的各坐标位 置中,将从 NC 原点 到各区块基准零件所 在位置的偏移 量值作为 X , Y 及角 度输入。 如下所示,对 1 块基板上有 4 个区块的数据进行输入 时,先确定基 准区块,然后输入该 区块的基准坐 标位置。 除基准区块外, 其他区块将以 NC 原点为基 准,计算角度 的偏移量值并求出坐 标,然后将该 坐标位置在 XY 方向上的偏移量 作为 X , Y 的值…

第 4 章 操作篇
4-11.
数据编辑
4
4-11-7. 区块展开信息编辑
区块展开后的基板称为集合板。
在区块画面中编辑创建集合板所需的区块信息。
触摸[数据编辑]菜单画面左侧的子菜单面板中的[区域],显示[区域]画面。
项目名称
说明
ID 在 1~500 的范围内显示与注册数量对应的序列号。
X[mm]
将基准孔的位置作为原点 (0,0),在 -999.999mm~999.999mm 的范围内输
入展开后区块的起点位置之 XY 坐标。
Y[mm]
角度 在 0°~359.999°的范围内输入展开后区块的旋转角度。
dX (mm)
在 -999.999mm~999.999mm 的范围内输入相对于展开后区块起点坐标的微
调用 XY 偏移量值。
dY (mm)
d 角度
在 -359.999°~359.999° 的范围内输入相对于展开后区块旋转角度的微
调用角度偏移量值。
不良标志 ID 在 0~500 的范围内输入各区块中使用的不良标记 ID。
使用安装数据表中按步骤指定的不良标记 ID 时,输入 0。
定位标志 ID 在 0~500 的范围内输入各区块中使用的定位标 ID。
使用安装数据表中按步骤指定的定位标 ID 时,输入 0。
199

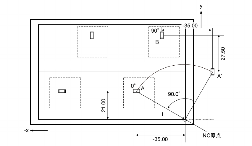
第 4 章 操作篇
4-11.
数据编辑
区块的坐标位置
区块的各坐标位置中,将从 NC 原点到各区块基准零件所在位置的偏移量值作为 X,Y 及角度输入。
如下所示,对 1 块基板上有 4 个区块的数据进行输入时,先确定基准区块,然后输入该区块的基准坐
标位置。
除基准区块外,其他区块将以 NC 原点为基准,计算角度的偏移量值并求出坐标,然后将该坐标位置在
XY 方向上的偏移量作为 X,Y 的值。
区块
3
区块
2
区块
4
区块
1
200

第 4 章 操作篇
4-11.
数据编辑
4
零件的展开示例
预先输入 1 处区块的安装数据后,可对同一基板中相同模式的多个区块展开安装信息并进行安装。以
下为零件的展开示例。
区块数据
展开后贴装数据
展开前贴装数据
展开前的基板
展开后的基板
展开
ID
坐标
坐标
区块
区块
坐标
201