RV-2_使用说明书.pdf - 第48页
第 2 章 系统概要 2- 3. 机器的构成 14 背面 (a) 总电源连接端子 连接工厂总电源电缆, 然后将工厂总地线连 接到接地端子板上。 (b) 总压缩空气源连接口 (c) 投影仪电源( RV -2- 3D/RV -2- 3DH /R V -2- 3DHL 专用) 输送带 a b c e d b c a

第 2 章 系统概要
2-3. 机器的构成
13
2
顶视图
2-3-3.
门内部各装置的名称
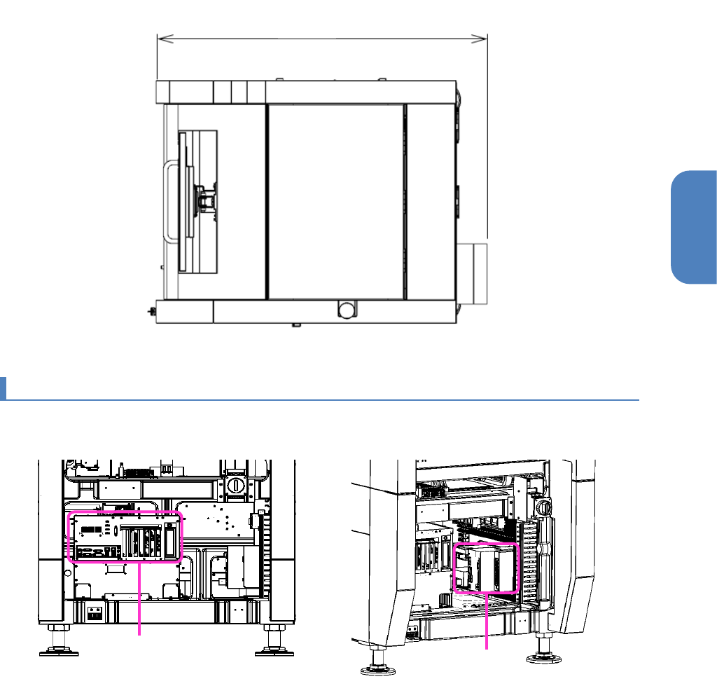
正面
(a)
控制用计算机
进行本机的主控制。此外,通过
USB
端口和
Ethernet
将数据保存到外部记忆媒体上时也使用。
(b)
伺服放大器
a
b
【
RV-2 / RV-2-3D / RV-2-3DH
】
1276
【RV-2-3DHL】 1800

第 2 章 系统概要
2-3. 机器的构成
14
背面
(a)
总电源连接端子
连接工厂总电源电缆,然后将工厂总地线连接到接地端子板上。
(b)
总压缩空气源连接口
(c)
投影仪电源(
RV-2-3D/RV-2-3DH/RV-2-3DHL
专用)
输送带
a
b
c
e
d
b
c
a

第 2 章 系统概要
2-3. 机器的构成
15
2
(a)
基板搬送
(b)
夹具
(c)
搬送带
(d)
固定轨道
(e)
可动轨道
W1
•
需要手动变更宽度时,请将固定轨道作为搬送基准面与可动轨道
W1
对齐。
基板
固定轨道
可动轨道 W1
搬送基准面