KE-2070_80_80R使用说明书(管理员).pdf - 第54页
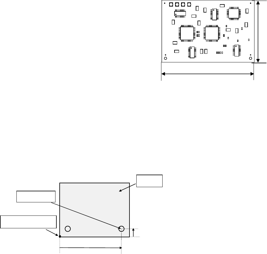
操作手册Ⅱ 2-10 1)基板(外形)尺寸 输入基板外形尺寸。 带有模型基板时,请输入包括模型基板在 内的尺寸。 与传送方向相同的方向为X,与传送方向 成直角的方向为Y。 2)定位孔位置 输入从基板位置…

操作手册Ⅱ
2-9
2-3-3-2-2 单板基板

操作手册Ⅱ
2-10
1)基板(外形)尺寸
输入基板外形尺寸。
带有模型基板时,请输入包括模型基板在
内的尺寸。
与传送方向相同的方向为X,与传送方向
成直角的方向为Y。
2)定位孔位置
输入从基板位置基准(原点)到基准销的位置。
(在基本设置中将定位方式作为外形基准时,不必设置该项目。)
使用CAD数据时,如果需要将规定的原点(CAD原点或自己公司特有的原点)作为基板位置基准
(原点)时,请输入由CAD等规定的从基板位置基准(原点)到基准位置的尺寸。
※ 基板位置基准(原点)与基准位置一致时,在定位孔位置的 X、Y 坐标中输入(0,0)。
当传送为前面基准,基板的传送
方向为左→右时,以左图的定位
孔为基准。当左下角有基板位置
基准(原点)时,应在定位孔位
置的 X、Y 坐标中输入 Xa、Ya(X、
Y 均为正值)的值。
基板位置基准
基准位置
基板
Xa
Ya
外形尺寸 X
外形尺寸 Y

操作手册Ⅱ
2-11
3) 基板设计偏移量
输入以基板位置基准(原点)确定的基板端点的位置。
使用CAD数据时,需要将规定的基板位置基准(原点)(CAD原点或自己公司特有的原点)作
为基板位置基准(原点)时,输入由CAD等决定的从基板位置基准(原点)到基准位置的尺
寸。
通常,基准孔的中心在离基板角 X、Y 均为±5mm 的位置。因此,当“定位孔位置”与
基板位置基准(原点)相同时,基板位置基准(原点)与“基板设计端点”的尺寸差
X、Y 均为±5mm。
前面基准、L→R 时:
基板
定位孔位置(=基板位置基准)
5mm
基板设计端点
传送为前面基准,基板流向为左→
右时,如果基板左下角为基板位置
基准(原点)时,应在基板设计偏
移量的 X、Y 坐标中分别输入(Xb,
0)的值。
Xb 取正值。
5mm
基板位置基准
基板设计端点
基板
Y
X