RX-8_说明书(1).pdf - 第47页
2 系统概要 2-4. 11 2 2-4-3. 主机重量 RX-8 : 1,810 kg *选购项类除外 2-4-4. 各单元的名称

2
系统概要
2-4.
10
2-4-2.
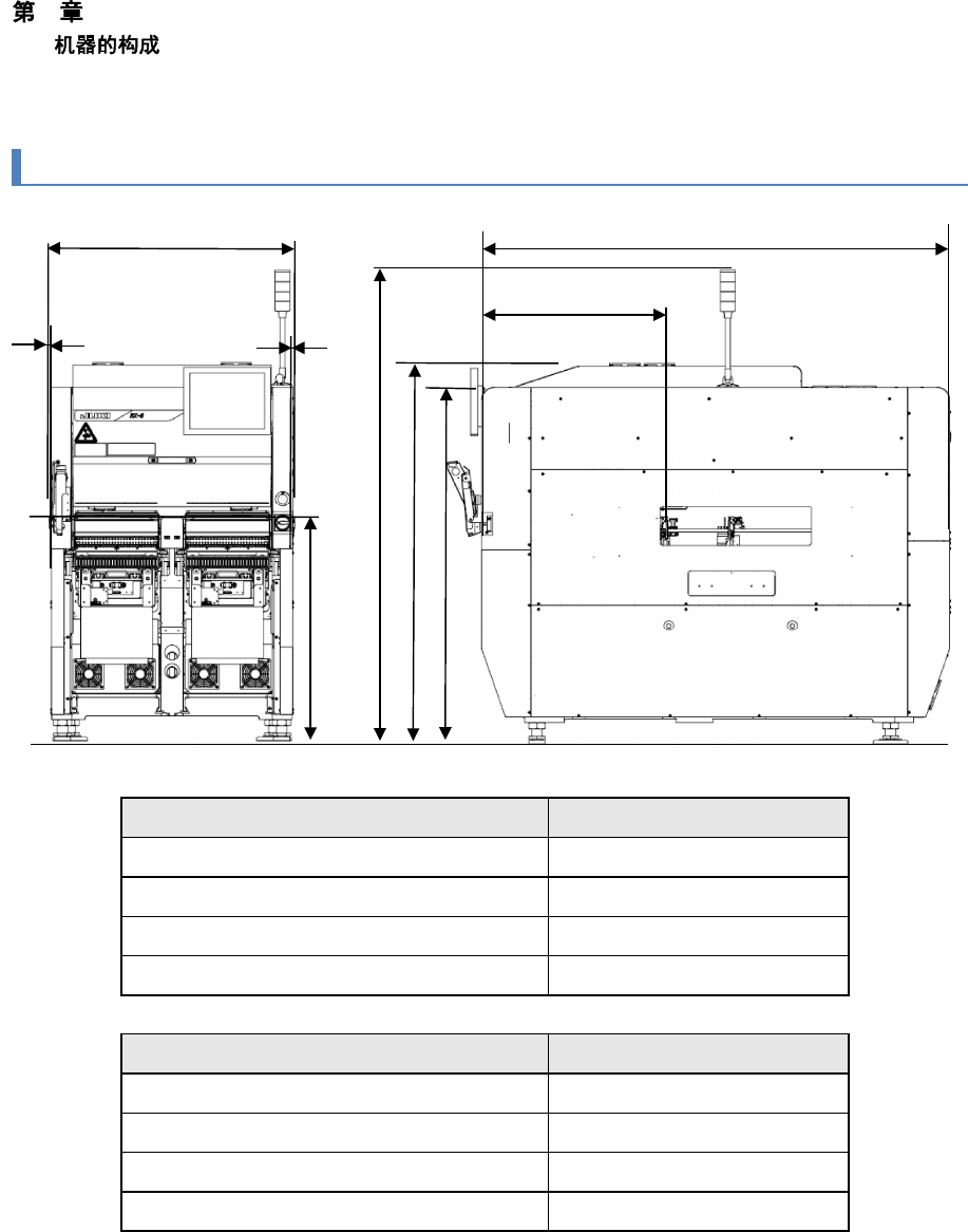
外观尺寸图
尺寸
单通道传送规格
A
(传送长度)
998 mm
C
(不含
LCD
)
1,893 mm
H
(传送突出量)
8 mm
I
(从护罩前面到基准侧基板传送通道)
750.5 mm
(
前面一侧
)
尺寸
B
(从地面到传送带上面)
900 mm
E
(从地面到护罩上面①)
1,440 mm
F
(从地面到护罩上面②)
1,530 mm
G
(从地面到信号灯上面)
1,916 mm
最大突起物除外。
※
1
尺寸的公差为
±5mm
。
H
C
H
A
B
G
F
I
E

2
系统概要
2-4.
11
2
2-4-3.
主机重量
RX-8
:
1,810 kg
*选购项类除外
2-4-4.
各单元的名称

2
系统概要
2-4.
12
2-4-5.
操作按钮,连接器等各部的名称
n
RX-8
(a)
紧急停止开关
(b)
主开关
(c)
信号灯
(d)
触屏式监视器
(e) USB
存储设备插入口
(f)
真空泵(内置)
(g)
空冷风机
a
b
c
d
e
f
g