RX-6_维修调整要领书.pdf - 第325页
维修调整要领书 17 - 25 <传送加长时> IN/OUT 传感器( HD002850050 )※投光、受光没有区別,都是相同的传感器 埋头螺丝 M3 L=6 SM1030601SC 投光 侧 受光 侧 使用的分接抽 头 6.5mm 5mm 使用的分接抽 头

维修调整要领书
17-24
17-7-4
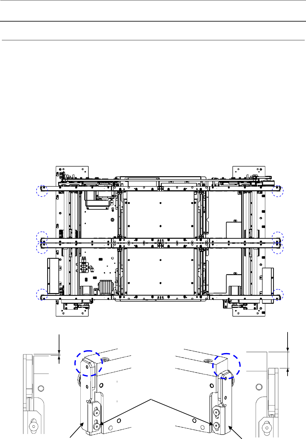
IN/OUT传感器的更换
1) 打开传感器放大器保护罩,板起光纤插入口附近的手柄,拔出光纤。
2) 卸下 IO 传感器托架。
3) 从 IO 传感器托架上卸下传感器。
4) 更换 IN/OUT 传感器。
5) 安装时请按相反的操作顺序进行。
※ 投光侧请组装在距传送带轨道上面之上侧 1mm(传送加长时为 5mm)。
※ 受光侧请组装在距传送带轨道上面之下侧 10.5mm(传送加长时为 6.5mm)。
※ 传送加长时请注意安装位置(所用分接抽头)。
6) 更换后,请进行【17-7-5 IN/OUT 传感器受光量的确认】。
前侧通道
后侧通道
投光侧
受光侧
投光侧
受光侧
受光侧
投光侧
受光侧
投光侧
投光侧
受光侧
极低头螺栓 M3 L=5
(EZ328248101)
IO 传感器托架 L
IO 传感器托架 R
1mm
10.5mm

维修调整要领书
17-25
<传送加长时>
IN/OUT 传感器(HD002850050)※投光、受光没有区別,都是相同的传感器
埋头螺丝 M3 L=6
SM1030601SC
投光侧
受光侧
使用的分接抽头
6.5mm
5mm
使用的分接抽头

维修调整要领书
17-26
17-7-5
IN/OUT传感器受光量的确认
※ 本作业请在“17-7-2 传感器放大器阈值的设置”已完成的状态下实施。
1) 将传送宽度设定为 50mm。
2) 将厚度 0.3mm 的基板置于遮住 IN/OUT 传感器的状态。
3) 把作为确认对象传感器的光纤放大器的 SET/RUN 切换开关设置为“SET”。
4) 按下几次操作键的 MODE,设置为
,按下 DOWN 键使主数显部分(红色显示)改变为
“P***”。
※ “*”位置将显示数值。
5) 把作为确认对象传感器的光纤放大器的 SET/RUN 切换开关设置为“RUN”。
6) 确认主数显部分(红色显示)的值是下述数值。
※ 有基板的状态:100 不到
※ 无基板的状态:900 以上
7) 如不满足上述数值时,要调整 IN/OUT 传感器的组装位置。
※ 投光侧请调整为距传送带轨道上面之上侧 1~2mm。
※ 受光侧请调整为距传送带轨道上面之下侧 10.5~11.5mm。
※ 投光侧(传送加长时)请调整为距传送带轨道上面之上侧 5~6mm。
※ 受光侧(传送加长时)请调整为距传送带轨道上面之下侧 6.5~7.5mm。
8) 确认和调整完成后,把作为确认对象传感器的光纤放大器的 SET/RUN 切换开关设置为“SET”。
9) 按下几次操作键的 MODE,设置为
,按下 DOWN 键使主数显部分(红色显示)改变为
“¦¦¦¦¦¦¦¦”。
10) 把作为确认对象传感器的光纤放大器的 SET/RUN 切换开关设置为“RUN”。
※ 关于光纤放大器的显示和操作键,请参照“17-7-2 传感器放大器阈值的设置”。
※ 关于 IN/OUT 传感器组装位置的细节,请参照“17-7-4 IN/OUT 传感器的更换”。