RX-6_维修调整要领书.pdf - 第329页
维修调整要领书 17 - 29 17 -8- 2 第 2 轨道 = 第 3 轨 道 干渉 传 感器的更 换 1) 卸下电缆护壳。 2) 卸下安装在滑动底座侧面的限位传感器托架 R2-R3 。 3) 卸下限位传感器进行更换。 4) 安装时请按相反的操作顺序进行。 5) 更换传感器后,请调整限位传感器位置。 ※ 请把限位传感器与碰块的空隙调整为 2mm 。 ※ 第 2 轨道与第 3 轨道的各基板滑行面之距离到 44mm 时传感器 ON 使第…

维修调整要领书
17-28
将第 2 轨道逐渐变狭,
基板宽度到 47mm 时 ON
第 1 轨道
第 2 轨道
250mm
47mm
将第 4 轨道逐渐变宽,
基板宽度到 252.5mm 时 ON
第 1 轨道
第 4 轨道

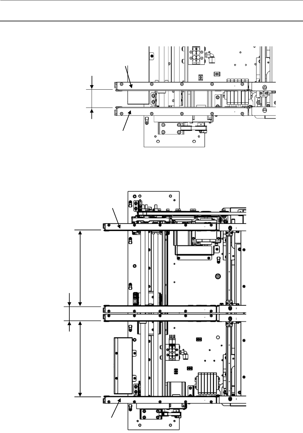
维修调整要领书
17-29
17-8-2
第 2 轨道=第 3 轨道干渉传感器的更换
1) 卸下电缆护壳。
2) 卸下安装在滑动底座侧面的限位传感器托架 R2-R3。
3) 卸下限位传感器进行更换。
4) 安装时请按相反的操作顺序进行。
5) 更换传感器后,请调整限位传感器位置。
※ 请把限位传感器与碰块的空隙调整为 2mm。
※ 第 2 轨道与第 3 轨道的各基板滑行面之距离到 44mm 时传感器 ON
使第 2 轨道与第 3 轨道
逐步接近,
距离到 44mm 时 ON
第 3 轨道
第 2 轨道
电缆护壳
第 2 轨道
限位传感器(40154793)
盆头小螺丝 M3X0.5 L=8
SM4030801SC
带垫片内六角螺栓 M4 L=8
SL6040892TN
第 3 轨道
传感器碰块
限位传感器托架 R2-R3

维修调整要领书
17-30
17-8-3
第 3 轨道=第 4 轨道干渉传感器的更换
1) 卸下安装在滑动底座侧面的限位传感器托架 R3-R4。
2) 卸下限位传感器进行更换。
3) 安装时请按相反的操作顺序进行。
4) 更换传感器后,请调整各限位传感器位置。
※ 请把限位传感器与碰块的空隙调整为 2mm。
※ 后侧通道(第 3/第 4 轨道)的基板宽度到 48.5mm 时传感器 ON
使第 3 轨道与第 4 轨道
逐步接近,
距离到 48.5mm 时 ON
第 4 轨道
第 3 轨道
限位传感器托架 R3-R4
限位传感器(40154793)
盆头小螺丝 M3X0.5 L=8
SM4030801SC
带垫片内六角螺栓 M4 L=8
SL6040892TN
传感器碰块
第 4 轨道
第 3 轨道