00191504-01.pdf - 第496页
Használ ati utasí tás a SIPLAC E 80S-20/F4 /F4-6 tipushoz 9 Karba ntartás/Gond ozás 98/03-as kiadás az SR.40 3.xx sz oftververz iótól 9.4 Portál ok 9-43 iEUD $] pV3RUWiONDUEDQ WDUWiVDIHOOQp] HWD6,3/ $…

9 Karbantartás/Gondozás Használati utasítás a SIPLACE 80S-20/F4/F4-6 tipushoz
9.4 Portálok 98/03-as kiadás az SR.403.xx szoftververziótól
9-42
87$/È6
A súrlódó felületek zsír és olajmentesek maradjanak, mert különben a specifikus dinamikus
tengely tulajdonság már nem érhetõ el.
iEUD $ ]<VtQHN]VtU]iVDLOORODMR]iVD
- Az 1, és 2 portál X-tengelyét tologassuk többször és a felesleges olajat töröljük le az Y-
sínekrõl
87$/È6
Az Y-mércék a súrlódási felületek és a golyóscsapágy felülete abszolút zsírmentes legyen.
- A SIPLACE 80S-20 automatán végezetül toljuk a portálokat egymáshoz képest annyira
szét, hogy az Anticrash-kapcsoló fénysorompójának tartományában egyetlen tengely se
maradhasson.
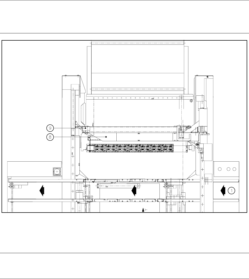
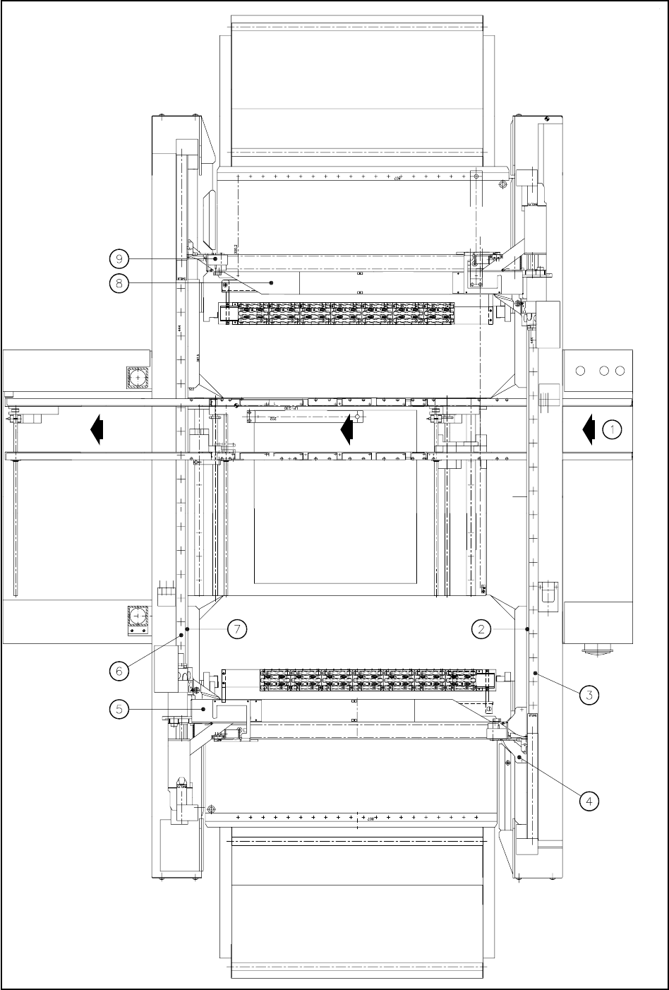
0DJ\DUi]DWDiEUiKR]6,3/$&(6
1 Nyáklap továbbítási irány 2 Mérce az Y-tengelyhez, 1 portál
3 Sínek Y-tengely 1 portál 4 Súrlódó bütyök golyóscsapággyal
5 X-tengely 1 portál 6 Sínek Y-tengely 2 portál
7 Y-tengely mérce, 2 portál 8 Fénysorompó (Anticrash-kapcsoló)
9 X-tengely, 2 portál

Használati utasítás a SIPLACE 80S-20/F4/F4-6 tipushoz 9 Karbantartás/Gondozás
98/03-as kiadás az SR.403.xx szoftververziótól 9.4 Portálok
9-43
iEUD $]pV3RUWiONDUEDQWDUWiVDIHOOQp]HWD6,3/$&(6DXWRPDWiQiO

9 Karbantartás/Gondozás Használati utasítás a SIPLACE 80S-20/F4/F4-6 tipushoz
9.4 Portálok 98/03-as kiadás az SR.403.xx szoftververziótól
9-44
$];SRUWiOWHQJHO\HNVtQHLQHNWLV]WtWiVDpV]VtUR]iVD
9(6=e/<
Alkohollal tisztítási munkálatokat nyílt fény, vagy láng esetében ne végezzünk!
- Az automatát a fõkapcsolóval kikapcsoljuk.
- Nyissuk ki a védõtetõt és a SIPLACE 80S-20 automatán toljuk a portálokat lehetõleg
annyira távol egymástól, hogy ezáltal a karbantartás jól hozzáférhetõvé váljék. A
SIPLACE 80F
4
automatán az X-portáltengelyeket toljuk amennyire lehetséges az
automata külsõ oldalához.
- Az X-síneket az 1 és 2-es portálnál tisztítsuk meg teljes hosszúságában és felületén
alkohollal átitatott szöszmentes kendõvel (ill. a SIPLACE 80F
4/
80F
4
-6/80F
5
a gépen az
1-es portálhoz).
- Toljuk el a beültetõ fejet, hogy az X-sínek minden részéhez hozzáférhessünk.
- Ügyeljünk arra, hogy az Y-portál súrlódó bütykeinek súrlódási felületére ne kerüljön
zsírzó anyag. Amennyiben szükség van rá, akkor a súrlódó felületeket a végén még
egyszer töröljük le alkoholos kendõvel.
87$/È6
A beültetõ fejeket alapvetõen úgy toljuk el, hogy közvetlenül a portál csúszka felületét nyo-
mjuk meg, vagy pedig a beültetõ fejet a fogantyújánál fogjuk.
- Csepegtessünk kevés zsebóra olajat egy szöszmentes tiszta kendõre.
- Ezzel dörzsöljük be az 1 és 2-es portál X-síneit teljes terjedelmükben és teljes
hosszúságukban.
- Ezután toljuk el többször a beültetõ fejet az X-sínen és távolítsuk el a felesleges olajat
tiszta kendõvel.
- A golyós pályákat (lásd 9.4.1 ábra) Staburags N12 kenõzsírral kenjük be.
87$/È6
A túl sok, vagy túl kevés olaj zavarokhoz vezethet a tengelyek mûködésében. Az X-mércét
semmiképp sem szabad zsírral vagy olajjal érintkezésbe hozni
$];pV<IRJV]tMDN]VtUR]iVD
- Vigyünk fel egy rövid szõrû ecsetre kevés Staburags N12 kenõzsírt.
- Ezzel zsírozzuk be a foglábakat, a fogfejeket és a fogszíj oldalsó részét éspedig
rendkívül takarékosan (lásd 9.4.3 ábra, 9- 45 oldal).