00191504-01.pdf - 第676页
1 1 Állo más bõvítések/op ciók Használa ti ut asítás a SIPLACE 80S-20/F4/F4 -6/F5 ti pushoz 1 1.10 Kettõs t ovábbí tás 98/03 -as kiadás az SR.404.x x szoftververziót ól 11-74 ÈWWHNLQW pVMREER OGDOL U|J]tWpV …

Használati utasítás a SIPLACE 80S-20/F4/F4-6/F5 tipushoz 11 Állomás bõvítések/opciók
98/03-as kiadás az SR.404.xx szoftververziótól 11.10 Kettõs továbbítás
11-73
.HWW}VWRYiEEtWiV
ÈOWDOiQRVWXGQLYDOyN
A Siplace kettõs továbbítás esetében konstruktívan két szállítósávval került felszerelésre,
amelyek mind elektrikusan, mind mechanikusan függetlenek egymástól. Itt két variáns létez-
ik, egy jobboldali rögzített oldallal és egy baloldali rögzített oldallal.
Két különbözõ továbbítási módot lehet beállítani a “Szinkron kettõs továbbítást” és az
“Aszinkron kettõs továbbítást”. Ennek megfelelõen a gépadatokba (real.ma) a mindenkori
továbbítási módot kell beadni. Ugyancsak különbözõ továbbítási moduszok és kerámia
szubsztrátum centrírozások adhatók be a kettõs szállításnál/továbbításnál.
$WRYiEEtWiVIDMWiMiQDNDWRYiEEtWiVPyGMiQDNpVDNHUiPLDV]XEV]WUiW
FHQWUtUR]iVQDNiWNDSFVROiVD
7RYiEEtWiVLPyG %HDGiVUHDOPDEDQ
Egyszerû továbbítás 0
Kettõs továbbítás szinkron 1
Kettõs továbbítás aszinkron 2
7RYiEEtWiVLPRGXV] %HDGiVUHDOPDEDQ
Normál modusz nyáklap <= 460 mm 0
460 mm < Nyáklap <=508 mm 1
.HUiPLDV]XEV]WUiWXPFHQWUtUR]iV %HDGiVUHDOPDEDQ
Nincs kerámia szubsztrátum cen-
trírozás
0
Kerámia szubsztrátum centrírozás
mechanikusan
1
Kerámia szubsztrátum centrírozás
optika
(Ferde megvilágításban)
2
Kerámia szubsztrátum centrírozás
mindkettõ
3

11 Állomás bõvítések/opciók Használati utasítás a SIPLACE 80S-20/F4/F4-6/F5 tipushoz
11.10 Kettõs továbbítás 98/03-as kiadás az SR.404.xx szoftververziótól
11-74
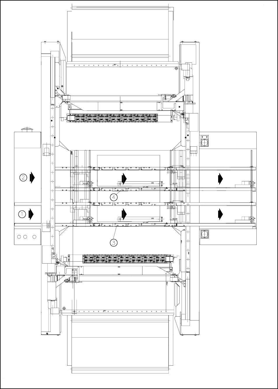
ÈWWHNLQWpVMREEROGDOLU|J]tWpV
A jobboldali továbbító sávban történõ irányt “1 Továbbításnak” jelöljük, a baloldali továbbítási
sávban a szállítást pedig “2 Továbbításnak” jelöljük. Lásd a 11.10.1 ábrát.
Használati utasítás a SIPLACE 80S-20/F4/F4-6/F5 tipushoz 11 Állomás bõvítések/opciók
98/03-as kiadás az SR.404.xx szoftververziótól 11.10 Kettõs továbbítás
11-75
iEUD7HOMHViWWHNLQWpVD6,3/$&(NHWW}VWRYiEEtWiViUyO