00191504-01.pdf - 第88页
2. Bevez etés és a lapfog almak Használati ut asítás a SIPLACE 80S-20/F4/F4 -6/F5 ti pushoz 98/03-as kiadás az SR.40 4 .xx s zoftverv erziótól 2.1 Az au tomata kije lzõje és keze lési elemei 2-10 )}]D YDUNLMHO]}…

Használati utasítás a SIPLACE 80S-20/F4/F4-6/F5 tipushoz 2. Bevezetés és alapfogalmak
98/03-as kiadás az SR.404.xx szoftververziótól
2.1 Az automata kijelzõje és kezelési elemei
2-9
.DSFVROyND]DXWRPDWiQ
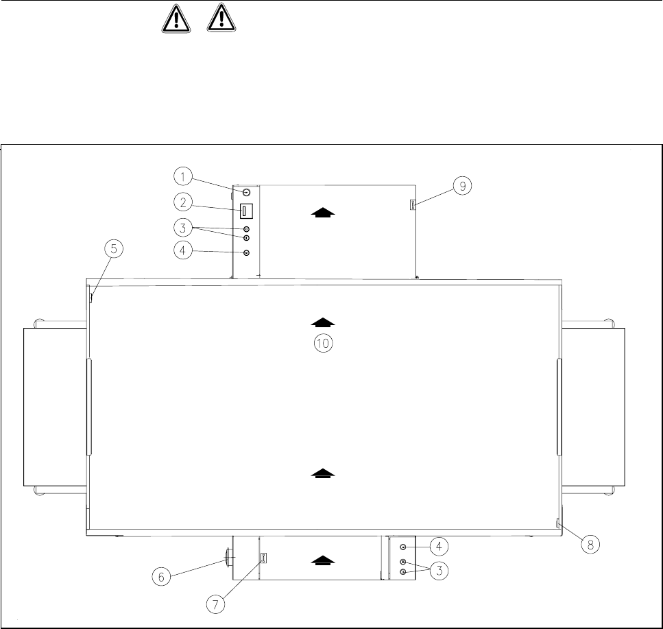
A 2.1.5 ábra mutatja a fõkapcsoló, a tetõkapcsoló, az indító és leállító nyomógomb, a VÉSZ-
KI kapcsoló és a kulcskapcsoló helyét az automatán:
),*<(/0(=7(7e6
A kulcskapcsolót csak megfelelõen kvalifikált személyzet mûködtetheti szervizelési és kar-
bantartási munkák kapcsán. Minden egyéb más esetben a kulcsot arra nem hivatott
hozzáférés ellen védeni kell, mivel ennek figyelmen kívül hagyása súlyos sérülésekhez, il-
letve az automata sérüléséhez vezethet.
iEUD $NDSFVROyNKHO\HD]DXWRPDWiQ
0DJ\DUi]DWDiEUiKR]
1 Kulcskapcsoló 2 Elem (chip) számláló
3 Indító- és leállító gomb 4 Vész-ki kapcsoló
5 Tetõkapcsoló, baloldalt 6 Fõkapcsoló
7 Tetõkapcsoló lefedés a fogadószalagon 8 Tetõkapcsoló, jobboldalt
9 Tetõkapcsoló lefedés a kiadószalagon 10Továbbítási irány

2. Bevezetés és alapfogalmak Használati utasítás a SIPLACE 80S-20/F4/F4-6/F5 tipushoz
98/03-as kiadás az SR.404.xx szoftververziótól
2.1 Az automata kijelzõje és kezelési elemei
2-10
)}]DYDUNLMHO]}
Minden portál számára megtalálható egy zavar-lámpa a fõ zavar kijelzõn. Az alsó zavarlám-
pa az 1 portállal kapcsolatban jelez és a felsõ zavarlámpa a 2 portállal kapcsolatban jelez.
iEUD )}]DYDUNLMHO]}
0DJ\DUi]DWDiEUiKR]
1 Zavarlámpa (fehér), 1 portál (helye 3/4) 2 Zavarlámpa (fehér), 2 portál (helye 1/2)
3 Üzemkijelzõ lámpa (zöld)
$IXQNFLyOHtUiVD
$]]HPNLMHO]}OiPS DIRO\DPDWRVDQEH
Az automata üzemben van
$]]HPNLMHO]}OiPS DYLOORJ
Az automata várja a beadó szalagon a nyáklapot, vagy az automata arra vár, hogy a kiadó
szalag felszabaduljon.
=DYDUOiPS DYLOORJ
A mindenkori portálon egy vagy több sáv üres. Az automata azonban még dolgozik a
meglévõ elemekkel (chippekkel).
$]DYDUOiPS DIRO\DPDWRVDQEH
A mindenkori portálon hiba lépett fel. Az automata áll.
0LQGDNpW]DYDUOiPSD IRO\DPDWRVDQEH
Az automata teljes területén hiba lépett fel. A gép áll.

Használati utasítás a SIPLACE 80S-20/F4/F4-6/F5 tipushoz 2. Bevezetés és alapfogalmak
98/03-as kiadás az SR.404.xx szoftververziótól
2.2 A kezelõfelület alapja és felépítése
2-11
$NH]HO}IHOOHWDODSMDpVIHOpStWpVH
A SIPLACE 80S-20/F4/F4-6F/F5 számára a menüt és a kezelõfelület megjelenési képét
MS-Windows NT 4.0-ban realizáltuk és ez az MS-Windows standarden alapszik.
0XQNiND³7UDFNEDOO´ODOLOOD7RXFK6FUHHQQHO
A Trackball az egér-gombbal a billentyûzeten található (lásd 2.1.2 ára)
A Trackball-lal az egér nyilat a képernyõn a menükhöz, a menü nevekhez, az ikonokhoz,
vagy a kapcsolómezõkhöz lehet mozgatni és a baloldali egér-gombbal kiválasztani, ill.
ezeket a mûveleteket kivitelezni. Választható módon ezeket az akciókat az ujjunkkal köz-
vetlen a képernyõn (Touch-Screen) is kiválaszthatjuk és végrehajthatjuk. Ezeket az akciókat
a következõ fejezetekben “klikkelés” szóval határozzuk meg.
.pSHUQ\}IHORV]WiVD
iEUD $NpSHUQ\}IHORV]WiVD
0DJ\DUi]DWDiEUiKR]
1 Menüsor 2 Fejléc
3 Munka/kliensmezõ 4 A gép üzemmódja
5 Státusz ablak 6 Szimbólum-léc
7 Státusz-sor